Practical family home with driveway, garage and conservatory near schools and town.
- Three bedrooms with built-in storage in two rooms
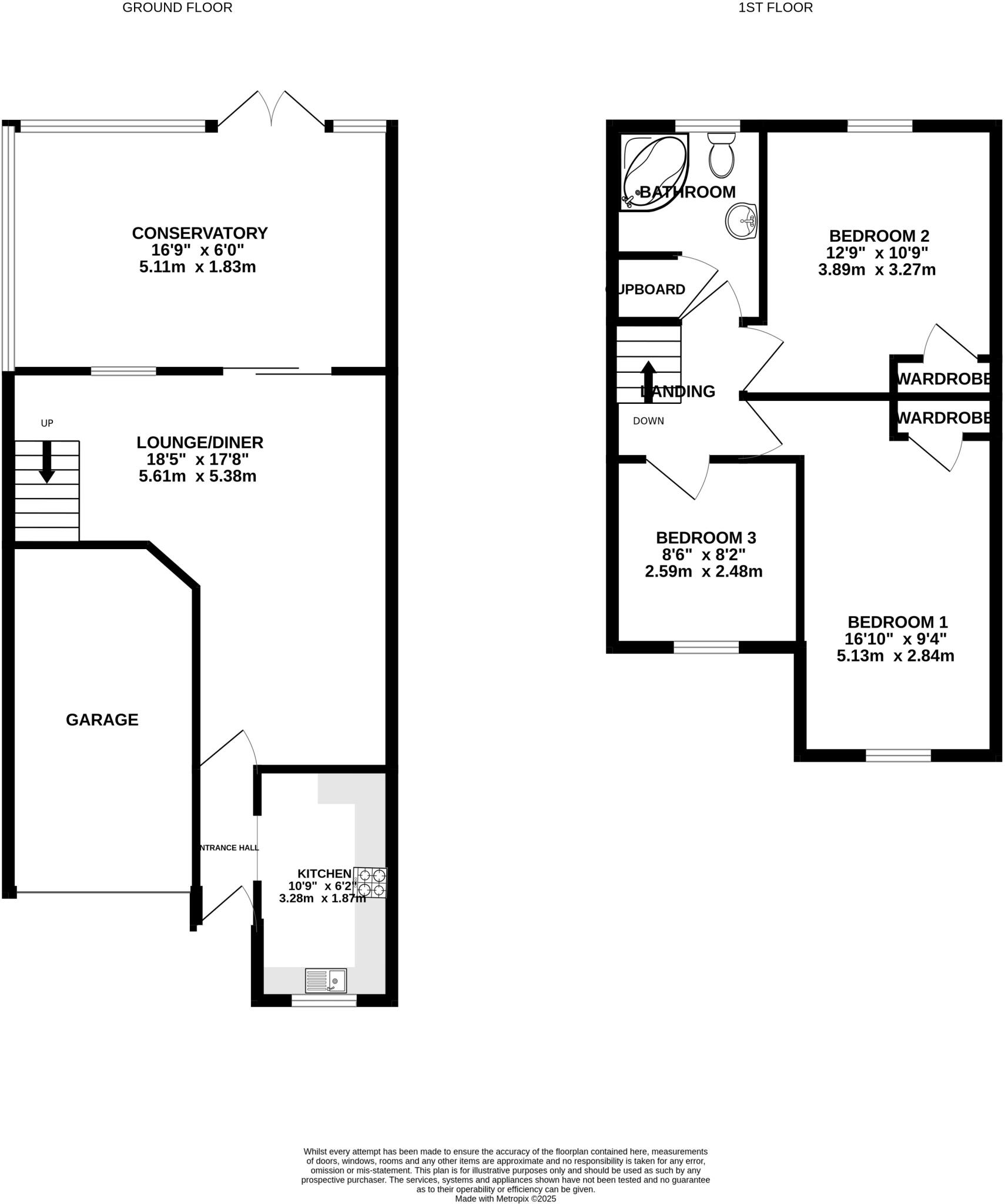
- Spacious lounge/diner opening to conservatory and garden
- Driveway for up to three cars plus single garage
- Boiler replaced 2016; hot water cylinder replaced 2025
- Single family bathroom only; modest plot limits extensions
- Built 1991–95; traditional mid-terrace construction
- UPVC double glazing installed before 2002
- Local crime levels above average; consider security measures
A practical three-bedroom mid-terrace in Blandford St Mary offering straightforward family living and good parking. The ground floor features a spacious lounge/diner that opens into a conservatory, giving a bright, versatile living space that flows out to a neat rear garden and patio. The kitchen has room for all usual appliances and the boiler was replaced in 2016; the hot water cylinder was renewed in 2025.
Bedrooms are generously proportioned for a home of this size and include built-in storage in two rooms. The single family bathroom is functional with a shower-over-bath and vinyl flooring. A driveway for up to three cars and an attached garage (with lighting and up-and-over door) are strong practical benefits; several neighbours have converted garages to create more internal space.
Set in a largely white professional, ageing rural neighbourhood with good local schools and practical amenities nearby, this home suits families seeking affordable space close to town. Note the plot is modest and the property is a traditional terrace built in the early 1990s, so opportunities for extension exist but will be limited by plot size. Crime levels are above average locally — worth checking if security is a priority.
Overall this is a tidy, well-serviced freehold home with obvious scope for cosmetic updating or modest reconfiguration to increase living space. Fast broadband and excellent mobile signal make it convenient for modern working needs.
3 bedroom detached house for sale in Lower School Lane, Blandford St. Mary, Blandford Forum, DT11 — £415,000 • 3 bed • 2 bath • 1361 ft²
3 bedroom terraced house for sale in Rosefields, Blandford St. Mary, Blandford Forum, Dorset, DT11 — £310,000 • 3 bed • 2 bath • 743 ft²
3 bedroom semi-detached house for sale in Badbury Drive, Blandford Forum, DT11 , DT11 — £330,000 • 3 bed • 1 bath • 732 ft²
3 bedroom semi-detached house for sale in Counter Close, Blandford Forum, DT11 — £352,500 • 3 bed • 1 bath • 850 ft²
3 bedroom semi-detached house for sale in Rosefields, Blandford St Mary, Blandford Forum, DT11 — £275,000 • 3 bed • 1 bath • 602 ft²
3 bedroom end of terrace house for sale in Chapel Gardens, Blandford Forum, Dorset, DT11 — £290,000 • 3 bed • 1 bath • 852 ft²


































































