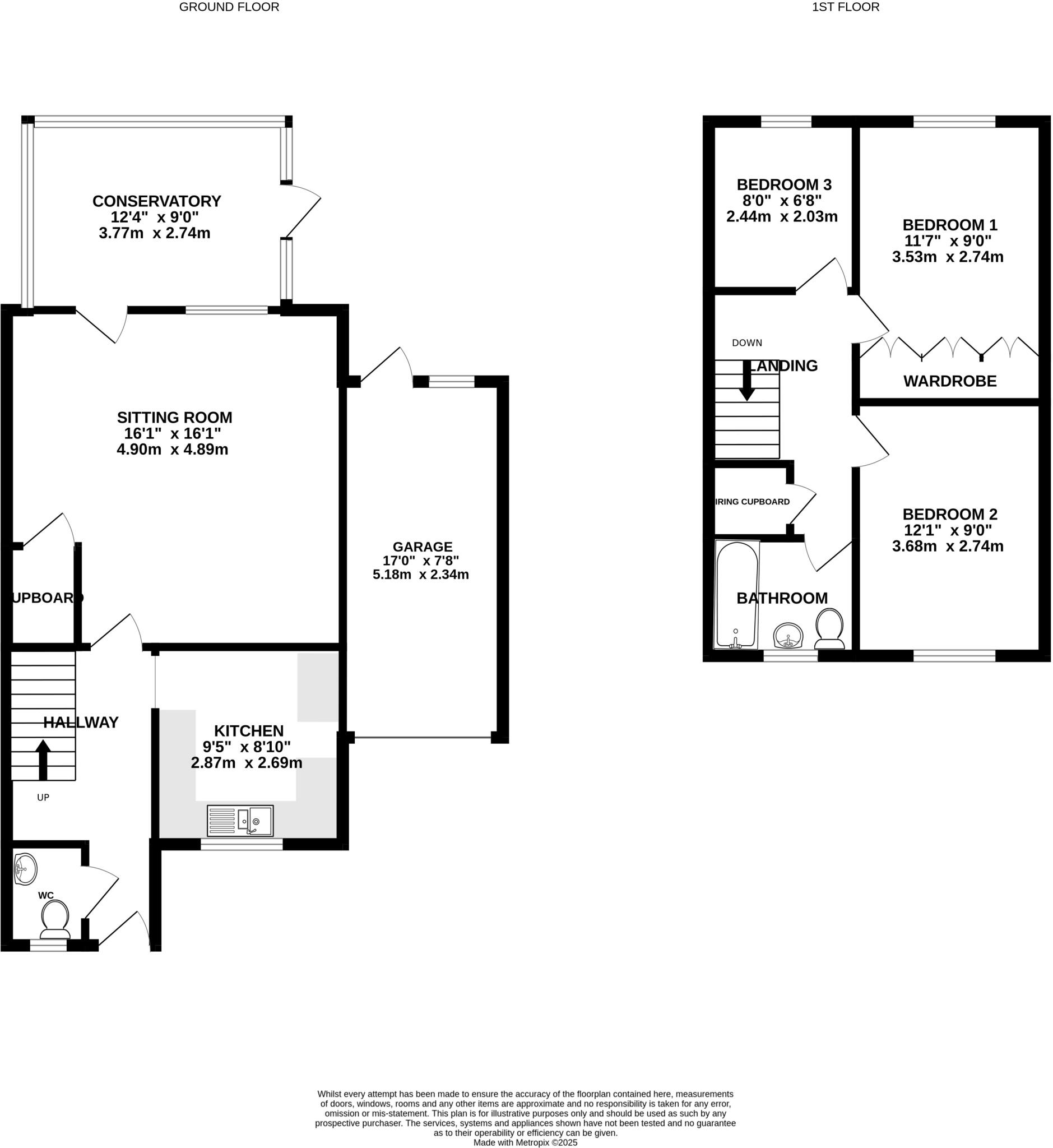
**Standalone Features:**
- Modern three-bedroom end-of-terrace house
- No upper chain, ensuring a smooth purchase process
- UPVC double glazing for energy efficiency
- Gas-fired central heating
- Convenient aluminium double-glazed conservatory
- Driveway and single garage
- Enclosed rear garden with low-maintenance design
- Desirable location near schools and local amenities
**Potential Concerns:**
- Dated interior decor requiring modernization
- Average crime rate for the area
Nestled in a peaceful cul-de-sac opposite Archbishop Wake School, this modern three-bedroom end-of-terrace house offers the perfect blend of family-friendly living and excellent convenience. The property is chain-free, allowing for a seamless transition to your new home. Featuring UPVC double glazing and gas central heating, comfort and efficiency are assured. The welcoming lounge with a feature fireplace leads into an inviting aluminium double-glazed conservatory—ideal for year-round enjoyment. Outside, the easy-to-maintain rear garden and single garage provide ample space for leisure and storage.
With the vibrant town of Blandford Forum just a short distance away, you'll have access to shopping, leisure activities, and picturesque riverside walks. Perfect for families, this home is set within proximity to well-rated primary and secondary schools. While the internal decor may need a refresh, this presents a fantastic opportunity to customize and create your dream living space. Don’t miss your chance to secure this exclusive property; it’s waiting for your personal touch!
3 bedroom end of terrace house for sale in Chapel Gardens, Blandford Forum, Dorset, DT11 — £290,000 • 3 bed • 1 bath • 627 ft²
2 bedroom semi-detached house for sale in Chapel Gardens, Blandford Forum, Dorset, DT11 — £275,000 • 2 bed • 1 bath • 476 ft²
3 bedroom terraced house for sale in Rosefields, Blandford St. Mary, Blandford Forum, Dorset, DT11 — £310,000 • 3 bed • 1 bath • 859 ft²
3 bedroom terraced house for sale in Wimborne Road, Blandford Forum, Dorset, DT11 — £295,000 • 3 bed • 2 bath • 717 ft²
3 bedroom end of terrace house for sale in Newman Close, Blandford Forum, Dorset, DT11 — £310,000 • 3 bed • 1 bath • 692 ft²
3 bedroom detached house for sale in Balmer Road, Blandford Forum, Dorset, DT11 — £375,000 • 3 bed • 2 bath • 655 ft²


































