Large plot, flexible living and double garage near Carmarthen amenities.
- Five double bedrooms and three bathrooms, ideal for large families
- Spacious living room with French doors to enclosed rear garden
- Double garage plus ample driveway parking and large plot
- Ground-floor study could serve as sixth bedroom or home office
- Oil central heating; EPC rating D — energy upgrades likely needed
- Council Tax Band G — running costs relatively high
- Freehold property built circa 1996–2002, well-presented externally
- Local area shows higher deprivation indices; no flood risk reported
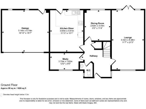
This substantial five-double-bedroom detached house sits at the end of a quiet cul-de-sac in Abergwili, offering versatile family accommodation across two floors. The layout includes a generous living room with French doors to the enclosed rear garden, a kitchen/diner, separate dining room, study (or potential sixth bedroom), and utility/boot space — all arranged for practical family life.
Outside, the large plot provides driveway parking and a double garage for secure parking, storage or a workshop. Multiple patio areas and mature planting make the garden low-to-moderate maintenance and well suited to children and outdoor entertaining. Broadband and mobile signal are strong, supporting home working and connectivity.
Practical considerations: the home is heated by an oil-fired boiler and is rated EPC D. Council Tax is in Band G and the surrounding area shows higher relative deprivation indices; prospective buyers should budget for running costs and future energy upgrades. The property is freehold, built in the late 1990s/early 2000s and presents well but offers sensible renovation potential for those seeking to personalise finishes or improve energy performance.
Overall, the house suits a large family seeking space, off-street parking and flexible rooms close to Carmarthen’s schools and amenities, with good links to the surrounding countryside. Viewings are recommended to appreciate the accommodation and garden layout in person.
5 bedroom detached house for sale in 9 Caeffynnon, Drefach, Llanelli, SA14 — £645,000 • 5 bed • 5 bath • 4380 ft²
4 bedroom detached house for sale in Wellfield Road, Abergwili , SA31 — £600,000 • 4 bed • 2 bath • 2507 ft²
3 bedroom detached house for sale in Abergwili Road, Carmarthen, Carmarthenshire, SA31 — £365,000 • 3 bed • 2 bath • 2702 ft²
5 bedroom detached house for sale in Cwmann, Lampeter, SA48 — £465,000 • 5 bed • 2 bath
6 bedroom detached house for sale in Bethania Road, Upper Tumble, Llanelli, SA14 — £450,000 • 6 bed • 4 bath • 3363 ft²
4 bedroom detached house for sale in Bronwydd Arms, Carmarthen, SA33 — £400,000 • 4 bed • 2 bath • 1105 ft²


























































































































