Large freehold plot opposite primary school; ideal for a family-new build or local developer.
Full planning permission granted (19 Feb 2024) for three-bed detached house
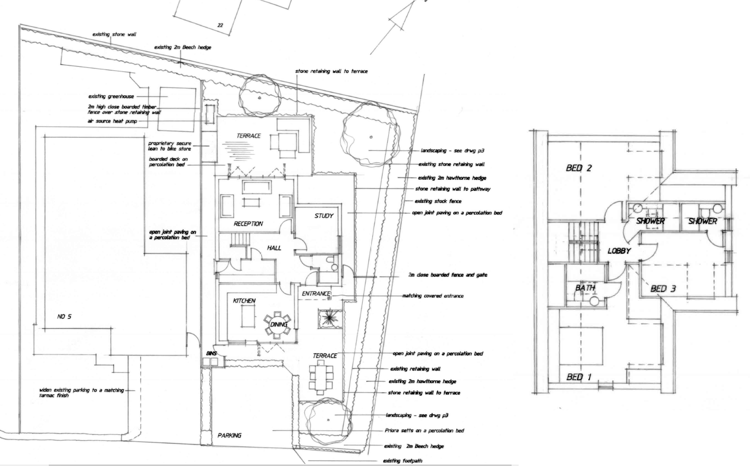
This large freehold building plot on Hawber Cote Lane comes with full planning permission (19 Feb 2024, 24/00040/FUL) to construct a three-bedroom detached home. The approved design includes ground-floor living with a front dining kitchen and rear living room with bi-fold doors, study, cloakroom, ensuite to the principal bedroom, separate bathroom and shower room—a practical family layout that links indoor space to garden areas.
Positioned opposite Silsden Primary School and close to the town centre, the site suits buyers who want a family home in a well-regarded small-town fringe location. The plot allows for front parking and terrace-style gardens front and rear, giving scope for outdoor seating, play space or landscaping to personal taste. Broadband is fast and mobile signal is excellent, supporting modern home-working needs.
The plot is offered at a guide price of £115,000 with an indicative finished value around £375,000, making it a viable project for owner-builders or local builders seeking a manageable development. The site will require landscaping and external works to tame the overgrown garden and prepare services and finishes to the approved plans.
Notable considerations: this is a land purchase for a new build—ongoing build costs, statutory fees and local authority connections are not included. Council tax and some running-cost estimates are not yet available. The location is very affluent and low flood risk, but classed as a small town / town-fringe setting rather than rural seclusion.
Plot for sale in Breakmoor Avenue, Silsden,, BD20 — £199,950 • 1 bed • 1 bath
Plot for sale in Cowling, Keighley, BD22 — £200,000 • 1 bed • 1 bath
Plot for sale in Trough Lane, Denholme, Bradford, West Yorkshire, BD13 — £295,000 • 5 bed • 3 bath • 2430 ft²
Plot for sale in Gilstead Lane, Bingley, West Yorkshire, BD16 — £750,000 • 1 bed • 1 bath
Land for sale in Ellar Carr Road, Thackley,, BD10 — £199,950 • 1 bed • 1 bath • 2500 ft²
Plot for sale in Building Plot, Park View, Skipton, BD23 — £300,000 • 4 bed • 4 bath • 2300 ft²






