Converted steading with services on site and strong road links to Glasgow.
Conditional planning for four single‑storey houses granted in 2024 (two refs)
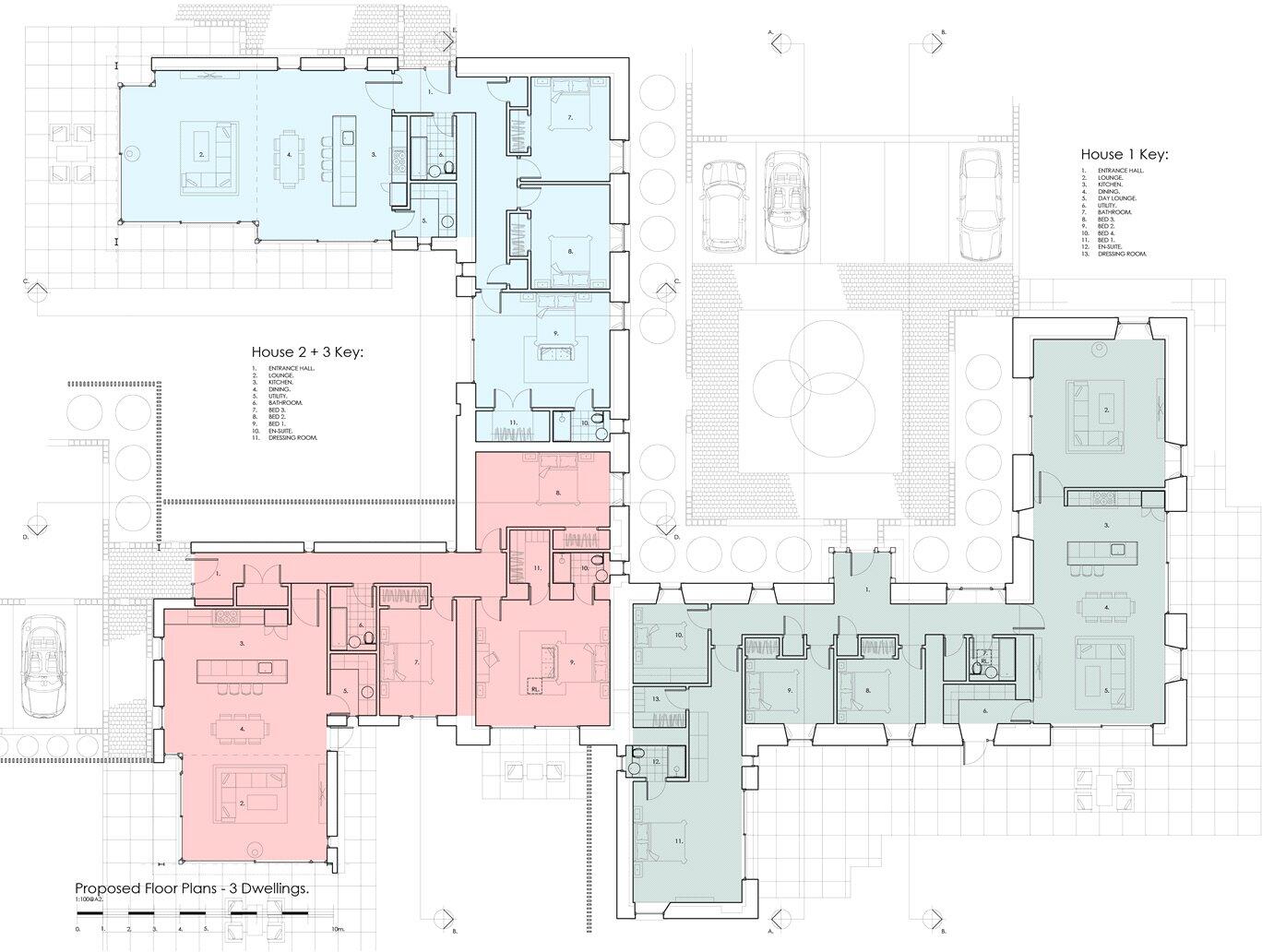
West Ashyard is a substantial steading development opportunity set in rolling East Ayrshire countryside, offered as a whole or in two lots. Conditional planning permissions were granted in 2024 for the conversion and extension of agricultural buildings to form four single‑storey dwellings (three on Lot 1, one on Lot 2). Water and electricity are already on site, and the owner reports no historic flooding.
The site suits a developer or experienced self‑builder able to complete conversions to residential standard. The consented scheme outlines generous single‑storey homes with private gardens and an allocation of 11 car parking spaces across the development. The location combines rural tranquility with good road links to the M77, Kilmarnock and Glasgow, plus nearby rail and airport connections.
Material considerations are straightforward but important: permissions are conditional and conversion works will require contractor input and sign‑off to meet building regulations. The site is accessed via a shared drive with a right of access and split maintenance responsibility. The surrounding area is classified as ageing rural neighbourhoods with indicators of local deprivation, which may influence sales values and timescales.
In short, West Ashyard offers clear planning upside and existing services on site for an experienced developer looking for a countryside conversion project; it demands hands‑on delivery and realistic marketing for rural buyer markets.
Land for sale in West Ashyard - Lot 1, Hurlford, Kilmarnock, KA1 — £295,000 • 1 bed • 1 bath
Land for sale in West Ashyard - Lot 2, Hurlford, Kilmarnock, KA1 — £100,000 • 1 bed • 1 bath • 11761 ft²
Land for sale in West Blackbyre Farm - Lot 2, Waterside, Kilmarnock, East Ayrshire, KA3 — £385,000 • 1 bed • 1 bath • 840 ft²
Plot for sale in Sornhill Row Housebuilding Plots, Plot 1, Galston, East Ayrshire, KA4 — £65,000 • 1 bed • 1 bath • 1415 ft²
Land for sale in West Blackbyre Farm Lot 1, Waterside, Kilmarnock, East Ayrshire, KA3 — £915,000 • 4 bed • 3 bath • 2559 ft²
Farm for sale in Brackenhill Farm, Cumnock, East Ayrshire, KA18 — £695,000 • 3 bed • 1 bath • 2478 ft²






























































