Freehold rural plot with consent for substantial bespoke family home..
Approximately 0.97 acres plot with full planning consent (ref. 23/0211/PP).
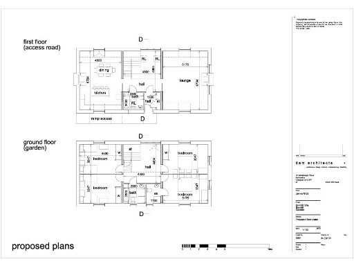
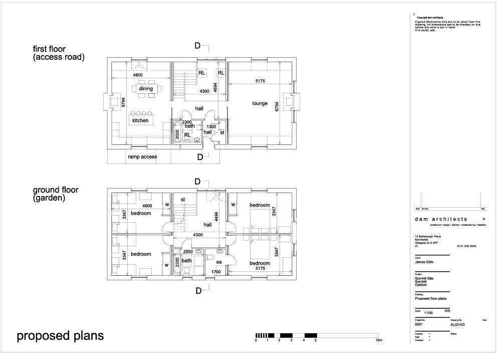
A rare opportunity to acquire Plot 1 at Sornhill Row: approximately 0.97 acres with full planning consent (ref. 23/0211/PP granted 25 May 2025) for a 1.5‑storey dwelling of about 200m2. The site sits in an attractive rural hamlet, set above open Ayrshire countryside with long views and immediate privacy. The proposed layout shows a generous dining kitchen, lounge and upper‑floor bathroom, with four bedrooms (one en suite) and family bathroom on the lower level — a plan that will suit a substantial family home or a high‑quality holiday/rural letting property.
Practical services are close by: mains water and electricity are available, but drainage will require private septic installation. Transport links are good for a rural location — roughly 26 miles to Glasgow via the M77, regular trains from Kilmarnock (8 miles) and Prestwick Airport about 16 miles away. Outdoor recreation in the Irvine Valley is excellent: walking, cycling, riding and nearby quality golf and fishing.
Be clear about the constraints: broadband speeds are slow and mobile signal is only average; this plot is in a remote, very deprived local area classification which may affect resale dynamics and service provision. Surface water and small watercourse flooding in the wider area carries an annual 10% chance, although the plot and proposed house positions were assessed by the seller’s engineers and located outside areas at risk of severe flooding. Drainage, access works and site clearance (pond/woodland scrub) will be required before construction.
At £65,000 for a freehold plot with planning consent, this is a competitively priced rural development plot. It will appeal to buyers wanting to build a bespoke family home in private countryside surroundings or investors seeking a plot with consent ready to progress, provided they accept the rural service limitations and groundwork obligations.
Land for sale in West Ashyard - Lot 2, Hurlford, Kilmarnock, KA1 — £100,000 • 1 bed • 1 bath • 11761 ft²
Land for sale in West Ashyard - Lot 1, Hurlford, Kilmarnock, KA1 — £295,000 • 1 bed • 1 bath
Land for sale in West Ashyard, Hurlford, Kilmarnock, KA1 — £395,000 • 1 bed • 1 bath
Land for sale in Residential Development Opportunity, Land At Galston Road, Hurlford, Kilmarnock, KA1 — £2,500,000 • 1 bed • 1 bath
Land for sale in Plot 17 Fairview Rowallan Castle, Kilmarnock, KA3 2LP, KA3 — £350,000 • 5 bed • 1 bath • 2913 ft²
Land for sale in Plot 1 Fairview Rowallan Castle, Kilmaurs, Kilmarnock, KA3 2LP, KA3 — £450,000 • 1 bed • 1 bath • 4467 ft²


































































