**Standout Features:**
- Modern showroom and adjoining warehouse
- Total size: 3,455 sqft
- Freehold tenure, chain-free sale
- Roller shutter access for convenience
- Forecourt parking for 5 cars
- High demand location in Poulton Business Park
- Rental option available at £25,000 pa
- Excellent mobile signal, average broadband speeds
- Ideal for commercial use or investment opportunities
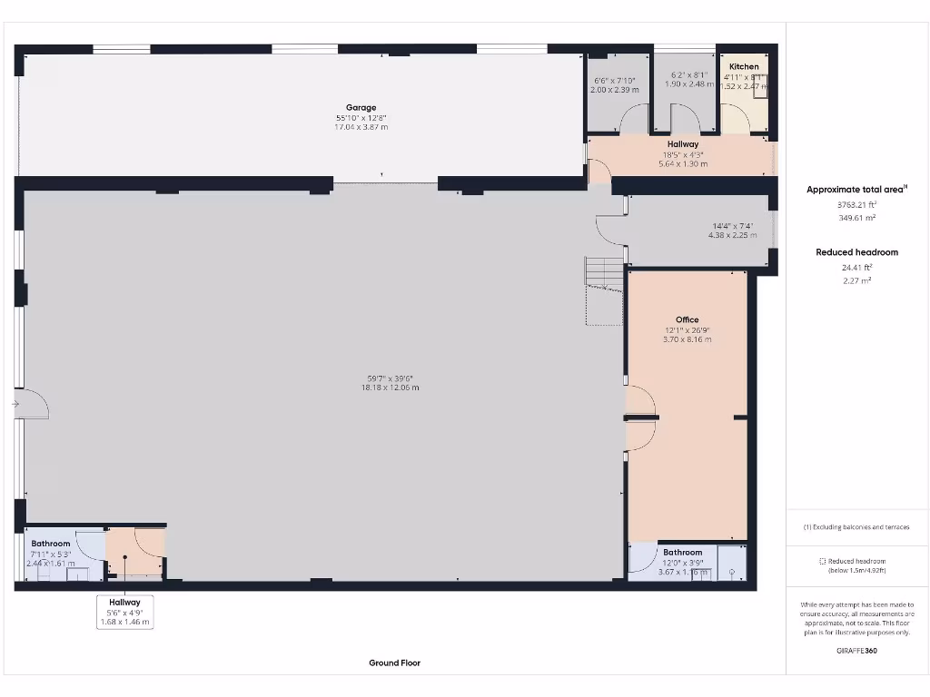
Introducing a spacious commercial property that perfectly blends a modern showroom with an adjoining warehouse, offering 3,455 square feet of versatile space. The impressive showroom spans approximately 2,400 square feet with a welcoming double-fronted entrance, making it ideal for retail or service-oriented businesses. The additional warehouse, approximately 710 square feet with roller shutter access and a 2.8m height, ensures easy operations for logistics or storage needs.
Positioned within the thriving Poulton Business Park, this property boasts excellent accessibility with connections to the M55 motorway, enhancing its appeal for businesses looking to capture the local market. With a generous plot size and forecourt parking for five vehicles, this site is primed for operational efficiency.
This property is not only suitable for those seeking a business location but also presents significant investment potential. Schools nearby boast high Ofsted ratings, further solidifying the location's desirability for families and professionals alike.
Though the property is modern and well-maintained, the gas central heating system has had its meter removed, so a review of utilities is advised. With the option to rent, opportunities like this don’t last long—act now to secure your spot in this sought-after enclave.
Light industrial facility for sale in Units 3-4, Kincraig Court, Kincraig Road, Bispham, Blackpool, Lancashire, FY2 0FY, FY2 — £1,600,000 • 1 bed • 1 bath
Light industrial facility for sale in Building 3 Aldon Road, Poulton Business Park, FY6 8JL, FY6 — £265,000 • 1 bed • 1 bath • 4375 ft²
Light industrial facility for sale in Office/showroom , Unit 4 Amy Johnson Way, Blackpool, Lancashire, FY4 — £1,125,000 • 1 bed • 1 bath • 20595 ft²
Light industrial facility for sale in Unit 6 Willow Court (off Bracewell Avenue), Poulton Business Park , Poulton, Lancashire, FY6 — £185,000 • 1 bed • 1 bath • 2700 ft²
Warehouse for sale in Amy Johnson Way, Blackpool, Lancashire, FY4 — £1,250,000 • 1 bed • 1 bath • 16250 ft²
Industrial development for sale in Units 3 4, Siding Road, Fleetwood, FY7 6NS, FY7 — £445,000 • 1 bed • 1 bath • 7871 ft²


























