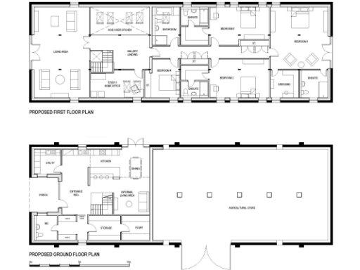
**Standout Features:**
- Class Q approval for residential change of use
- Over 4,000 sq ft potential living space
- Large plot of approximately 2.84 acres
- Ideal location with good transport links
- Chain-free and freehold tenure
**Potential Downsides:**
- Limited connectivity with average mobile signal and slow broadband speeds
- Requires a complete renovation and connection to utilities
Nestled on the outskirts of a charming Derbyshire village, "The Barn" offers an exciting opportunity for buyers looking to create their bespoke dream home. With planning permission already secured for a residential conversion of this substantial former agricultural building, the property boasts a total floor area exceeding 4,000 sq ft, making it perfect for families or those seeking a tranquil lifestyle away from the hustle and bustle. The generous 2.84-acre plot features stunning countryside views, ideal for equine enthusiasts or agricultural endeavors.
The Barn is strategically located near essential transport links, including easy access to the A38, allowing for convenient travel to nearby towns and commuting routes. However, the property does require renovations and will need connections to utilities, ideal for those passionate about tailoring their space.
Seize this unique opportunity in a market with limited rural offerings—envision your customized lifestyle in this expansive and private setting before someone else does!
5 bedroom barn conversion for sale in Back Lane, Brackenfield, DE55 — £1,000,000 • 5 bed • 4 bath • 4062 ft²
4 bedroom barn conversion for sale in The Byre and buildings, Shuttlewood Road, Bolsover, S44 — £650,000 • 4 bed • 2 bath • 1237 ft²
3 bedroom barn conversion for sale in Broadholme Farm, Matlock Road, Belper, DE56 — £650,000 • 3 bed • 2 bath • 1647 ft²
4 bedroom barn conversion for sale in The Byre, Shuttlewood Road, Bolsover, S44 — £575,000 • 4 bed • 2 bath • 1012 ft²
6 bedroom barn conversion for sale in Woodside, Ilkeston, DE7 — £685,000 • 6 bed • 2 bath • 2000 ft²
4 bedroom barn conversion for sale in The Old Granary, Scarsdale House Farm, Loscoe-Denby Lane, Loscoe, Heanor, DE75 — £465,000 • 4 bed • 2 bath • 1278 ft²


































