S44 6NX - 4 bedroom barn conversion for sale in The Byre and building…

View on Property Piper

4 bedroom barn conversion for sale in The Byre and buildings, Shuttlewood Road, Bolsover, S44

Summary - Shuttlewood Road S44 6NX

4 bed 2 bath Barn Conversion

Newly converted barn with 3.76 acres, modern outbuildings and double garage — ideal for hobby farming..
Stone-built, newly converted barn finished to an impeccable standard
Open-plan living kitchen–diner with exposed beams and Velux rooflights
Four bedrooms (two ground-floor doubles) and two bathrooms
Double garage, gravel driveway and walled garden with patio
Approximately 3.76 acres of pasture with modern agricultural buildings
Shared septic tank drainage; verify heating system details on inspection
Development potential for agricultural buildings subject to planning consent
Neighbouring right-of-way across part of driveway and yard
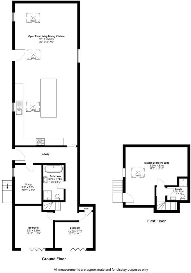
The Byre is a newly converted stone barn offering spacious, well-finished accommodation across two floors and set within about 3.76 acres of pasture. The ground floor features an impressive open-plan kitchen–diner with exposed beams and Velux windows, plus two double bedrooms with patio doors and a flexible additional room usable as a study or fourth bedroom. Upstairs is a generous master suite with ensuite and attractive stone detailing. Externally the property includes a double garage, gravel driveway, walled lawn and patio, plus a range of modern agricultural buildings and manageable paddocks suited to small-scale hobby farming, equestrian use or amenity interests. Practical points to note: drainage is via a shared septic tank; heating information lists both oil-fired underfloor heating and mains gas boiler — prospective buyers should verify the installed systems. The site has neighbouring rights of way along part of the driveway and yard and any redevelopment of agricultural buildings will require planning consent. The location balances rural outlooks with relatively close access to Bolsover, Chesterfield and Sheffield; mobile signal and broadband are reported good, but the local area has above-average crime and higher deprivation indices.

Property Details

Brochure Descriptions

Image Descriptions

Floorplan Description

Rooms

Textual Property Features

Target Audience

AI Tags

Detected Visual Features

EPC Details

Nearby Schools

Nearest Bars And Restaurants

,,,,}

Nearest General Shops

,,}

Nearest Grocery shops

,,}

Nearest Supermarkets

,,}

Nearest Religious buildings

,,}

Nearest Medical buildings

,,,}

Nearest Leisure Facilities

,,,,}

Nearest Tourist attractions

,,}

Nearest Train stations

,,,,}

Nearest Bus stations and stops

,,,,}

Nearest Hotels

,,}

Tags

Local Market Stats

Similar Properties

Meta

High Res Images

Compatible Images

Low res Images

Thumbnails

Raw Images

High Res Floorplan Images

Compatible Floorplan Images

Low res Floorplan Images

FloorplanImages Thumbnail

Raw Floorplan Images