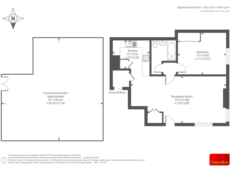
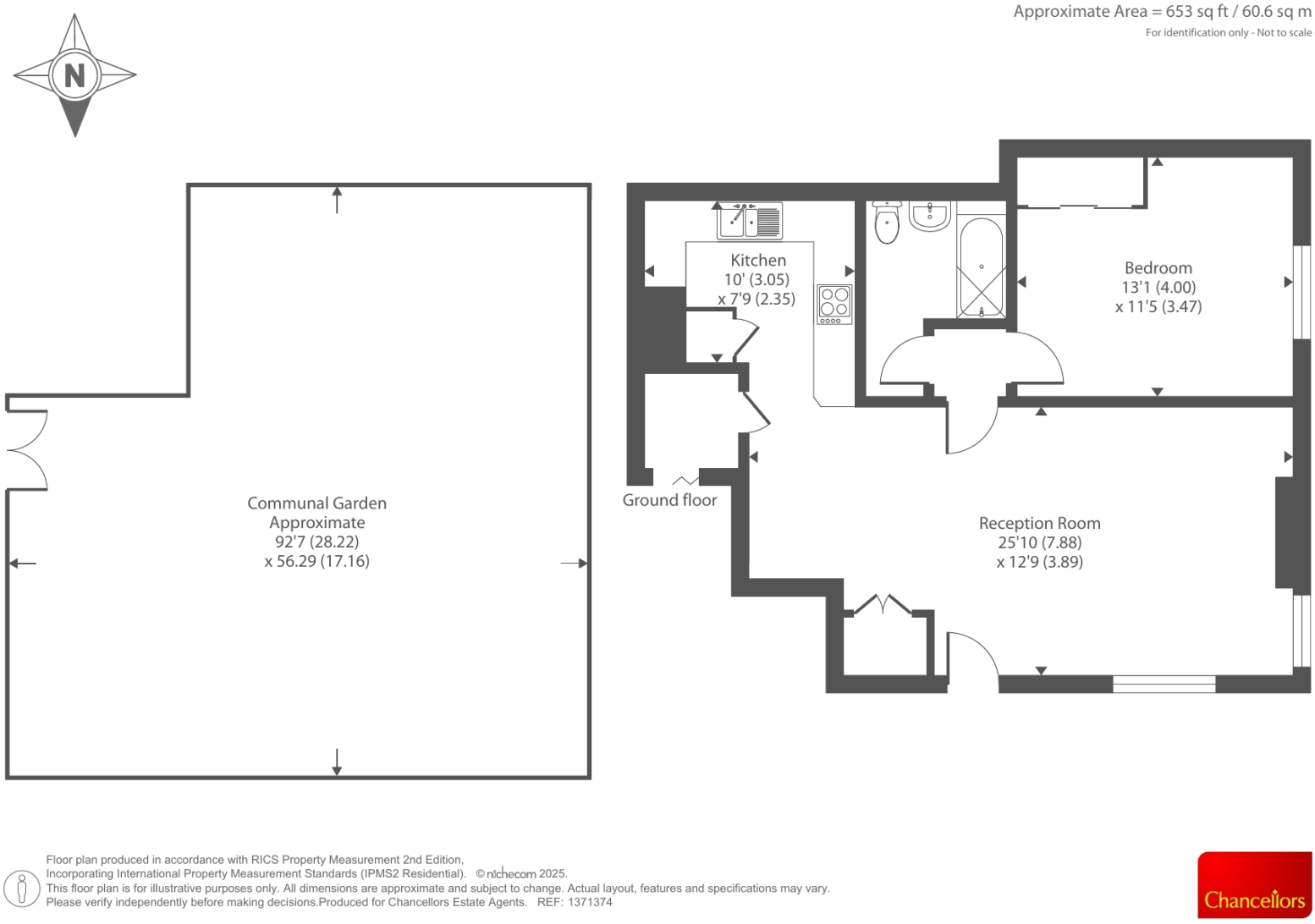
Spacious character flat near station and city centre, ready for cosmetic upgrade.
- Approximately 655 sq ft of lateral accommodation
- One double bedroom with built-in wardrobes
- Spacious reception with open-plan fitted kitchen
- Modern three-piece bathroom; gas central heating
- Long lease: 999 years from July 1999 (c. 973 years remaining)
- Secure gated off-street parking and communal garden
- Exterior needs some renovation; stone walls likely uninsulated
- Medium flood risk and higher local crime rates
A spacious one-bedroom converted maisonette offering about 655 sq ft of lateral living on Osney Island. The bright reception room and open-plan fitted kitchen create a flexible living space ideal for a single professional, couple, or investor seeking strong rental appeal close to central Oxford and the station.
The property sits in a conservation area within easy walking distance of the mainline railway station, city centre and riverside walks. Benefits include gas central heating, double glazing, gated off-street parking and access to a well-maintained communal garden. The long lease (999 years from 1999) provides tenure security.
Buyers should note material considerations: the exterior shows signs of wear and would benefit from refurbishment, the property's stone walls likely lack insulation, and the double glazing dates from before 2002. There is a medium flood risk for the area and recorded higher local crime rates; these are important for occupiers and insurers. Council tax is moderate.
This home suits first-time buyers looking for character with space and proximity to transport, or investors targeting high-demand rental locations. The layout and size offer straightforward potential for cosmetic improvement to increase comfort or rental yield, but budget for external repairs and potential insurance/flood premiums.
2 bedroom terraced house for sale in East Street, Osney Island, Oxford, OX2 — £725,000 • 2 bed • 1 bath • 965 ft²
3 bedroom terraced house for sale in Bridge Street, Oxford, Oxfordshire, OX2 — £675,000 • 3 bed • 2 bath • 892 ft²
2 bedroom terraced house for sale in Bridge Street, Oxford, Oxfordshire, OX2 — £500,000 • 2 bed • 1 bath • 808 ft²
2 bedroom end of terrace house for sale in Swan Street, Osney Island, OX2 — £495,000 • 2 bed • 1 bath • 682 ft²
1 bedroom flat for sale in Botley, Oxford, OX2 — £210,000 • 1 bed • 1 bath • 336 ft²
2 bedroom terraced house for sale in Bridge Street, Oxford, Oxfordshire, OX2 — £500,000 • 2 bed • 1 bath • 775 ft²














































































