Three-bedroom modern village home with garden room and air source heat pump.
Three double bedrooms with ensuite to principal bedroom
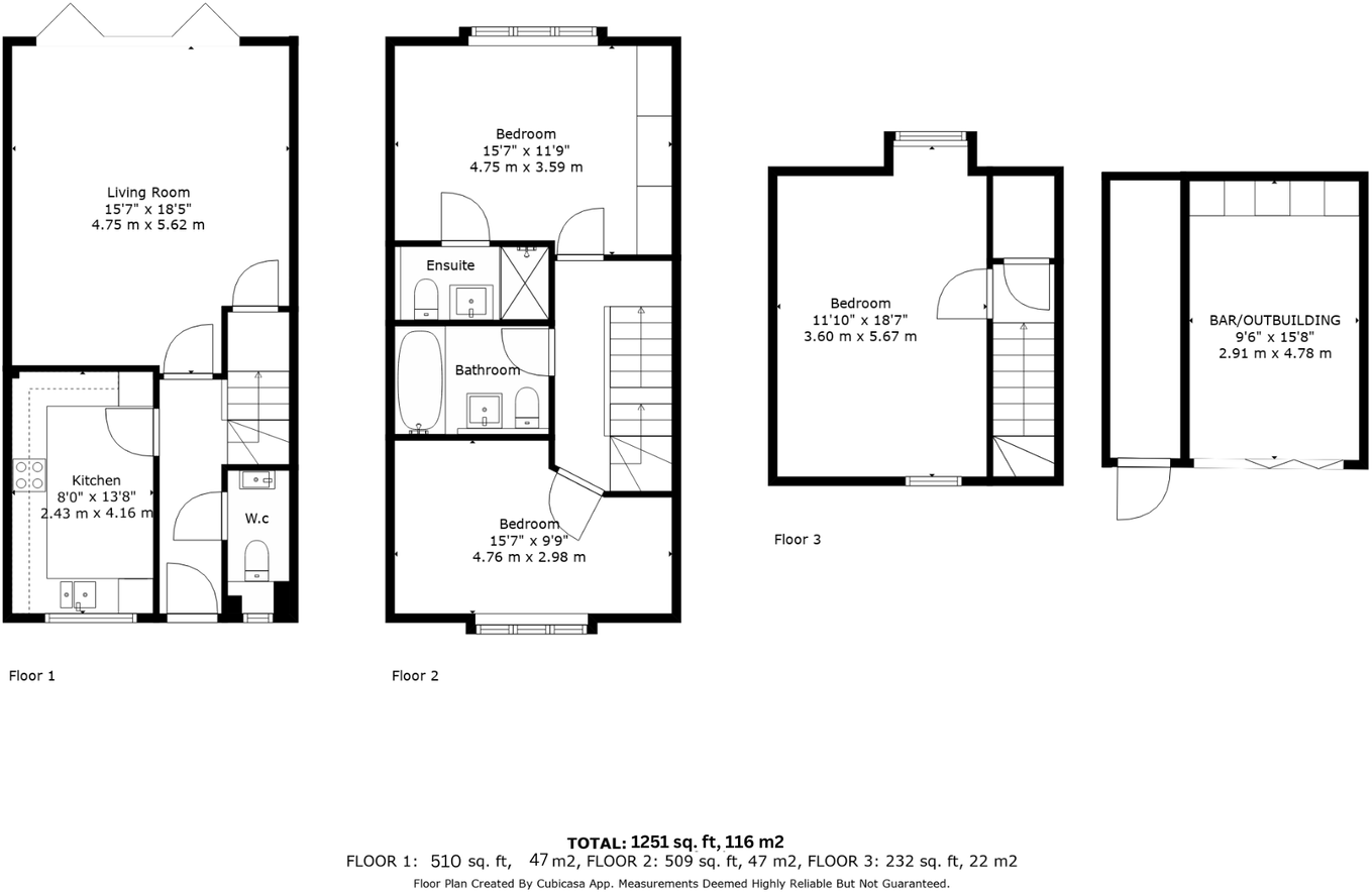
This three-bedroom semi-detached home in Charlwood blends modern efficiency with village living, arranged over three floors to suit growing families. The principal bedroom includes an ensuite and the top-floor double benefits from excellent eaves storage. A bespoke shaker-style kitchen, open-plan living/dining area and sliding bi-fold doors create a bright, sociable ground floor that opens onto a low-maintenance garden and patio.
Practical running costs are reduced by an air source heat pump and an electric car charging point; the property also has air conditioning for comfort. A recently constructed garden room/bar provides versatile extra space for family use or entertaining, with adjacent storage for bikes and garden equipment. Two off-street parking spaces add convenience for households with multiple vehicles.
Buyers should note some local and technical constraints: the area records higher-than-average local crime and broadband speeds are slow, which could affect remote working. The property is freehold, with a decent plot and moderate council tax banding. Overall this home suits families seeking village community life with good rail links to Gatwick and London.
2 bedroom semi-detached house for sale in Perrylands, Charlwood, Horley, RH6 — £400,000 • 2 bed • 1 bath • 721 ft²
3 bedroom semi-detached house for sale in The Street, Charlwood, Horley, RH6 — £500,000 • 3 bed • 2 bath • 1536 ft²
3 bedroom semi-detached house for sale in The Street, Charlwood, Horley, RH6 — £500,000 • 3 bed • 2 bath • 1536 ft²
3 bedroom semi-detached house for sale in Ref: EL - Chalmers Close, Charlwood, RH6 0DP, RH6 — £450,000 • 3 bed • 1 bath • 1155 ft²
3 bedroom semi-detached house for sale in Norwood Hill Road, Charlwood, Horley, Surrey, RH6 — £425,000 • 3 bed • 3 bath • 1200 ft²
4 bedroom detached house for sale in Blue Bird Gate, Charlwood, RH6 — £950,000 • 4 bed • 3 bath • 1443 ft²






























































































