Spacious four-bedroom house with private garden and strong school links.
Newly fitted roof offering immediate protection and peace of mind
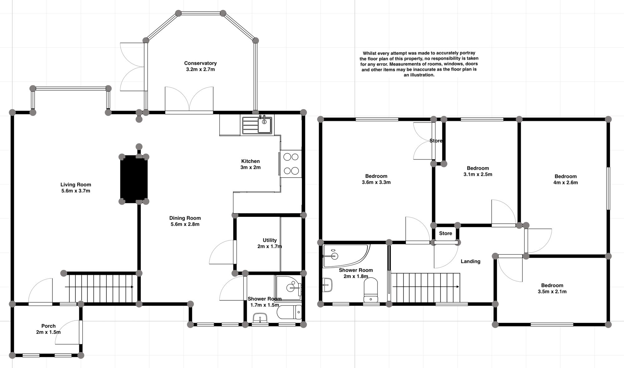
This well-proportioned four-bedroom semi-detached home sits on a quiet Llanishen street and offers genuine family practicality. A newly fitted roof, two modern bathrooms and four double bedrooms give immediate comfort, while the open-plan kitchen, dining area and conservatory create a bright hub for everyday life.
Outside space is low-maintenance and private, with an artificial lawn, decked seating beneath a gazebo, driveway parking for several cars and a detached garage. The location is a strong draw: top local primary and secondary schools are within minutes, and transport links — including a direct train to Cardiff Central — make commuting straightforward.
Buyers should note some material considerations. The property dates from the 1950s–60s and the cavity walls are recorded as having no insulation (assumed), contributing to an EPC rating of D; energy-efficiency improvements will be beneficial. The wider area has higher deprivation and above-average crime statistics, so prospective purchasers should weigh local context alongside the home’s amenities and scope for improvement.
3 bedroom semi-detached house for sale in St. Dogmaels Avenue, Llanishen, Cardiff(City), CF14 — £349,950 • 3 bed • 2 bath • 1433 ft²
3 bedroom semi-detached house for sale in Whitesands Road, Llanishen, Cardiff. CF14 — £290,000 • 3 bed • 1 bath • 972 ft²
4 bedroom semi-detached house for sale in Edgehill Avenue, Llanishen, Cardiff, CF14 — £375,000 • 4 bed • 2 bath • 1252 ft²
4 bedroom house for sale in Everest Avenue, Llanishen, Cardiff, CF14 — £500,000 • 4 bed • 1 bath • 1846 ft²
3 bedroom semi-detached house for sale in Bardsey Crescent, Llanishen, Cardiff. CF14 — £315,000 • 3 bed • 1 bath • 918 ft²
3 bedroom semi-detached house for sale in Johnston Road, Llanishen, Cardiff, CF14 — £350,000 • 3 bed • 1 bath • 842 ft²


































































































































