CM14 4PA - 4 bedroom bungalow for sale in Westwood Avenue, Brentwood,…

View on Property Piper

4 bedroom bungalow for sale in Westwood Avenue, Brentwood, Essex, CM14

Summary - 4 WESTWOOD AVENUE BRENTWOOD CM14 4PA

4 bed 3 bath Bungalow

Large south-facing garden, four beds, and quick walk to Brentwood station—ideal for families..
South-facing private rear garden in excess of 80 feet
0.6 miles to Brentwood station; 0.8 miles to high street
Four bedrooms and three bathrooms; flexible family layout
Freehold semi-detached bungalow with driveway parking
Open-plan modern kitchen/dining with integrated appliances
Built 1930–1949; solid brick walls assumed without insulation
Council tax band above average for the area
Very affluent area; fast broadband and excellent mobile signal
Set on Brentwood’s popular west side, this spacious four-bedroom bungalow offers comfortable, flexible family living across well-proportioned rooms. The house benefits from a large, private south-facing rear garden in excess of 80' — ideal for children, entertaining and home working — plus a paved patio and outbuilding. Commuters will value the short 0.6-mile walk to Brentwood station and quick access to the high street and local amenities.

Interiors include a bright open-plan kitchen/dining area with modern finishes and integrated appliances, plus a separate living room with bay window. The layout and room sizes suit families needing ground-floor living and additional bedrooms, with three bathrooms adding practical convenience. The property is freehold and comes with off-street driveway parking.

Buyers should note the house was constructed in the 1930s–40s with solid brick walls assumed to have no cavity insulation; upgrading wall insulation may be advisable. Council tax is above average for the area. While generally well presented, the property is best suited to purchasers who appreciate period construction and are prepared to carry out any energy-efficiency improvements they choose.

Local schools include several highly regarded options, notably St Peter’s C of E (Outstanding) and two top-10% ranked secondary schools, making this a strong family-focused location. The area profile is affluent with fast broadband and excellent mobile signal.

Property Details

Brochure Descriptions

Image Descriptions

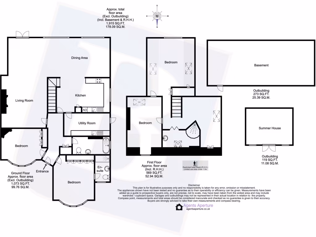
Floorplan Description

Rooms

Textual Property Features

Target Audience

AI Tags

Detected Visual Features

EPC Details

Nearby Schools

Nearest Bars And Restaurants

,,,,}

Nearest General Shops

,,}

Nearest Grocery shops

,,}

Nearest Supermarkets

,,}

Nearest Religious buildings

,,}

Nearest Medical buildings

,,,}

Nearest Airports

,}

Nearest Leisure Facilities

,,,,}

Nearest Tourist attractions

,,}

Nearest Train stations

,,,,}

Nearest Bus stations and stops

,,,,}

Nearest Hotels

,,}

Tags

Local Market Stats

AirBnB Data

Similar Properties

Meta

High Res Images

Compatible Images

Low res Images

Thumbnails

Raw Images

High Res Floorplan Images

Compatible Floorplan Images

Low res Floorplan Images

FloorplanImages Thumbnail

Raw Floorplan Images