**Standout Features:**
- Extended semi-detached bungalow
- Two double bedrooms with one en-suite shower room
- Open-plan design maximizing light and space
- Modern kitchen with central island and stylish finishes
- Good-sized, secluded garden with views onto fields
- Spacious block paved driveway accommodating three cars
- Chain-free and ready for immediate occupancy
**Potential Downsides:**
- Sizable outdoor maintenance required for garden upkeep
- Location might have average mobile coverage
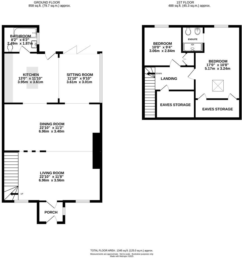
Discover this captivating extended semi-detached bungalow nestled in the heart of an affluent community, ideal for families or downsizers seeking tranquility without sacrificing convenience. Boasting an open-plan living and dining area that invites natural light, the space is perfect for social gatherings or cozy family evenings. The beautifully appointed kitchen features a central island and bi-fold doors that offer seamless access to the private garden, backing onto serene fields—an oasis of peace in a bustling area.
Enjoy the convenience of two spacious double bedrooms, including a master suite with an en-suite shower room. With a location that grants easy access to Brentwood’s amenities and transport links, this home offers both comfort and potential for future renovations or stylings. The property comes with a generous block-paved driveway for ample parking and a low-crime neighborhood that ensures safety for peace of mind.
This bungalow not only provides a lifestyle of comfort but also embodies a rare blend of modern living and countryside charm—don't miss your opportunity to view; homes like this in such sought-after settings don't stay on the market long!



















































































































