Flexible family home with garden, attic room and off-street parking..
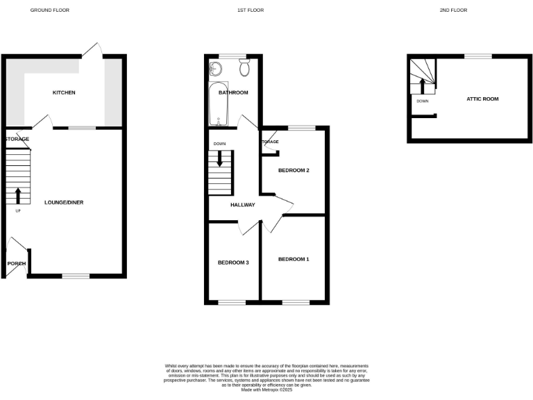
Three bedrooms plus spacious attic room for office or guest use
This Victorian mid-terrace on Courtney Street offers flexible family living across three floors with an additional attic room. An open-plan lounge/diner and a modern fitted kitchen provide practical daily spaces, while the rear enclosed garden and off-street parking add useful outdoor and storage convenience. The property is freehold and benefits from gas central heating, double glazing and a D-rated EPC.
Set in Manselton, the house is close to local schools, shops, regular bus routes and quick routes into Swansea city centre and the M4. The room sizes are well-proportioned for an average-sized family home, and the attic room gives space for a home office, playroom or guest room.
Buyers should note the property sits in a very deprived area and on a small plot, which may affect resale in some markets. The stone walls are original with assumed no insulation, and some internal redecoration is needed where wear is visible. There is a single family bathroom and walls/roof are period construction (pre-1900), so buyers seeking a fully modern, turnkey home may want to budget for targeted improvements.
Overall this terraced house will suit families or first-time buyers looking for space and good transport links who are comfortable carrying modest cosmetic updates. Its combination of extra floor space, garden and parking offers clear practical value at the listed price point.
 2 bedroom terraced house for sale in Elgin Street, Swansea, SA5 — £175,000 • 2 bed • 1 bath • 927 ft²
 2 bedroom terraced house for sale in Elgin Street, Swansea, SA5 — £175,000 • 2 bed • 1 bath • 927 ft² 2 bedroom terraced house for sale in Robert street, Manselton, Swansea, SA5 — £170,000 • 2 bed • 2 bath • 1033 ft²
 2 bedroom terraced house for sale in Robert street, Manselton, Swansea, SA5 — £170,000 • 2 bed • 2 bath • 1033 ft² 3 bedroom terraced house for sale in Clare street, Manselton, Swansea, SA5 — £200,000 • 3 bed • 1 bath • 1020 ft²
 3 bedroom terraced house for sale in Clare street, Manselton, Swansea, SA5 — £200,000 • 3 bed • 1 bath • 1020 ft² 3 bedroom detached house for sale in Capel Road, Swansea, SA6 — £330,000 • 3 bed • 1 bath • 1689 ft²
 3 bedroom detached house for sale in Capel Road, Swansea, SA6 — £330,000 • 3 bed • 1 bath • 1689 ft² 4 bedroom end of terrace house for sale in Dynevor Road, Skewen, Neath, Neath Port Talbot, SA10 — £225,000 • 4 bed • 1 bath
 4 bedroom end of terrace house for sale in Dynevor Road, Skewen, Neath, Neath Port Talbot, SA10 — £225,000 • 4 bed • 1 bath 3 bedroom terraced house for sale in Crown Street, Swansea, SA6 — £124,995 • 3 bed • 1 bath • 1109 ft²
 3 bedroom terraced house for sale in Crown Street, Swansea, SA6 — £124,995 • 3 bed • 1 bath • 1109 ft²


































































































