Chain-free property with gas heating, double-glazed porch and private rear garden.
Chain-free freehold end terrace with gas central heating
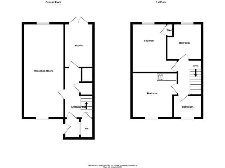
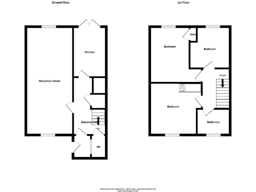
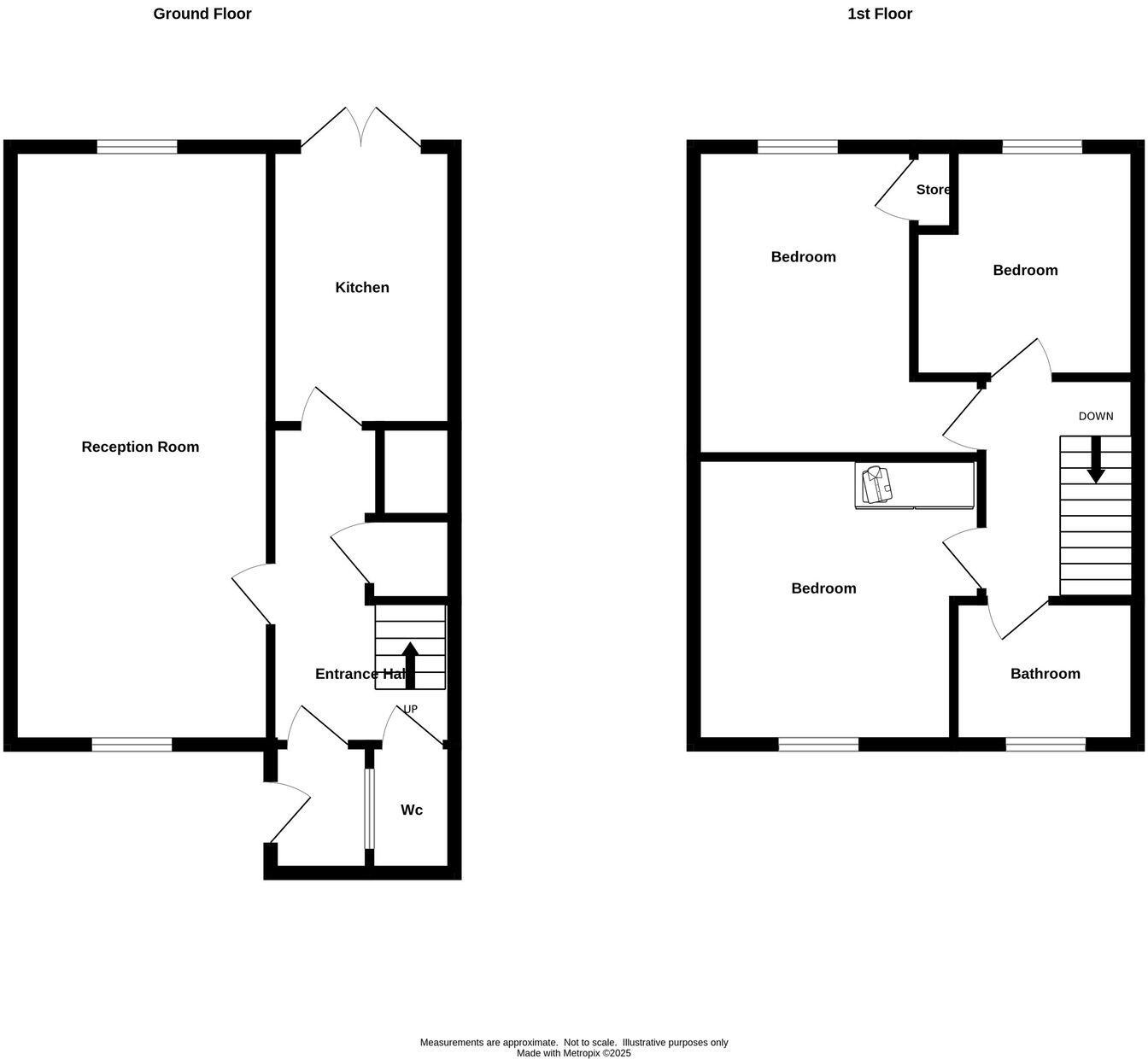
This end-of-terrace home offers straightforward family living across an average-sized 905 sq ft layout. The ground floor features a double-glazed porch, cloakroom WC and a generous through living room with attractive fireplace. A fitted kitchen includes an integral oven, hob and microwave and opens to a mainly paved rear garden with shed and rear gate.
Upstairs are three decent bedrooms, a bathroom with separate shower cubicle and built-in storage including a cupboard housing the central heating boiler. The property has gas central heating, PVC double glazing to most windows and an EPC C rating. There is no upward chain, freehold tenure and council tax band B.
Practical buyers will value the immediate move-in potential, good nearby primary and secondary schools rated Good, fast broadband and excellent mobile signal. The house dates from the late 1970s with cavity walls and partial insulation; it offers scope for cosmetic updating or modest improvement to increase value.
Notable considerations: one window remains single glazed, the rear plot is small and the local area scores high on deprivation indices. Viewings are recommended to assess room proportions and decide on any upgrades required.
3 bedroom end of terrace house for sale in ROWLEY REGIS, Harvington Walk, B65 — £198,000 • 3 bed • 1 bath • 1055 ft²
3 bedroom end of terrace house for sale in Springfield Lane, Rowley Regis, B65 8PJ, B65 — £195,000 • 3 bed • 1 bath • 748 ft²
3 bedroom end of terrace house for sale in Hare Grove, Northfield, B31 — £195,000 • 3 bed • 1 bath • 698 ft²
3 bedroom terraced house for sale in ROWLEY REGIS, Harvington Walk, B65 — £195,000 • 3 bed • 1 bath • 991 ft²
3 bedroom semi-detached house for sale in ROWLEY REGIS, Brickhouse Road, B65 — £199,950 • 3 bed • 1 bath • 1040 ft²
3 bedroom semi-detached house for sale in Kineton Road, Rubery, Rednal, Birmingham, B45 — £250,000 • 3 bed • 1 bath • 923 ft²


















































