**Standout Features:**
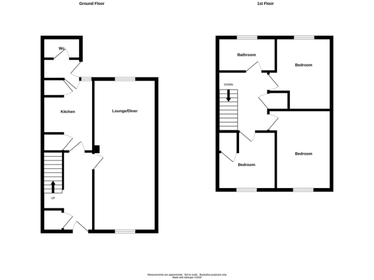
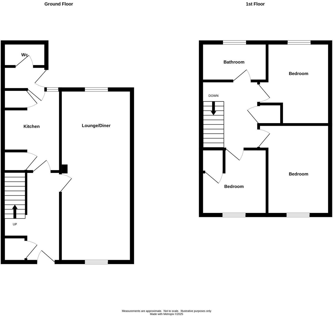
- Spacious three-bedroom mid-terraced home
- Gas central heating and double glazing throughout
- Generously sized lounge diner with fireplace
- Low-maintenance rear garden with potential for parking
- Freehold tenure, chain-free sale, and a competitive price of £195,000
- Top broadband speeds and very low flood risk
- Close to good local schools and amenities
This charming mid-terraced home is an ideal opportunity for first-time buyers seeking space and potential. It features a welcoming hall leading to a large lounge diner, perfect for family gatherings, along with a functional kitchen and three comfortable bedrooms. While the property is in need of some updating, it presents a canvas for you to create your dream space, emphasizing its renovation potential.
The low-maintenance rear garden offers outdoor enjoyment and the possibility for off-street parking—a rare find in suburban settings. With a budget-friendly Council Tax Band B and excellent broadband speeds, this property not only makes living easy but also showcases future value. Enjoy the convenience of nearby schools rated good by Ofsted, along with various local amenities just a stone’s throw away. Act quickly—this opportunity won’t last long in today’s market!
3 bedroom end of terrace house for sale in ROWLEY REGIS, Harvington Walk, B65 — £198,000 • 3 bed • 1 bath • 1055 ft²
3 bedroom terraced house for sale in ROWLEY REGIS, Gorsty Hill Road, B65 — £154,950 • 3 bed • 1 bath • 840 ft²
3 bedroom semi-detached house for sale in Uplands Avenue, Rowley Regis, West Midlands, B65 — £250,000 • 3 bed • 2 bath • 937 ft²
3 bedroom semi-detached house for sale in ROWLEY REGIS, Harvest Road, B65 — £200,000 • 3 bed • 1 bath • 731 ft²
3 bedroom terraced house for sale in Elliston Avenue, Great Barr, Birmingham, B44 8TG, B44 — £195,000 • 3 bed • 1 bath
3 bedroom terraced house for sale in ROWLEY REGIS, Crown Close, B65 — £205,000 • 3 bed • 1 bath • 652 ft²














































