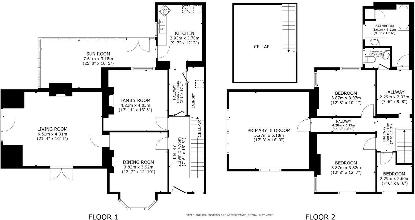
**Standout Features:**
- Impressive 2500 sq ft Victorian terraced home
- 3 double bedrooms + 1 single bedroom
- Large living and dining spaces
- Expansive gardens, including a kitchen garden area
- Sunroom and utility space
- Ample storage with a cellar and single garage
- Potential for additional parking and renovations
- Tranquil village location close to amenities and train station
- No forward chain
Step into a timeless Victorian terraced home nestled in the peaceful Pendle View, Long Preston, and experience 2500 sq ft of endless potential. This family-friendly abode features spacious living and dining rooms bathed in natural light, an elegant kitchen, and a delightful sunroom perfect for enjoying views of the impressive gardens. With three generous double bedrooms and an additional single, this space caters to your family’s needs while also extending possibilities for future updates.
Outside, the large rear garden offers a serene retreat, featuring lush lawns, mature trees, and a dedicated kitchen garden area, while the potential to create additional parking makes it a versatile property. Although some cosmetic renovations are needed, this home presents an excellent opportunity for you to infuse your style and create your own slice of paradise in a highly sought-after area. Act fast—this charming home won’t stay on the market for long!
4 bedroom terraced house for sale in Pendle View, Long Preston, Skipton, North Yorkshire, BD23 — £425,000 • 4 bed • 2 bath • 1680 ft²
4 bedroom terraced house for sale in Thorncliffe, Long Preston, Skipton, BD23 — £325,000 • 4 bed • 1 bath • 1203 ft²
4 bedroom semi-detached house for sale in Main Street, Long Preston, Skipton, North Yorkshire, BD23 — £675,000 • 4 bed • 3 bath • 2928 ft²
2 bedroom semi-detached house for sale in Long Preston, Skipton, BD23 — £390,000 • 2 bed • 2 bath • 1879 ft²
2 bedroom terraced house for sale in Main Street, Long Preston, Skipton, North Yorkshire, BD23 — £225,000 • 2 bed • 2 bath • 807 ft²
3 bedroom terraced house for sale in Main Street, Long Preston, Skipton, North Yorkshire, BD23 — £259,950 • 3 bed • 1 bath • 807 ft²






































































































