**Standout Features:**
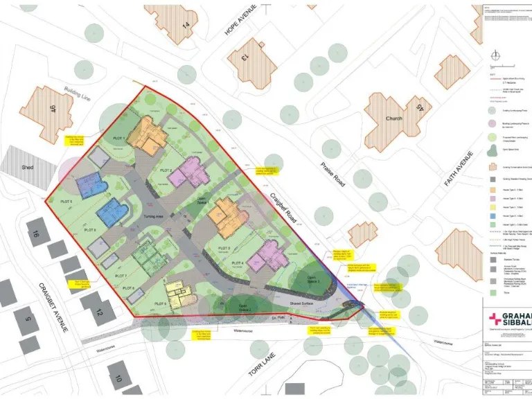
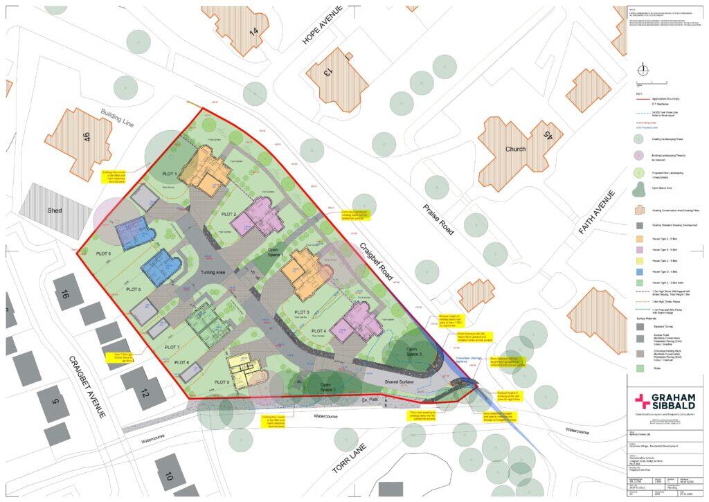
- **Development Opportunity:** Approximately 0.7 Ha of land with planning permission for 9 dwelling houses.
- **Variety of House Styles:** Includes 4 and 5-bedroom detached and 3-bedroom semi-detached properties, designed in a cul-de-sac layout.
- **Location:** Situated in the tranquil hamlet of Quarriers Village, between Bridge of Weir and Kilmacolm.
- **Excellent Connectivity:** Close to major road links, making access to Glasgow and nearby amenities convenient.
- **Educational Facilities:** Proximity to various primary schools and the prestigious St Columba's School.
**Concerns:**
- **Infrastructure:** Average mobile signal and slow broadband speeds.
- **Area Demographics:** Classified as a communal retirement and ageing rural neighborhood, which might not appeal to younger families or first-time buyers.
**Summary Description:**
Discover an exceptional investment opportunity at the former Carsemeadow Nursery site in Quarriers Village, now available for development into 9 unique homes. This generous 0.7 Ha plot has been cleared and is primed for construction with already secured local authority consent. Set against a picturesque backdrop in an elevated location, the future homes can offer beautiful views of the surrounding countryside while enjoying the peace of suburban living.
With diverse architectural styles available—including both detached and semi-detached options—there's ample scope for modern family comfort in a friendly community setting. The area's existing infrastructure includes access to essential amenities and reputable educational institutions, making it an attractive proposition for diligent investors or families looking for a quiet yet connected lifestyle. While the property’s broadband availability is currently slow, the development’s potential to attract families—especially those seeking a serene yet well-linked community—makes this a rare find in today's market. Don’t miss your chance to shape this vibrant neighborhood!
Land for sale in Development Site – Formerly Ardenvohr, Fetlar Road, Bridge of Weir PA11 3AX, PA11 — POA • 1 bed • 1 bath
Land for sale in Clevans Road, Bridge of Weir, PA11 — £250,000 • 1 bed • 1 bath
Land for sale in Hamilton Road, Uddingston, Glasgow, G71 — £200,000 • 1 bed • 1 bath
Residential development for sale in Auchenhowie Road, Milngavie, Glasgow, G62 — POA • 1 bed • 1 bath
Land for sale in Land at Northacre Grove, Kilwinning, KA13 7ER, KA13 — £350,000 • 1 bed • 1 bath
Plot for sale in Plot 1, Leperstone Avenue, Kilmacolm, PA13 — £90,000 • 1 bed • 1 bath


































