Chain-free, modern apartment with concierge and co‑working facilities near the station.
One double bedroom with ensuite and contemporary open-plan living
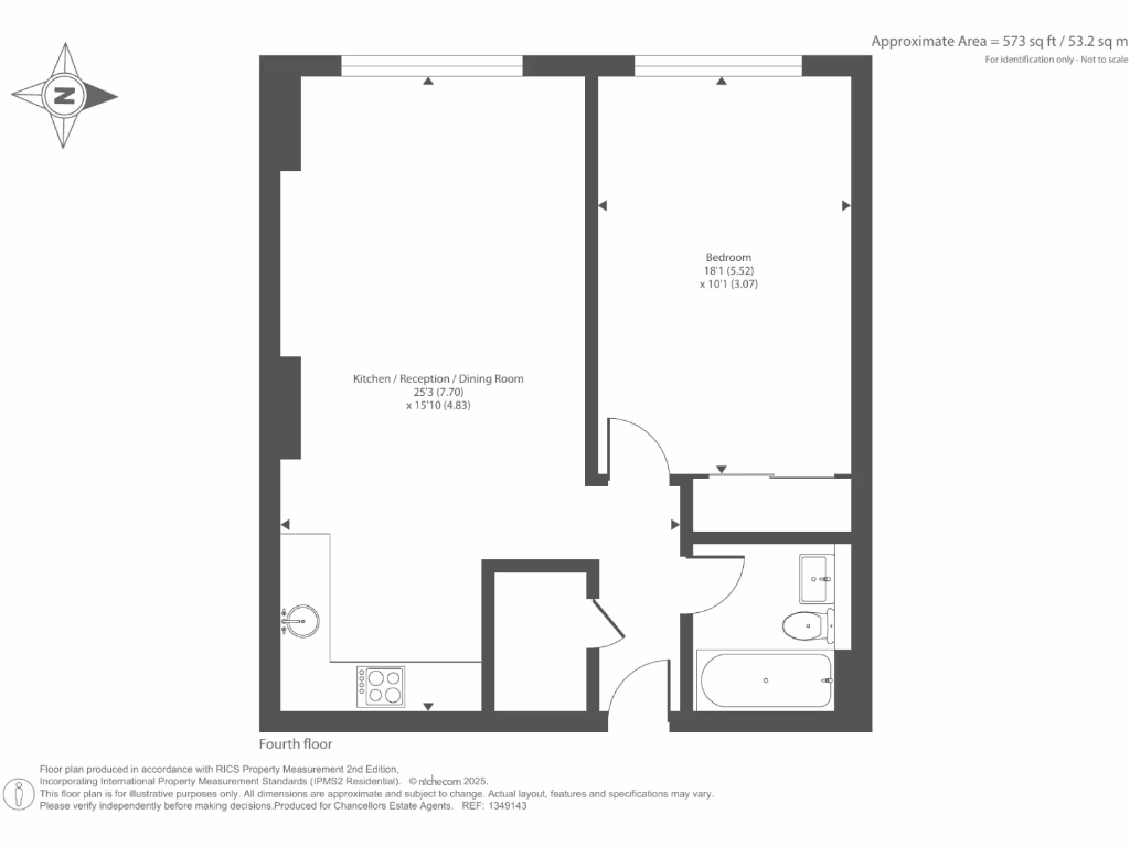
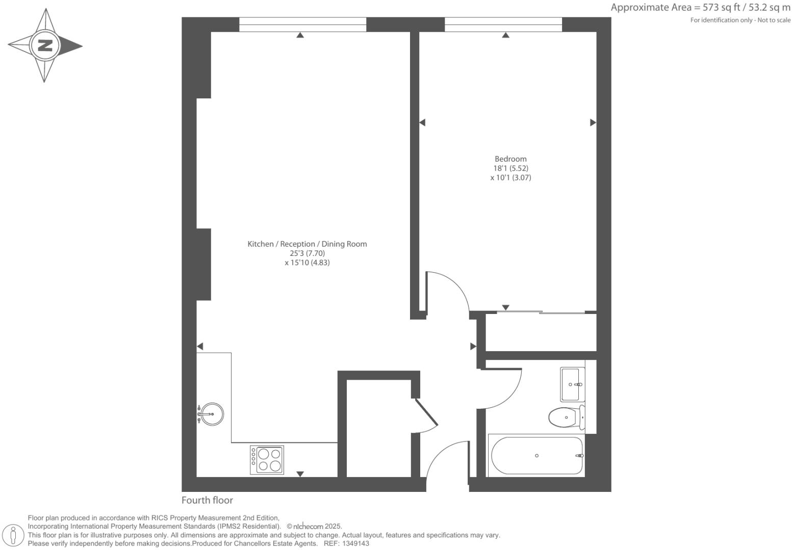
This contemporary one-bedroom apartment in the heart of Bracknell offers low-maintenance, modern living with clear commuter appeal. The open-plan living area and sleek integrated kitchen are complemented by large windows and contemporary finishes from a 2020 build, creating bright, usable space across about 573 sq ft.
Residents benefit from 24-hour concierge services, access to The Exchange Lab co-working hub and on-site treatment rooms — practical extras for home workers or buyers seeking convenience and lifestyle facilities. The property is chain-free and sits close to the town centre and train station, making it a sensible choice for first-time buyers wanting swift access to transport and town amenities.
Buyers should note material facts: heating is by electric room heaters, which can mean higher running costs compared with central heating, and the wider area records higher crime and relative deprivation. The flat is leasehold (150 years from January 2023, c.148 years remaining) and therefore has associated tenure considerations. Council tax is described as affordable.
Overall, this apartment suits someone seeking a modern, low-upkeep home with strong transport links and on-site services, provided they accept electric heating and the urban setting with its local safety and socioeconomic challenges.
1 bedroom apartment for sale in Market Street, Bracknell, RG12 — £300,000 • 1 bed • 1 bath • 560 ft²
1 bedroom apartment for sale in Market Street, Bracknell, Berkshire, RG12 — £280,000 • 1 bed • 1 bath • 570 ft²
1 bedroom apartment for sale in Market Street, Bracknell, Berkshire, RG12 — £205,000 • 1 bed • 2 bath • 528 ft²
1 bedroom apartment for sale in Kelvin Gate, Bracknell, Berkshire, RG12 — £145,000 • 1 bed • 1 bath • 496 ft²
1 bedroom apartment for sale in High Street, Bracknell, Berkshire, RG12 — £150,000 • 1 bed • 1 bath • 434 ft²
2 bedroom apartment for sale in Market Street, Bracknell, Berkshire, RG12 — £420,000 • 2 bed • 2 bath • 861 ft²


































































