Compact, low-maintenance city living steps from shops and station.
Allocated underground off-street parking space included
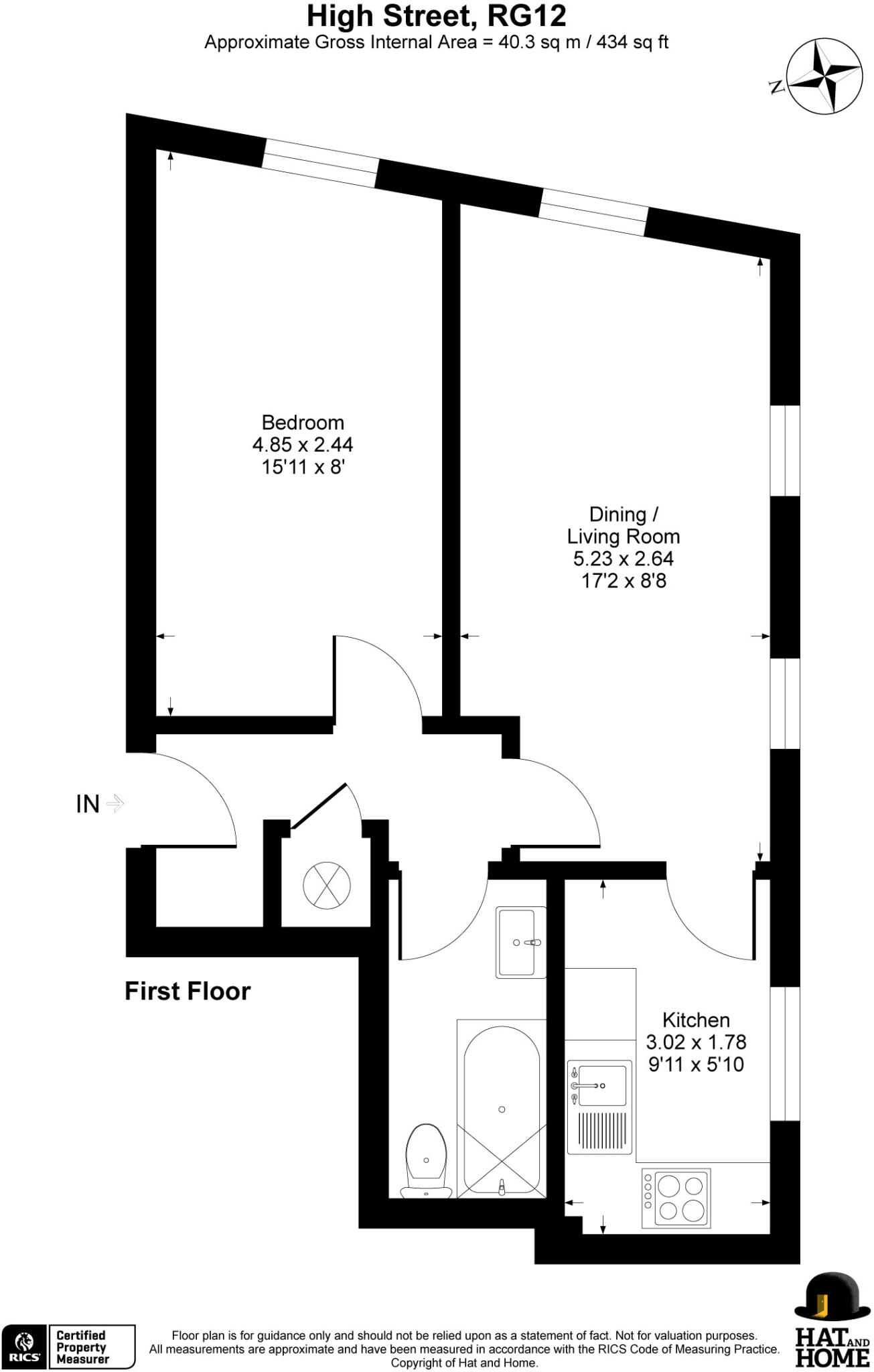
Compact one-bedroom footprint — approximately 434 sq ft
Second-floor flat with large windows and high ceilings
Leasehold with about 103 years remaining
Sale restricted to cash buyers only
Electric storage heaters — potentially higher running costs
Town-centre location near The Lexicon and Bracknell station
Local area shows higher crime and signs of deprivation
A bright and compact one-bedroom apartment in the heart of Bracknell, ideal for a first-time buyer seeking town-centre convenience. Large windows and high ceilings give a sense of space despite the modest 434 sq ft, and recent double glazing helps with comfort and noise.
The property sits on the second floor of a modern block (built 2003–2006) and includes an allocated underground parking space — a rare find for central locations. The kitchen is well fitted with integrated appliances and the layout suits simple, low-maintenance living close to The Lexicon shopping and Bracknell station.
Buyers should note material considerations: the sale is for cash buyers only, the flat is leasehold with about 103 years remaining, and heating is by electric storage heaters which can be costly. The wider area shows higher crime rates and local deprivation, so commuters and first-time owners should weigh convenience against local environmental factors.
This apartment offers straightforward, low-upkeep living with decent commuter links and rental potential for those able to buy in cash. It will particularly suit buyers who prioritise location and a ready-to-live-in home over generous internal space or long-term energy efficiency.
1 bedroom apartment for sale in The Ring, Bracknell, Berkshire, RG12 — £180,000 • 1 bed • 1 bath • 378 ft²
1 bedroom apartment for sale in Market Street, Bracknell, Berkshire, RG12 — £205,000 • 1 bed • 2 bath • 528 ft²
1 bedroom apartment for sale in Kelvin Gate, Bracknell, Berkshire, RG12 — £150,000 • 1 bed • 1 bath • 507 ft²
1 bedroom apartment for sale in London Road, Bracknell, Berkshire, RG12 — £180,000 • 1 bed • 1 bath • 442 ft²
1 bedroom apartment for sale in Aragon Court, Bracknell, Berkshire, RG12 — £180,000 • 1 bed • 1 bath • 407 ft²
1 bedroom apartment for sale in Bracknell, RG12 — £195,000 • 1 bed • 1 bath


























