Prime E14 location with strong footfall and flexible commercial use.
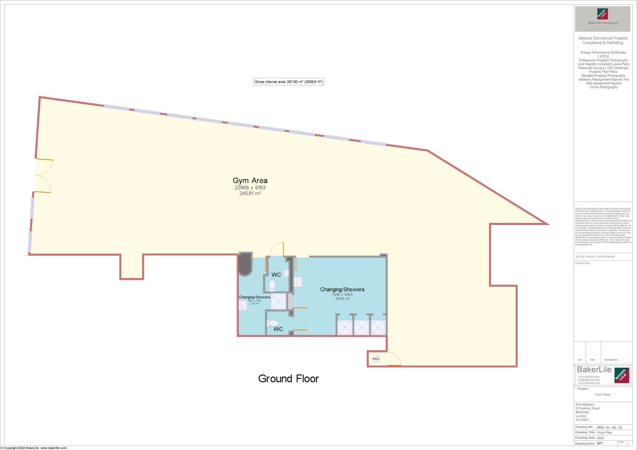
- Circa 3,000 sq ft spacious ground-floor commercial space
- Vacant possession; option for 999-year virtual freehold
- Approximately 300m from Blackwall DLR station (excellent transport)
- Use Class E: retail, leisure, office and more permitted
- Service charge £12,000 pa + VAT; property is VAT elected
- Very slow broadband speeds; heating is electric room heaters
- Located in densely populated, developing residential area
- Local area records higher crime and socioeconomic deprivation
A substantial circa 3,000 sq ft ground-floor commercial unit with wide street frontage and a 999-year virtual freehold option. Built in 2013 and offered with vacant possession, the space is laid out with minimal loss to circulation and was previously fitted as a gym — internal partitions can be removed to create an open-plan layout for retail, leisure, showroom or office uses under Use Class E.
The location is a key strength: roughly 300 metres from Blackwall DLR, in a densely populated, rapidly developing part of East London close to Canary Wharf. High passing footfall and road visibility along the A1206 make the unit suitable for businesses needing signage and customer access. EPC rating B and excellent mobile signal support modern commercial operations.
Buyers should note the material costs and constraints: a service charge of £12,000 pa + VAT and the property is VAT elected, so purchase or rent will attract VAT. Broadband speeds in the building are reported very slow, and heating is via electric room heaters. The wider area records higher crime and significant deprivation, factors to weigh when setting rents or planning customer-facing activity.
For investors, the site offers strong leasing potential given nearby residential growth and transport links. For operators, the flexible Use Class E and clear frontage present an opportunity to establish a visible presence, though fit-out, IT upgrades and ongoing management charges should be budgeted for carefully.
Commercial property for sale in Vacant Retail Unit, 6 Prestons Road,
Blackwall, London, E14 9EX, E14 — POA • 1 bed • 1 bath • 3000 ft²
High street retail property for sale in Unit 5, Canary Gateway, St Annes Row, Limehouse, E14 7RD, E14 — £1,500,000 • 1 bed • 1 bath • 4926 ft²
Office for sale in Unit 3, 1 Creekside, Deptford, SE8 4SA, SE8 — £1,500,000 • 1 bed • 1 bath • 10624 ft²
Commercial property for sale in New Providence Wharf, Fairmont Avenue, London, E14 9PF, E14 — £332,000 • 1 bed • 1 bath • 1672 ft²
Shop for sale in Cutter House, London, E16 — £765,000 • 1 bed • 1 bath • 2433 ft²
Office for sale in Ropery Works, Mile End, E3 — £550,000 • 1 bed • 1 bath • 1123 ft²






















