Blank-canvas commercial unit with high ceilings and two parking spaces.
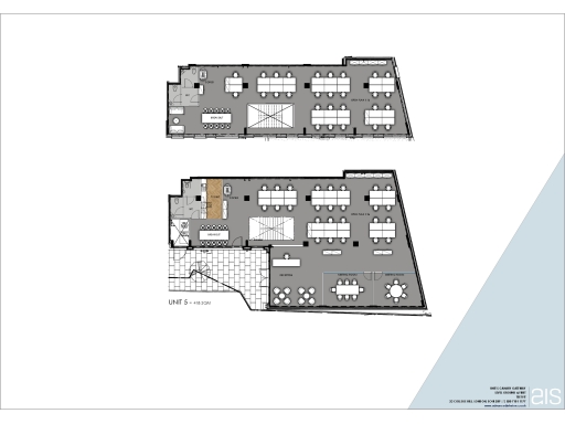
Approx 4,925 sq ft open-plan over ground and first floors
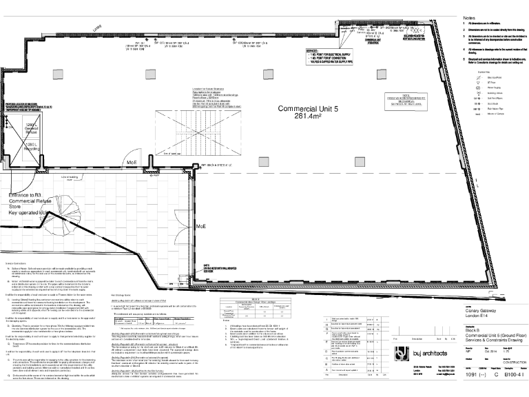
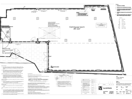
A substantial shell & core commercial unit arranged over ground and first floors, offering almost 4,925 sq ft of flexible open-plan space. The property benefits from exceptional ceiling heights above 5 metres and a full-height glazed frontage that brings excellent natural light throughout the space. Two dedicated underground parking spaces are included, a rare feature for central Limehouse schemes.
This unit suits investors seeking a large city-centre asset or creative owner-occupiers wanting a blank-canvas workspace. The 999-year lease provides long-term security, and transport links are strong: Westferry DLR ~500m and Limehouse Station ~800m, with Commercial Road retail and cafés about 300m away.
Buyers should budget for a full fit-out and installation of services, as the unit is delivered shell & core. The space is intended for commercial use only and would require planning and tenant-fit approvals for bespoke uses. Overall, the property is a high-potential city unit with clear redevelopment opportunity but immediate capital required to make it operational.
High street retail property for sale in Unit 1, Canary Gateway, 787 Commercial Road, London, E14 7HG, E14 — £195,000 • 1 bed • 1 bath • 987 ft²
Commercial property for sale in London E14 Unit 4, 9 St. Annes Street, Limehouse, London E14 7PF, E14 — £595,000 • 1 bed • 1 bath • 2328 ft²
Commercial property for sale in Vacant Retail Unit, 6 Prestons Road,
Blackwall, London, E14 9EX, E14 — £700,000 • 1 bed • 1 bath • 3000 ft²
High street retail property for sale in Plot 2, Deptford Landing, 27 Waterline Way, London, SE8 3GX, SE8 — £500,000 • 1 bed • 1 bath • 1661 ft²
Office for sale in Unit 2, 35 Shore Road, London, E9 7FL, E9 — £725,000 • 1 bed • 1 bath • 1830 ft²
Leisure facility for sale in 45 Westferry Road, London, E14 8JH, E14 — £1,060,000 • 1 bed • 1 bath • 2650 ft²














































