Spacious adaptable layout with large private garden and multiple parking spaces.
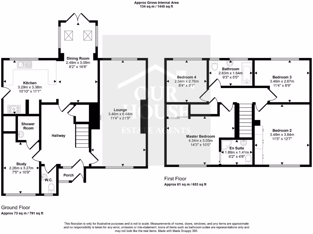
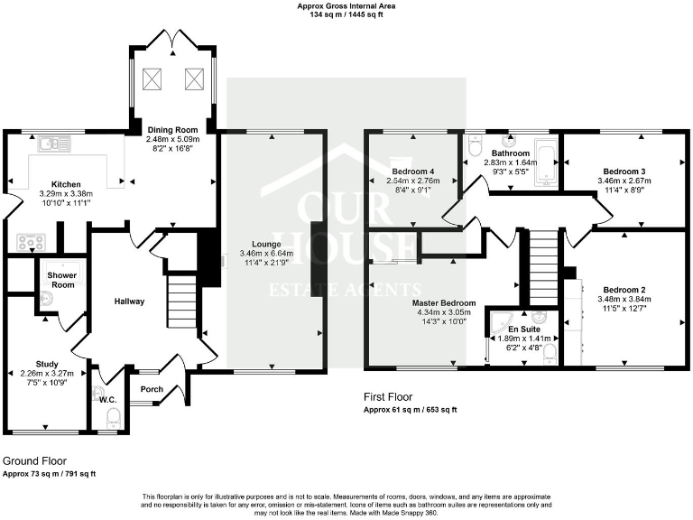
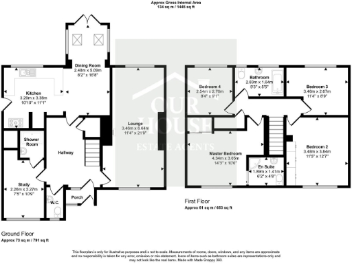
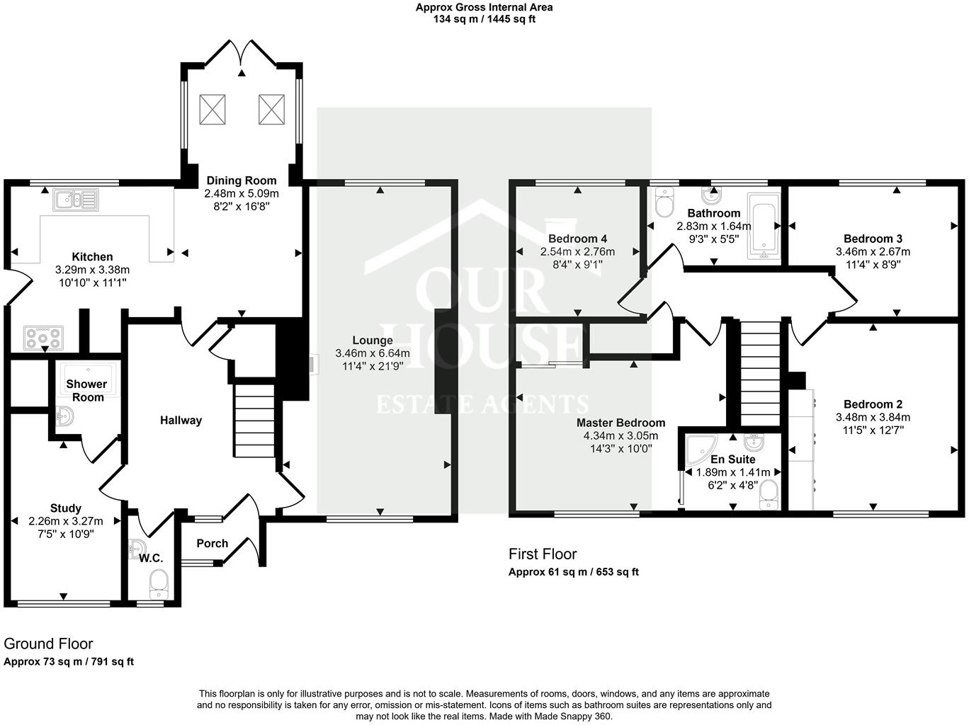
Four double bedrooms plus ground-floor office/bedroom option
Open-plan kitchen/diner with adjoining sunroom and skylights
Principal bedroom with en-suite; family bathroom upstairs
Mature, private rear garden with deck, patio and powered sheds
Block‑paved driveway with multiple off‑street parking spaces
Double glazing installed 2002 or later; mains gas boiler and radiators
Local area shows above-average crime and higher deprivation
House built 1950s–1960s — expect typical maintenance/modernisation needs
A spacious four-bedroom detached home arranged over two floors, designed around flexible family living. The ground floor delivers a large lounge, open-plan kitchen/diner that flows into a bright sunroom, plus a dedicated office with its own shower room — useful as a home-working space or occasional fifth bedroom. Upstairs, the principal bedroom includes an en-suite, and three further bedrooms share a contemporary family bathroom.
Outside, the mature, well-kept rear garden is a standout: lawn, raised decking with lighting, flagstone patio, gravel seating area and two powered garden sheds create private space for entertaining and family activity. The block-paved driveway provides off-street parking for multiple vehicles and side access to the garden. Practical details include double glazing (fitted 2002 or later), mains gas boiler and cavity wall insulation.
Notable negatives are factual and important: the local area has above-average crime statistics and is in a more deprived ward, which may affect buyer priorities and insurance costs. The house dates from the 1950s–1960s, so some buyers should expect periodic maintenance or updates over time. Council tax sits at a moderate level. Flood risk is low.
This property suits a family seeking comfortable, adaptable accommodation with strong outdoor space and good broadband/mobile connectivity. It will also appeal to buyers wanting an established home with ready-to-use living spaces and scope for personal updating where desired.
4 bedroom detached house for sale in Ashcourt Drive, Hornsea, HU18 — £279,950 • 4 bed • 3 bath • 1314 ft²
4 bedroom detached house for sale in Shardlow Road, Hornsea, HU18 — £415,000 • 4 bed • 3 bath • 2171 ft²
4 bedroom detached house for sale in Ashcourt Drive, Hornsea, HU18 — £265,000 • 4 bed • 2 bath • 1098 ft²
4 bedroom detached house for sale in Tansley Lane, Hornsea, HU18 — £299,950 • 4 bed • 2 bath • 1479 ft²
3 bedroom semi-detached house for sale in Beresford Avenue, Hornsea, HU18 — £165,000 • 3 bed • 1 bath • 985 ft²
3 bedroom detached house for sale in Burton Lane, Hornsea, HU18 — £340,000 • 3 bed • 3 bath • 1565 ft²






































































































































