Spacious family living near Hornsea beach and local schools.
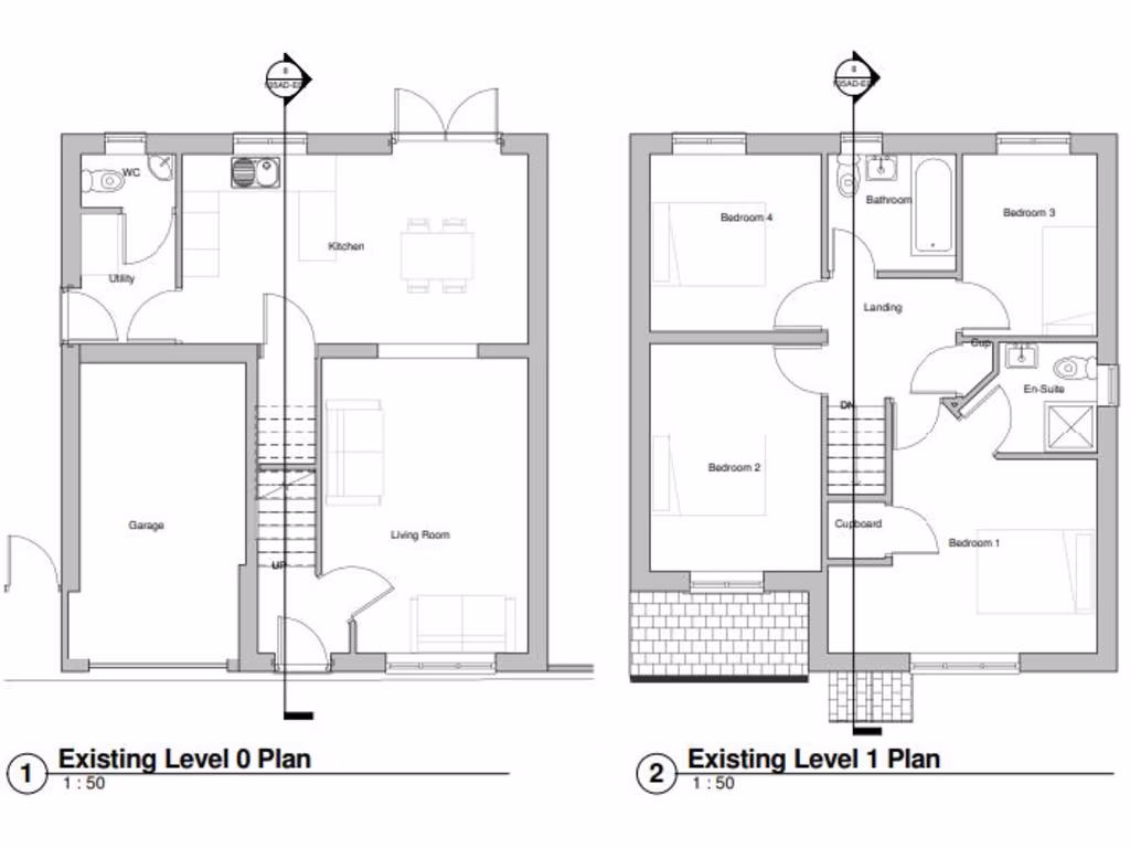
Immaculate four-bedroom detached home with master en-suite
Open-plan lounge and kitchen diner, light-filled living space
Integral garage with planning consent to convert to living space
Decent plot, low-maintenance rear garden with decking and patio
Driveway parking for two; garage conversion would lose covered parking
Approximately 1,098 sq ft — modest internal floor area
Energy rating B; mains gas central heating and UPVC double glazing
Located in Hornsea with good schools, seaside amenities and low flood risk
An immaculate four-bedroom detached house on Ashcourt Drive arranged over two floors, presented in neutral, move-in condition. The ground floor features a light-filled open-plan lounge and kitchen diner, utility room and cloakroom; upstairs are four bedrooms including a large master with en-suite and a family bathroom. Energy rating B and mains gas central heating provide efficient running costs.
Externally the property sits on a decent plot with a tarmac driveway and gravel foregarden, an integral garage and an easy-care rear garden with artificial lawn, paved patio and raised decking. There is parking for two cars on the driveway and additional scope to extend internal space — planning consent was approved (13 June 2025) to convert the integral garage into additional living accommodation.
Location suits families or first-time buyers wanting a small town/coastal lifestyle: Hornsea offers shops, cafés, leisure centre, Hornsea Mere and beaches, plus good local schools and convenient road links to Beverley and Hull. Flood risk is low, crime is low and broadband/mobile connections are strong.
Considerations: the overall internal size is modest (approximately 1,098 sq ft) compared with larger family homes, and converting the garage (possible under approved planning) would remove the covered parking unless alternative arrangements are made. Council tax band D applies.
3 bedroom detached house for sale in Ashcourt Drive, Hornsea, HU18 — £249,950 • 3 bed • 2 bath • 958 ft²
4 bedroom detached house for sale in Ashcourt Drive, Hornsea, HU18 — £279,950 • 4 bed • 3 bath • 1314 ft²
4 bedroom detached house for sale in Ashcourt Drive, Hornsea, HU18 — £300,000 • 4 bed • 2 bath • 1048 ft²
3 bedroom house for sale in Ashcourt Drive, Hornsea, HU18 — £215,000 • 3 bed • 2 bath • 862 ft²
4 bedroom detached house for sale in Tansley Lane, Hornsea, HU18 — £299,950 • 4 bed • 2 bath • 1479 ft²
3 bedroom detached house for sale in Croft Close, HORNSEA, HU18 — £230,000 • 3 bed • 2 bath • 862 ft²














































































































