Ready-to-live-in terrace near Bramley station with modern kitchen and attic bedrooms.
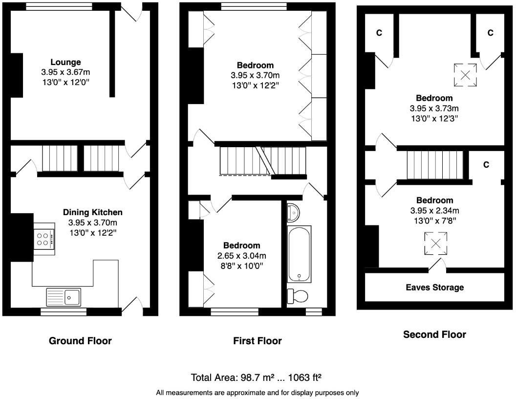
- Chain-free four-bedroom Victorian mid-terrace
- Modern kitchen-diner with integrated appliances
- Living room with media wall and LED lighting
- Two attic bedrooms with Velux skylights and eaves storage
- Cellar provides extra storage space
- Small overall footprint and limited rear garden
- Single bathroom may be restrictive for larger families
- Located in higher-crime, relatively deprived area
This chain-free four-bedroom mid-terrace in Bramley combines period character with a contemporary finish, making it an attractive purchase for first-time buyers or families seeking space close to transport links. The stone facade and sash-style windows retain historic charm while the interior feels refreshed and ready to move into.
On the ground floor a cosy living room with a media wall leads to a modern kitchen-diner with integrated appliances and direct garden access. Practical extras include a cellar for storage, double glazing, and mains gas central heating with a boiler and radiators. Two first-floor bedrooms have fitted wardrobes and the top floor provides two further bedrooms with Velux skylights and eaves storage.
Notable limitations are a compact overall footprint and a single bathroom, which may feel tight for larger households. The rear garden is low-maintenance but small, and the property sits in an area with higher crime rates and relative deprivation—factors to weigh alongside its connectivity and price. The stone outer walls are likely uninsulated, so further thermal upgrades could be beneficial and improve running costs.
Practical positives include excellent mobile signal, fast broadband, close proximity to Bramley station and the Leeds ring road, and a very low council tax band. For buyers prioritising location and a ready-to-live-in terrace with potential to add value through insulation or cosmetic tweaks, this offers clear appeal.
3 bedroom town house for sale in Barker Place, Leeds, West Yorkshire, LS13 — £210,000 • 3 bed • 1 bath • 680 ft²
3 bedroom terraced house for sale in Nansen View, Leeds, West Yorkshire, LS13 — £165,000 • 3 bed • 1 bath • 883 ft²
3 bedroom terraced house for sale in Hillside Mount, LS28 — £195,000 • 3 bed • 1 bath • 1102 ft²
2 bedroom terraced house for sale in Nansen Grove, Leeds, West Yorkshire, LS13 — £140,000 • 2 bed • 1 bath • 721 ft²
2 bedroom terraced house for sale in Warrels Mount, Leeds, West Yorkshire, LS13 — £169,995 • 2 bed • 1 bath • 514 ft²
3 bedroom end of terrace house for sale in Park Road, Bramley, LS13 2LT, LS13 — £210,000 • 3 bed • 1 bath • 719 ft²










































































