**Key Features:**
- 3 Bedrooms
- Modern semi-detached new build
- Spacious kitchen/dining room with garden access
- Enclosed private rear garden
- Gas central heating with Hive controls
- Energy-efficient UV panels
- Two allocated off-street parking spaces
- Ideal for families or home office setups
- Fast broadband and excellent mobile signal
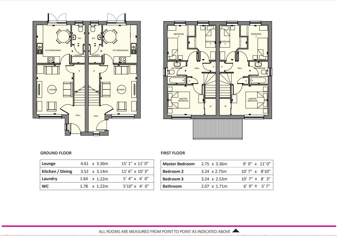
This delightful 3-bedroom semi-detached home in Crieff, priced at £222,995, offers the perfect blend of modern living and comfort, making it an ideal choice for families or those looking for a flexible home office space. The well-proportioned kitchen/dining area provides a seamless connection to a private enclosed garden, perfect for outdoor entertaining and family activities.
Boasting a spacious lounge filled with natural light and thoughtful design, this property caters to various lifestyle needs. The master bedroom is conveniently located on the front, while two additional single rooms provide ample space for growth or guests. The family bathroom features stylish fixtures from Roca alongside a thermostatic shower.
This home is part of a new build development focusing on energy efficiency, with features like UV panels and gas central heating controlled by smart Hive technology. Additionally, the property comes equipped with two off-street parking spaces and fast broadband access, ideal for today’s remote work lifestyle.
However, prospective buyers should be mindful of the property's small square footage of 645 sq ft and consider how their needs align with this cozy yet functional space. With its blend of contemporary design and practicality, this home won't last long—act quickly to secure your chance to make it your own!
3 bedroom semi-detached house for sale in 1 Reid Place, Crieff, Perthshire, PH7 — £222,995 • 3 bed • 1 bath • 645 ft²
3 bedroom semi-detached house for sale in 21 Reid Place, Crieff, Perthshire, PH7 — £235,995 • 3 bed • 3 bath • 805 ft²
3 bedroom semi-detached house for sale in 19 Reid Place, Crieff, Perthshire, PH7 — £235,995 • 3 bed • 3 bath • 806 ft²
3 bedroom detached house for sale in 17 Reid Place, Crieff, Perthshire, PH7 — £256,995 • 3 bed • 2 bath • 995 ft²
2 bedroom terraced house for sale in 13 Reid Place, Crieff, Perthshire, PH7 — £195,995 • 2 bed • 2 bath • 666 ft²
3 bedroom detached house for sale in 5 Reid Place, Crieff, Perthshire, PH7 — £262,995 • 3 bed • 2 bath • 990 ft²






















