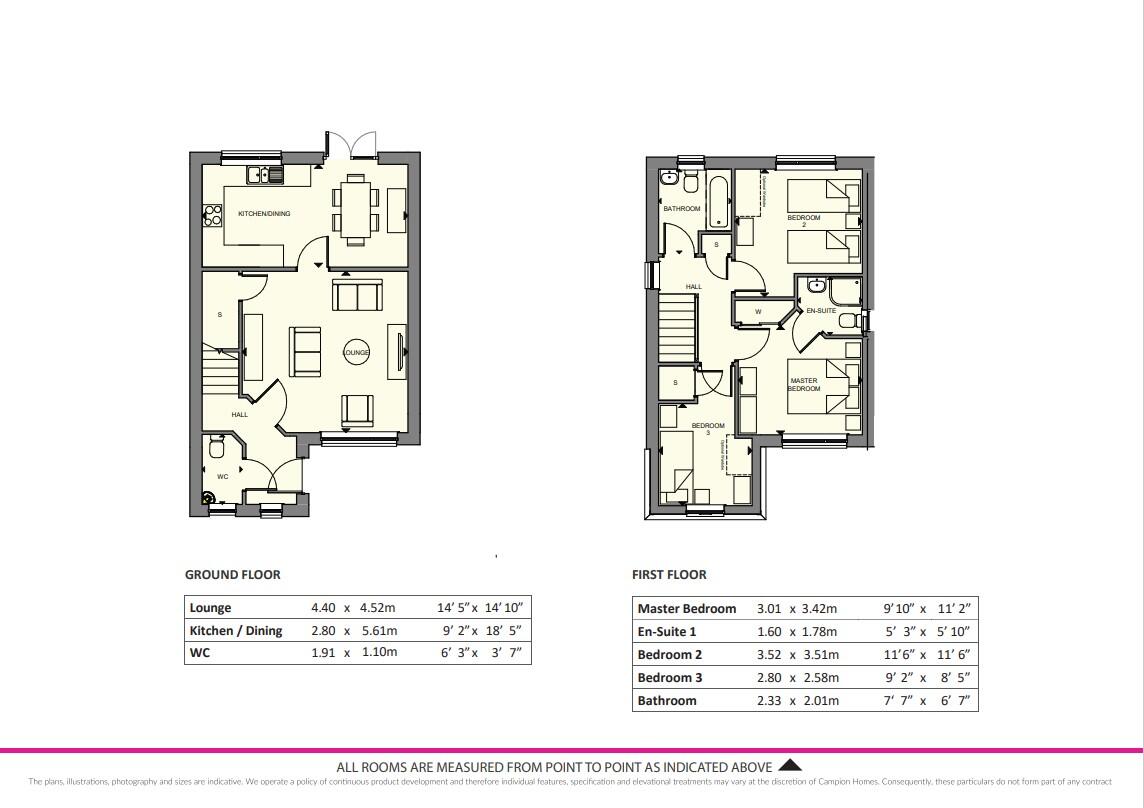
### Standout Features:
- Contemporary 3-bedroom detached house
- Intelligent kitchen with 4-zone induction hob and WIFI enabled multifunction oven
- Integral cooker hood and modern design elements
- Generous living spaces, including a spacious lounge and defined kitchen/dining areas
- Enclosed private rear garden, ideal for children
- Off-street parking for two cars
- Located in a beautiful residential area near scenic views
- Freehold tenure, newly built
### Summary:
Welcome to this highly sought-after, modern 3-bedroom detached home at Strathearn Gait, Crieff. With its contemporary design and energy-efficient features, this new build exemplifies spacious, comfortable family living. The well-defined kitchen and dining areas offer luxury appliances, including a 4-zone induction hob and WIFI enabled multifunction oven, while large windows in the lounge fill the space with natural light. French doors lead to an enclosed garden, perfect for play and relaxation.
Upstairs, you’ll find generously sized bedrooms, providing ample space for personal belongings, complemented by a naturally lit family bathroom. The property includes a convenient two-car driveway, catering to families and downsizers alike. Enjoy the excellent mobile signal and fast broadband, ensuring you stay connected. With its unique blend of modernity and practicality, this property presents an excellent opportunity for those looking to invest in a serene environment close to nature, but don’t wait too long—homes in this desirable neighborhood are snapped up quickly!
3 bedroom detached house for sale in 17 Reid Place, Crieff, Perthshire, PH7 — £256,995 • 3 bed • 2 bath • 995 ft²
3 bedroom semi-detached house for sale in 21 Reid Place, Crieff, Perthshire, PH7 — £235,995 • 3 bed • 3 bath • 805 ft²
3 bedroom semi-detached house for sale in 3 Reid Place, Crieff, Perthshire, PH7 — £222,995 • 3 bed • 1 bath • 645 ft²
3 bedroom detached house for sale in Jura Way, Crieff, Perthshire, PH7 — £262,995 • 3 bed • 1 bath
3 bedroom semi-detached house for sale in 1 Reid Place, Crieff, Perthshire, PH7 — £222,995 • 3 bed • 1 bath • 645 ft²
4 bedroom detached house for sale in The Spey, Drovers Gate, PH7 — £310,000 • 4 bed • 3 bath • 1127 ft²






















