M41 5AE - 4 bedroom terraced house for sale in Newton Road, Urmston,…

View on Property Piper

4 bedroom terraced house for sale in Newton Road, Urmston, Trafford, M41

Summary - 18 NEWTON ROAD URMSTON MANCHESTER M41 5AE

4 bed 1 bath Terraced

**Standout Features:**
- Spacious 4-bedroom mid-terrace house in Urmston
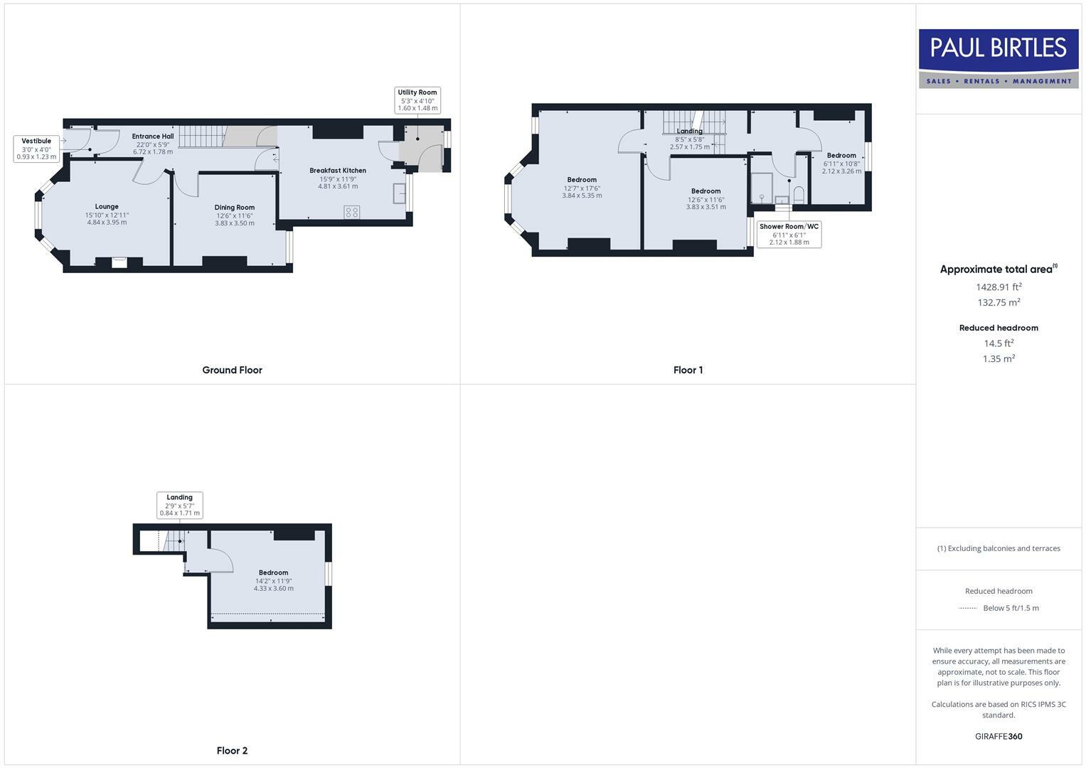
- Approximate size: 1429 sq ft over three floors
- Large breakfast kitchen, two separate reception rooms
- Pleasant enclosed rear garden with rear access
- Freehold property with gas central heating and double glazing

**Concerns:**
- Built between 1900-1929; may require modern updates
- Average broadband speeds
- Potential need for periodic maintenance due to age

This beautifully presented Victorian terraced home on Newton Road offers ample space and comfort for families seeking a vibrant suburban lifestyle. Spanning three floors, the property features an inviting entrance hall, a bright lounge with a bay window, and an ample dining room – perfect for entertaining. The heart of the home is the large breakfast kitchen complete with contemporary appliances, ideal for family gatherings.

Upstairs, enjoy four well-proportioned bedrooms, providing a perfect sanctuary for all family members, alongside a stylish shower room. While the property maintains its classic charm, there is exciting potential to personalize and modernize certain areas to suit your taste. The pleasant enclosed rear garden is a lovely feature for outdoor relaxation, while the location ensures that all town center amenities and the train station are within easy walking distance.

At an enticing price of £540,000, and with very low crime rates in the area, this home promises safety and comfort, making it an excellent opportunity for families or first-time buyers. Properties like this, showcasing both space and character, are in high demand, so don’t miss your chance—schedule a viewing today!

Property Details

Brochure Descriptions

Image Descriptions

Floorplan Description

Rooms

Textual Property Features

Detected Visual Features

EPC Details

Nearby Schools

Nearest Bars And Restaurants

,,,,}

Nearest General Shops

,,}

Nearest Grocery shops

,,}

Nearest Supermarkets

,,}

Nearest Religious buildings

,,}

Nearest Medical buildings

,,,}

Nearest Airports

}

Nearest Leisure Facilities

,,,,}

Nearest Tourist attractions

,,}

Nearest Train stations

,,,,}

Nearest Bus stations and stops

,,,,}

Nearest Hotels

,,}

Tags

Local Market Stats

AirBnB Data

Similar Properties

Meta

High Res Images

Compatible Images

Low res Images

Thumbnails

Raw Images

High Res Floorplan Images

Compatible Floorplan Images

Low res Floorplan Images

FloorplanImages Thumbnail

Raw Floorplan Images