Modern ground-floor flat with two private gardens and parking, near Richmond Park.
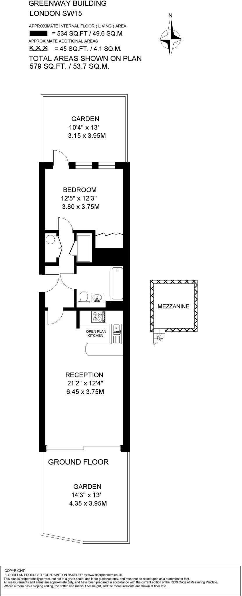
Approximately 534 sq ft one-bedroom ground-floor flat
This recently redecorated one-bedroom ground-floor flat offers a bright, contemporary living space with the rare benefit of two private gardens and off-street parking. The open-plan living/kitchen has high, double-height ceilings and full-height glazing that floods the room with light; a compact mezzanine provides useful storage or occasional extra space. The bedroom includes built-in wardrobes and its own garden access, giving an apartment-like feel with outdoor benefits.
Built from 2012 onwards and fitted with modern systems (air-source heat pump, underfloor heating, double glazing), the property is efficient and low-maintenance in many respects. At about 534 sq ft the layout is efficient for a single occupant or couple and is particularly attractive for a first-time buyer wanting outdoor space close to Richmond Park and easy links from Barnes station and the A3.
Practical points to note: the property is leasehold (term length and service charges not provided) and the accommodation is compact — room and garden sizes are small-to-average for inner London. The wider area is classified as student communal living and as relatively deprived, which may influence local amenity mix, noise levels and longer-term resale/rental dynamics. Images provided are illustrative and show staged flats.
Overall this is a modern, well-presented one-bedroom with genuine outdoor space and parking — a convenient, low-upkeep city home for a first-time buyer or investor who values light, high ceilings and outdoor access close to Richmond Park.
2 bedroom apartment for sale in Prime House, 327 Danebury Avenue, London, SW15 — £360,000 • 2 bed • 1 bath • 700 ft²
1 bedroom flat for sale in Upper Richmond Road, London, SW15 — £295,000 • 1 bed • 1 bath • 368 ft²
1 bedroom flat for sale in Burke Close,
Roehampton, SW15 — £275,000 • 1 bed • 1 bath • 517 ft²
3 bedroom flat for sale in Upper Richmond Road, London, SW15 — £850,000 • 3 bed • 2 bath • 1163 ft²
2 bedroom flat for sale in Upper Richmond Road,
West Putney, SW15 — £590,000 • 2 bed • 1 bath • 692 ft²
4 bedroom maisonette for sale in Arabella Drive, Roehampton, London, SW15 — £425,000 • 4 bed • 1 bath • 689 ft²


































































