Two double bedrooms, parking and easy access to Barnes station.
Chain-free ground-floor period conversion with long lease (c.979 years)
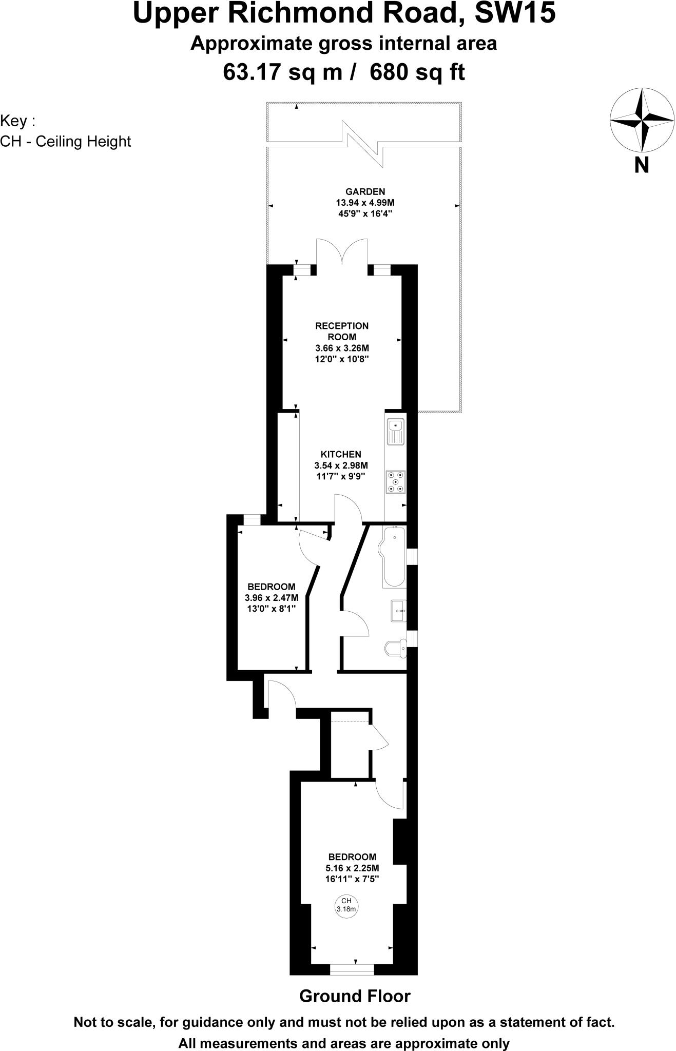
This chain-free ground-floor period conversion offers a practical, low-maintenance home with private outdoor space and rare off-street parking in SW15. Two double bedrooms and an open-plan reception/kitchen lead through French doors to a decked patio and garden, creating a flexible layout that suits first-time buyers, couples or buy-to-let investors. The long lease (c.979 years) and share of freehold give ownership security.
Set moments from Barnes mainline station, the flat benefits from excellent transport links, riverside leisure and a wide choice of cafés, shops and amenities on Upper Richmond Road. The property is presented in generally good decorative order with double glazing (fitted post-2002) and gas central heating, so it's ready to move into while offering straightforward scope to add value through kitchen or bathroom modernisation.
Practical points to note: the building is solid-brick construction with no assumed cavity insulation and the internal footprint is compact (c.63 sq m / c.680 sq ft), so buyers seeking larger rooms should be aware. Council tax is moderate and the area has very low recorded crime and fast broadband — useful for commuters and home workers.
Overall this is a well-located, characterful ground-floor flat that combines an attractive indoor-outdoor flow with secure parking — a sensible purchase for those wanting immediate occupation or a rental investment in a desirable Putney/Barnes location.
2 bedroom flat for sale in Upper Richmond Road, Putney, SW15 — £480,000 • 2 bed • 1 bath • 819 ft²
3 bedroom flat for sale in Upper Richmond Road, Putney, SW15 — £950,000 • 3 bed • 2 bath • 1013 ft²
2 bedroom apartment for sale in Clatworthy House, 2 Cleeve Way, London, SW15 — £325,000 • 2 bed • 1 bath • 700 ft²
2 bedroom apartment for sale in Langside Avenue, London, SW15 — £799,950 • 2 bed • 2 bath • 1195 ft²
2 bedroom flat for sale in Upper Richmond Road, London, SW15 — £650,000 • 2 bed • 2 bath • 765 ft²
2 bedroom flat for sale in Upper Richmond Road, Putney, SW15 — £550,000 • 2 bed • 2 bath • 996 ft²






























