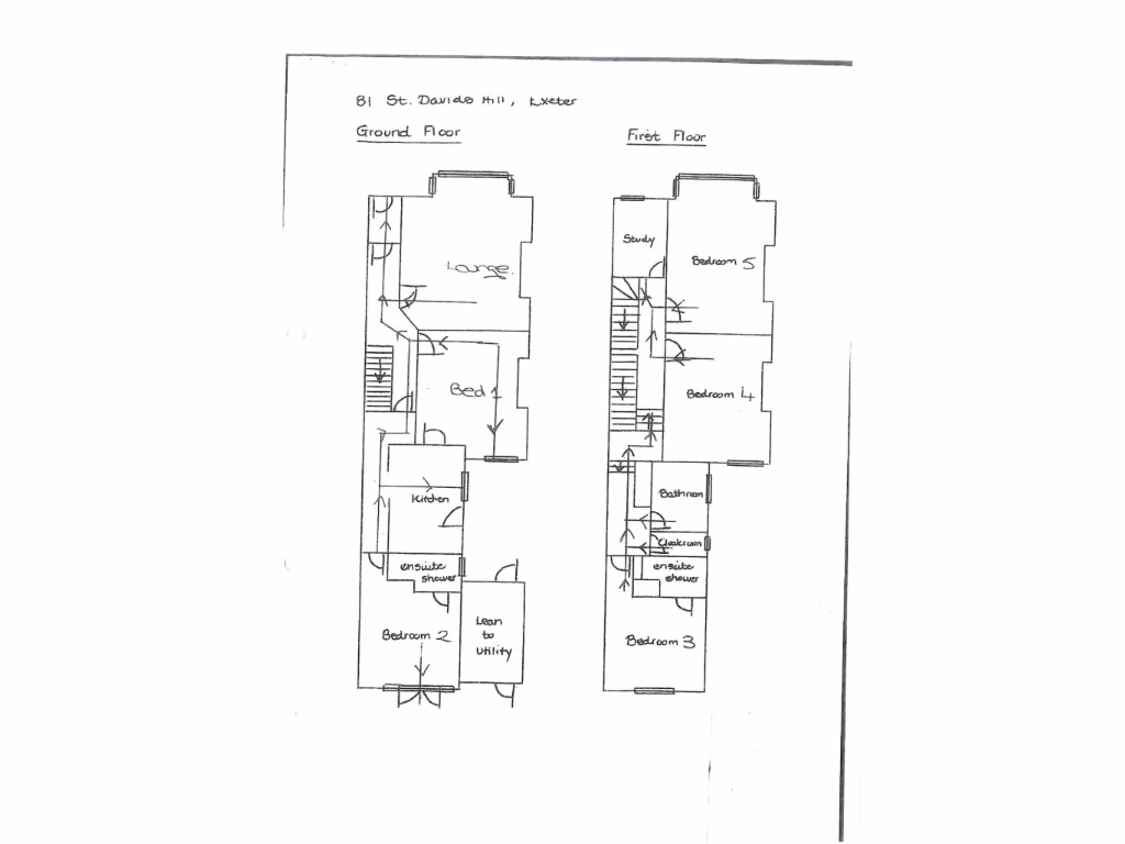
**Standout Features:**
- Spacious 7-bedroom licensed student investment property
- Tenancy agreement secure for the 2025/2026 academic year, generating an income of £55,055 exclusive of utilities
- Convenient location near Exeter University and city center
- Enclosed rear courtyard garden with utility outbuilding
- High ceilings and period features, including fireplaces and picture rails
- Gas central heating and double glazing throughout
- Off-street parking for two vehicles
**Summary:**
This impressive 7-bedroom Victorian terraced house is a prime opportunity for investors seeking a licensed student property. With a guaranteed income of £55,055 for the upcoming academic year, it promises significant yields in a cosmopolitan student neighborhood. The spacious layout includes four bathrooms, making it ideal for comfortable shared living. High ceilings and charming period features create a welcoming environment, while an enclosed garden and utility space enhance practicality.
Located within close proximity to the main university campus and Exeter's lively city center, the property not only offers future flexibility for renovations or extensions but also benefits from excellent broadband speeds and off-street parking. While it has a demanding maintenance history typical for older properties, the potential for appreciation in such a vibrant locality can’t be overlooked. Take advantage of this investment opportunity before it slips away—properties of this caliber won’t last long in today’s market!
7 bedroom terraced house for sale in Haldon Road, Exeter, EX4 — £499,000 • 7 bed • 4 bath • 2334 ft²
5 bedroom terraced house for sale in Priory Road, Exeter, EX4 — £389,000 • 5 bed • 2 bath • 1217 ft²
5 bedroom terraced house for sale in Victoria Street, Exeter, EX4 — £490,000 • 5 bed • 2 bath • 1400 ft²
5 bedroom terraced house for sale in Cowley Bridge Road, Exeter, EX4 — £375,000 • 5 bed • 2 bath • 1195 ft²
4 bedroom terraced house for sale in Monkswell Road, Exeter, EX4 — £330,000 • 4 bed • 1 bath • 958 ft²
6 bedroom detached house for sale in Union Road, Exeter, EX4 — £650,000 • 6 bed • 2 bath • 913 ft²






















































































