Three double bedrooms with integrated storage
Large private front and rear gardens, fenced and hedged
Single bathroom only, located at base of stairs
Gas central heating and double glazing throughout
Driveway parking and freehold tenure
Post‑war pebbledash villa with standard ceilings
Excellent mobile signal and fast broadband speeds
Located in an outer-city hardship area; very deprived locality
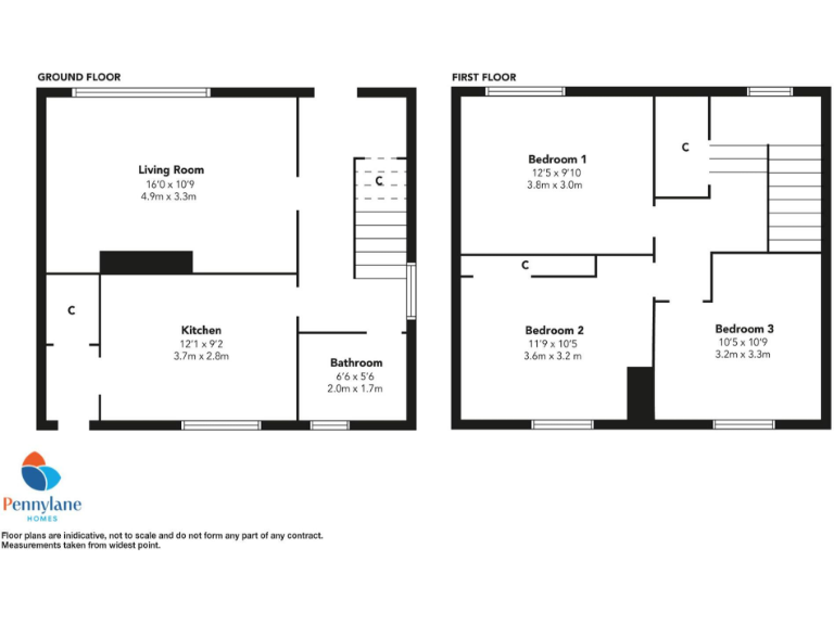
Set in Cardonald, this three-bedroom semi-detached villa offers roomy living, large private gardens and practical family storage. The ground-floor lounge centres on a fireplace and receives good natural light; the kitchen includes integrated oven and four-burner gas hob with direct access to the rear garden. Heating is via gas central heating and the house has double glazing throughout.
Upstairs are three double bedrooms, each with integrated storage and carpeted floors; the main bedroom features a sliding mirrored wardrobe. A single bathroom with a walk-in shower is located at the base of the stairs. The property is an average-sized home (about 1,119 sq ft) on freehold tenure and comes with off-street parking to the front.
Practical connectivity is a positive: excellent mobile signal and fast broadband, with nearby amenities including supermarkets, cafes and good bus links. Council tax is described as affordable, and there is no recorded flood risk.
Buyers should note the wider area classifications: this sits in an outer-city hardship zone and the immediate area is recorded as very deprived. The house is a post‑war, pebbledash property with standard ceiling heights — solid and comfortable but not architecturally modern. There is only one bathroom, which may be a consideration for larger families or those seeking en-suite facilities.
3 bedroom semi-detached house for sale in Ben Uird Place, Glasgow, Glasgow City, G53 — £215,000 • 3 bed • 1 bath • 725 ft²
3 bedroom terraced house for sale in Kingsland Drive, Cardonald, Glasgow, G52 2NG, G52 — £180,000 • 3 bed • 1 bath • 711 ft²
3 bedroom terraced house for sale in Maitland Place, Renfrew, PA4 — £175,000 • 3 bed • 2 bath • 893 ft²
3 bedroom semi-detached house for sale in Hallrule Drive, Glasgow, G52 — £230,000 • 3 bed • 2 bath • 1155 ft²
3 bedroom house for sale in 30 Thurston Road, Cardonald, G52 — £110,000 • 3 bed • 1 bath • 649 ft²
3 bedroom flat for sale in Trinity Avenue, Glasgow, G52 — £110,000 • 3 bed • 1 bath • 659 ft²










































































