- Chain free Georgian terraced home, recently renovated
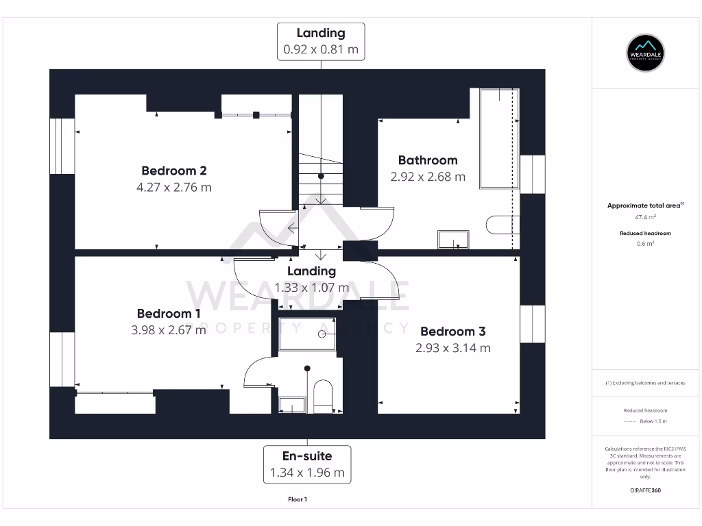
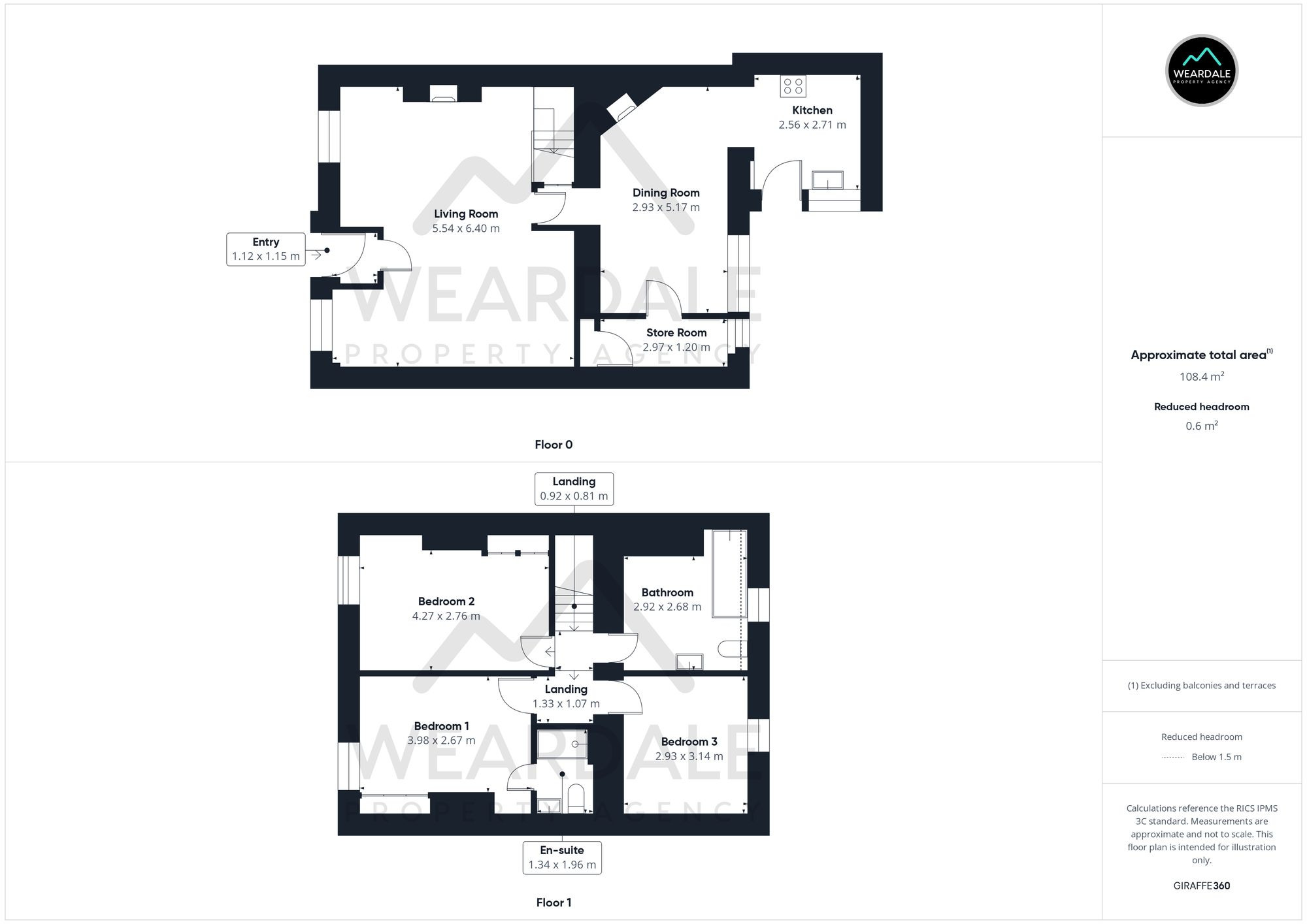
- Three double bedrooms, newly fitted en-suite and family bathroom
- New roof installed in 2019 for long-term peace of mind
- Beautiful, decent-sized garden plus stone/brick workshop with power
- Large single garage opposite provides secure parking
- Plenty of internal storage including large internal store room
- Solid stone walls likely uninsulated; energy efficiency may be improved
- EPC rating E; double glazing install date unknown
A lovingly restored Georgian terrace in the heart of Wolsingham, presented chain free and ready to move into. The 3-bedroom layout benefits from recent renovation works — including a new roof (2019), a refitted family bathroom and a newly added en-suite — while original stone elevations and sash-style windows retain period character. The open-plan dining/kitchen and generous living room create welcoming family living space filled with natural light.
Outdoor space is a notable strength: a beautiful, decent-sized garden and a stone/brick workshop with power and light provide gardening, hobby or storage options. Secure parking is available in a large single garage opposite the property, a real asset in this small town location.
Practical details are straightforward: freehold tenure, mains gas central heating with boiler and radiators, double glazing and plentiful internal storage including a large internal store room. Broadband speeds are average and mobile signal is excellent, making the house suitable for hybrid working and everyday family life.
Buyers should note some material facts: the property’s solid stone walls are assumed uninsulated (typical of pre-1900 builds) and the double glazing install date is unknown. The current EPC is E. These are manageable issues given the high-standard renovation overall, but buyers seeking top-tier energy efficiency may want to factor potential insulation or improvement works into budgets.
 4 bedroom town house for sale in St. Annes Drive, Wolsingham, DL13 — £264,000 • 4 bed • 2 bath • 1247 ft²
 4 bedroom town house for sale in St. Annes Drive, Wolsingham, DL13 — £264,000 • 4 bed • 2 bath • 1247 ft² 3 bedroom terraced house for sale in Meadhope Street, Wolsingham, DL13 — £355,000 • 3 bed • 1 bath • 1485 ft²
 3 bedroom terraced house for sale in Meadhope Street, Wolsingham, DL13 — £355,000 • 3 bed • 1 bath • 1485 ft² 4 bedroom end of terrace house for sale in St. Annes Drive, Wolsingham, Bishop Auckland, Durham, DL13 — £320,000 • 4 bed • 1 bath • 1247 ft²
 4 bedroom end of terrace house for sale in St. Annes Drive, Wolsingham, Bishop Auckland, Durham, DL13 — £320,000 • 4 bed • 1 bath • 1247 ft² 2 bedroom terraced house for sale in Silver Street, Wolsingham, DL13 — £199,950 • 2 bed • 1 bath • 861 ft²
 2 bedroom terraced house for sale in Silver Street, Wolsingham, DL13 — £199,950 • 2 bed • 1 bath • 861 ft² 2 bedroom end of terrace house for sale in West End, Wolsingham, DL13 — £165,000 • 2 bed • 2 bath • 678 ft²
 2 bedroom end of terrace house for sale in West End, Wolsingham, DL13 — £165,000 • 2 bed • 2 bath • 678 ft² 3 bedroom semi-detached house for sale in Lydgate Lane, Wolsingham, DL13 — £255,000 • 3 bed • 1 bath • 931 ft²
 3 bedroom semi-detached house for sale in Lydgate Lane, Wolsingham, DL13 — £255,000 • 3 bed • 1 bath • 931 ft²






























































































































































