Four-bedroom home on 0.72-acre plot with garden, summerhouse and paddock.
Approximately 0.72-acre plot with mature gardens and paddock suitable for a pony
Large double garage and powered summerhouse included
Distinctive period features: minstrel’s gallery, Rayburn, exposed brickwork
Flexible layout: principal ground-floor bedroom with ensuite
EPC F — significant energy-efficiency improvements recommended
Council Tax Band E; local area measures show high deprivation
Excellent mobile signal and fast broadband for rural location
Close to Melrose, Kelso and Earlston for shops and schooling
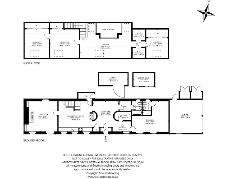
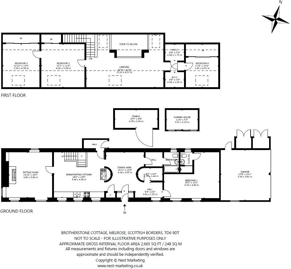
Brotherstone Cottage is a distinctive four-bedroom detached home set within about 0.72 acres of mature, landscaped grounds. The house was formed by joining original farm cottages and retains character features throughout, including a minstrel’s gallery, Rayburn stove, exposed brickwork and curved walls. Accommodation is flexible over two floors with principal bedroom and ensuite on the ground floor and three double bedrooms upstairs.
The plot includes a large double garage, a powered summerhouse, separate kitchen garden and a small paddock suitable for a pony or small livestock. The property sits in a peaceful rural setting with excellent walking right from the doorstep and easy road access to Melrose, Kelso and nearby Earlston where schooling and local shops are available.
Practical matters to note: the EPC rating is F and the property will benefit from energy and efficiency upgrades. Council Tax is Band E and the wider area is classified as very deprived in statistical terms, which may influence local services and funding. The house has been in the same family for around 40 years and offers strong potential for sensitive refurbishment while preserving its period character.
This home will suit buyers seeking substantial outdoor space and a traditional Borders property with unique interiors. It offers immediate liveability combined with clear potential to increase comfort and efficiency through targeted improvement works.
5 bedroom detached house for sale in Heriot, Midlothian, EH38 — £725,000 • 5 bed • 3 bath • 3412 ft²
2 bedroom cottage for sale in 1 Birkenside Farm Cottages, Earlston, TD4 — £250,000 • 2 bed • 1 bath • 929 ft²
2 bedroom terraced house for sale in Kelso, Scottish Borders, TD5 — £175,000 • 2 bed • 1 bath • 834 ft²
5 bedroom end of terrace house for sale in 5 Graden Farm Cottages, Kelso, TD5 8BS, TD5 — £248,000 • 5 bed • 2 bath • 1615 ft²
3 bedroom semi-detached house for sale in Braehead Cottage, Hartside, Oxton, TD2 6PU, TD2 — £275,000 • 3 bed • 1 bath • 883 ft²
2 bedroom terraced house for sale in St. Cuthberts Cottages, Donaldsons Lodge, Northumberland, TD12 — £210,000 • 2 bed • 1 bath • 883 ft²






















































































































































