Quiet garden and excellent rail links for growing households.
Bright reception room with high ceilings and period fireplace
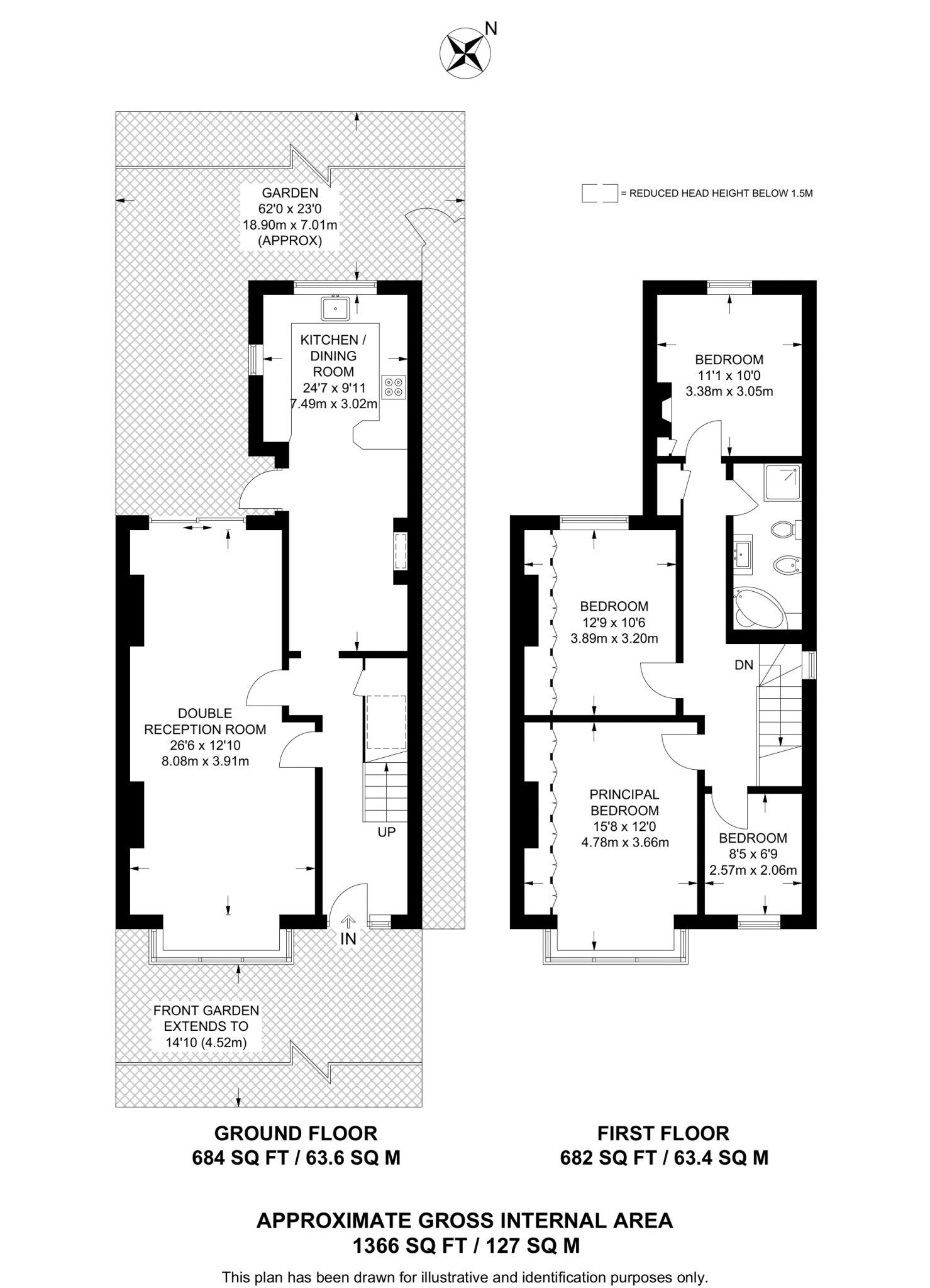
This Tudor-revival semi-detached house blends period character with spacious family living across multiple floors. The bright reception room and open-plan kitchen with dining area create a central social hub, while four double bedrooms offer room for a growing household.
Outside, a quiet private garden and a decent plot provide outdoor space and potential for landscaping or children's play. Streatham Common station is within easy reach, giving straightforward rail links into central London; local shops, buses and green spaces are all nearby.
The house has genuine potential but requires updating: some rooms show dated finishes and there is potential damp in the living room. There is just one bathroom for four bedrooms, so buyers should allow budget for modernization and reconfiguration to maximise value. Freehold tenure and a substantial 1,366 sq ft give scope for investment or a long-term family home.
4 bedroom end of terrace house for sale in Cricklade Avenue, Streatham Hill, London, SW2 — £900,000 • 4 bed • 1 bath • 1509 ft²
5 bedroom semi-detached house for sale in Kempshott Road, LONDON, London, SW16 — £850,000 • 5 bed • 1 bath • 1659 ft²
5 bedroom semi-detached house for sale in Braxted Park, London, SW16 — £1,350,000 • 5 bed • 3 bath • 2450 ft²
4 bedroom terraced house for sale in Glenister Park Road, Streatham Vale, London, SW16 — £775,000 • 4 bed • 3 bath • 1435 ft²
4 bedroom house for sale in Heybridge Avenue, London, SW16 — £800,000 • 4 bed • 1 bath • 1749 ft²
4 bedroom semi-detached house for sale in Croft Road, London, SW16 — £730,000 • 4 bed • 3 bath • 1528 ft²


































































































