Large freehold plot with full planning permission near Morecambe Bay — ready for build..
Full planning permission for detached 2-bedroom dwelling (ref 2024/2152/FPA)
Very large freehold plot with terrace, garden and off-street parking
Mains services available on site; fast broadband, average mobile signal
Quiet residential location, short walk to Morecambe Bay and amenities
No flood risk; very low local crime; affluent community
Requires full construction to realise dwelling — factor build costs
Suitable for developers, builders, private buyers or holiday-let use
Easy access to Lake District links and the M6 motorway
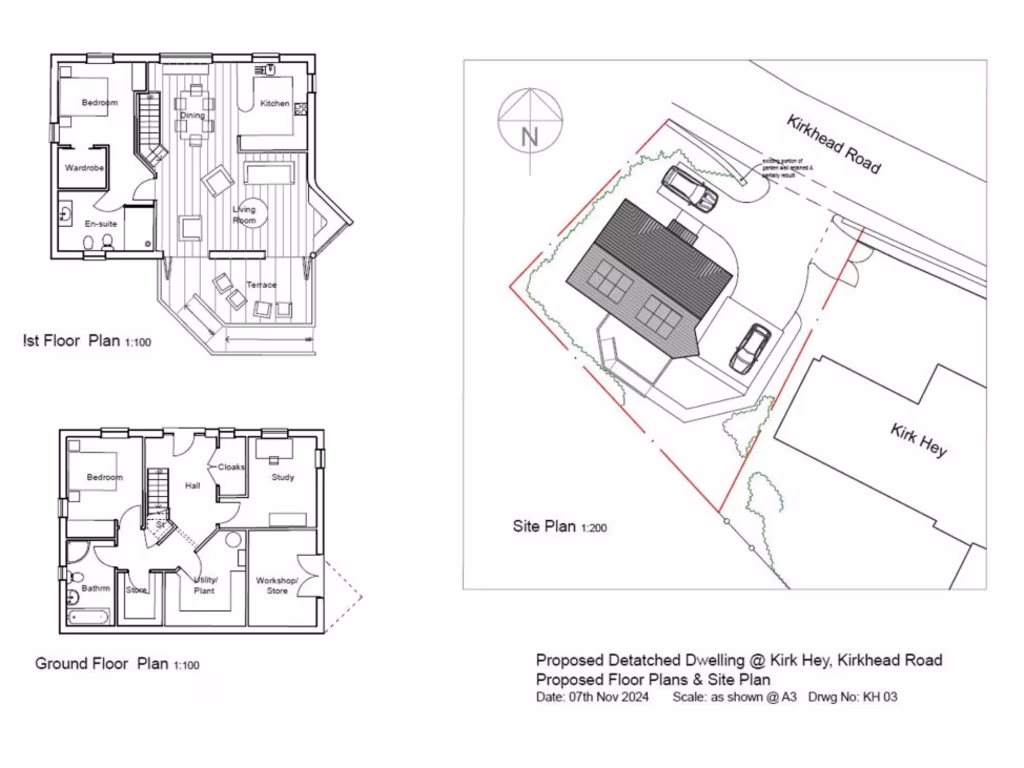
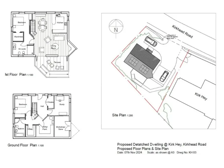
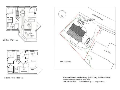
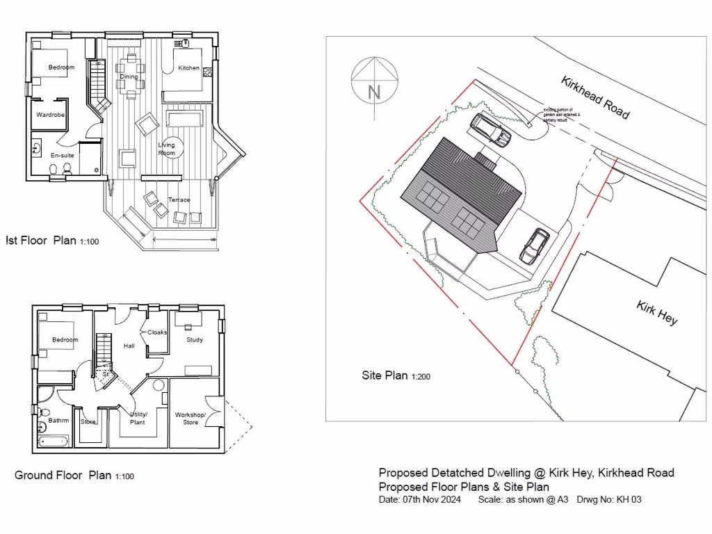
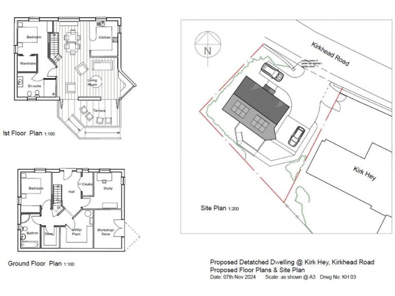
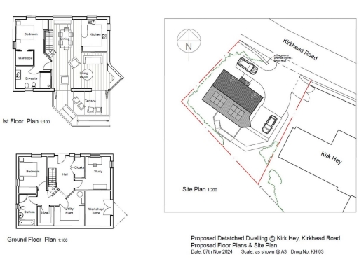
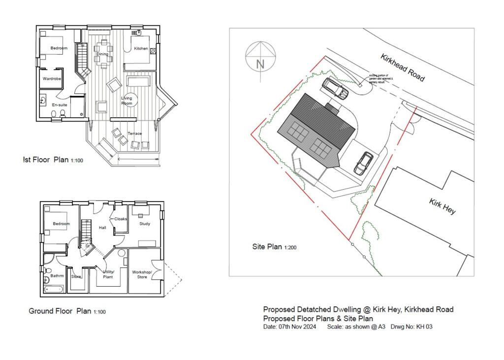
This large freehold building plot benefits from full planning permission (ref: 2024/2152/FPA) for a detached two-bedroom dwelling with an open-plan living area, bathroom, en-suite, utility room, terrace, garden and parking. Set in a quiet, affluent residential pocket of Grange-over-Sands, the site offers fast broadband, average mobile signal, very low crime and easy access to local amenities, transport links and the Lake District.
The plot’s size and permission make it appealing to builders, developers or private buyers wanting a contemporary seaside home near Morecambe Bay. Mains services are available on site, and the layout allows for practical off-street parking and generous outdoor space — a selling point for holiday-let or owner-occupier markets.
Buyers should be clear this is a land purchase: the permission must be implemented via construction, with the associated build costs, site works and procurement to budget for. There are no reported flood risks, but purchasers will need to confirm any remaining planning conditions and statutory requirements prior to starting works.
Short walks to the bay, good local schools and strong transport links make this a flexible opportunity — suitable for small-scale developers, owner-builders or investors targeting high-demand rental or holiday-let markets in an attractive coastal town.
Land for sale in Development Site East Of Manorside, Flookburgh, Cumbria, LA11 — £1,200,000 • 1 bed • 1 bath
Land for sale in Cartmel Road, Grange-over-Sands, LA11 — £595,000 • 1 bed • 1 bath
Plot for sale in 2 Woodland Road, Ulverston, LA12 0DX, LA12 — £400,000 • 1 bed • 1 bath • 850 ft²
2 bedroom detached bungalow for sale in Canal Foot, Ulverston, detached bungalow with planning permission for a 4 bed detached house, LA12 — £300,000 • 2 bed • 1 bath
Land for sale in Residential Site, Manorside, Flookburgh, Grange Over Sands, Cumbria, LA11 7HY, LA11 — £1,250,000 • 1 bed • 1 bath
3 bedroom house for sale in White Lund Road, Heaton With Oxcliffe, Morecambe, LA3 — £459,950 • 3 bed • 2 bath • 969 ft²


































