Two-storey living with garden, garage and scope to modernise for family life.
No onward chain — ready for quicker completion
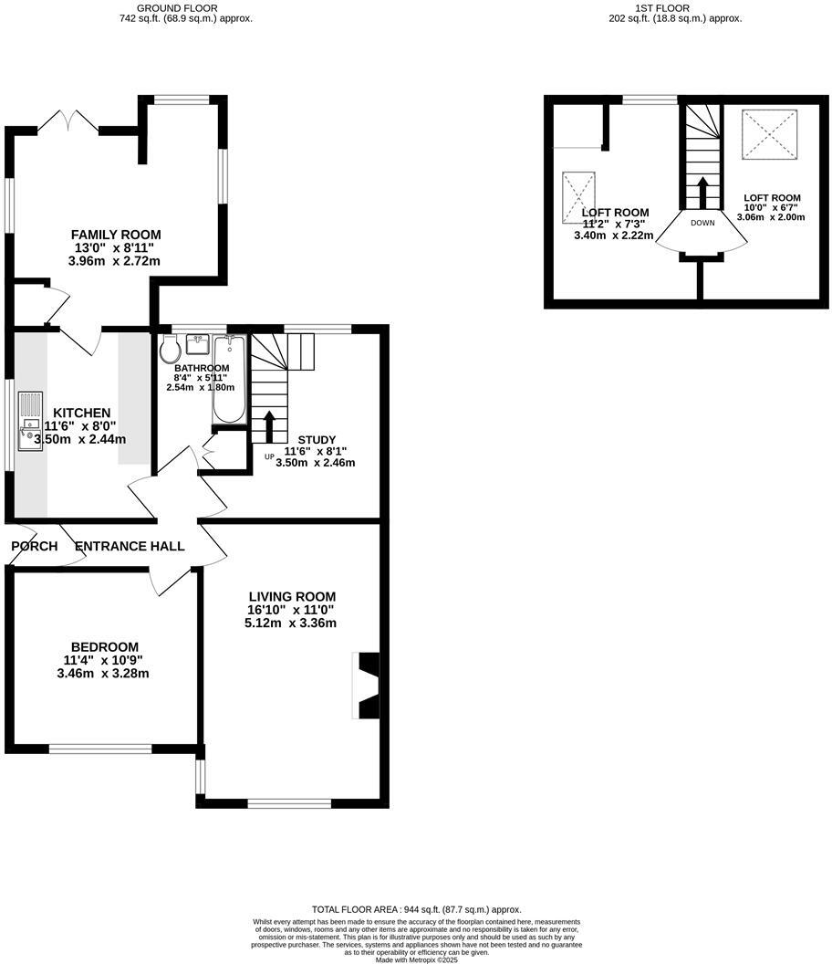
Loft conversion provides two first-floor rooms, flexible use
Good-size rear garden ideal for family outdoor use
Garage plus ample off-road parking to the front
Double glazing and gas radiator central heating present
Modern bathroom but many interiors require updating
Living room shows dated finishes and needs modernisation
Freehold tenure; located in a quiet, comfortable neighbourhood
This two-bedroom semi-detached chalet bungalow sits in sought-after Wroughton, south of Swindon, offered with no onward chain and freehold tenure. The ground floor provides a conventional layout: entrance porch and hall, living room, separate dining room, study/inner hall, fitted kitchen, master bedroom and modern bathroom. Two loft rooms on the first floor extend usable space for guests, hobbies or home working.
Practical features include double glazing, gas radiator central heating, a garage and ample off-road parking. The good-size rear garden is a strong family asset for outdoor play and entertaining. Local amenities include shops, bus links and nearby woodland; several well-rated primary and secondary schools are within easy reach.
Internally the property shows mid-20th century character but also some dated finishes and cluttered presentation in places, particularly the living room. The accommodation is best suited to buyers ready to update cosmetic elements or to reconfigure the loft rooms for full-height use. Overall the house represents flexible living with renovation potential in a comfortable neighbourhood with fast broadband and very low local crime rates.
2 bedroom semi-detached bungalow for sale in Beaufort Road, Wroughton, Swindon, SN4 — £275,000 • 2 bed • 1 bath • 777 ft²
2 bedroom bungalow for sale in Kennet Road, Swindon, SN4 — £290,000 • 2 bed • 1 bath
2 bedroom semi-detached bungalow for sale in Masefield, Royal Wootton Bassett, SN4 — £305,000 • 2 bed • 2 bath • 969 ft²
3 bedroom bungalow for sale in Priors Hill, Wroughton, Swindon, SN4 — £300,000 • 3 bed • 2 bath • 891 ft²
2 bedroom bungalow for sale in The Peak, Purton, SN5 — £215,000 • 2 bed • 1 bath • 681 ft²
4 bedroom semi-detached bungalow for sale in Wharf Road, Wroughton, Swindon, SN4 — £375,000 • 4 bed • 3 bath • 1119 ft²














































































