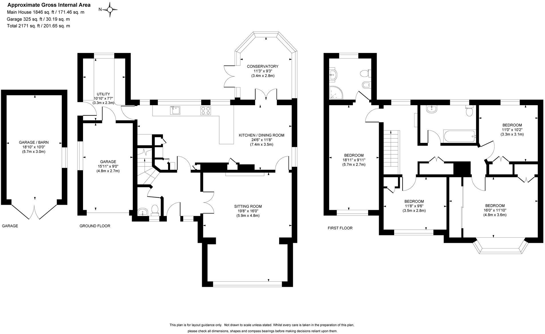
Spacious four-bedroom family home on a large east-facing corner plot in Horsted Keynes.
4 double bedrooms and 3 reception rooms, generous family layout
Large east-facing corner plot approx. 45' x 135' with mature planting
65' block-paved driveway for several vehicles plus integral garage
Timber outbuilding/boathouse and workshop/utility offer extra storage
Open-plan kitchen/dining with conservatory; extended sitting room with open fire
EPC rating E; oil boiler heating and older double glazing — energy upgrades needed
Cavity walls assumed uninsulated; likely scope for insulation improvements
Vacant possession and no chain; Council Tax Band F (expensive)
A tucked-away detached home in Horsted Keynes, this four-double-bedroom property offers comfortable family living across 1,846 sq ft on a large east-facing corner plot. The house combines an extended sitting room with a feature open fire, an open-plan kitchen/dining area with conservatory, and useful ancillary rooms including a workshop/utility and an integral garage. The wide block-paved driveway and additional timber boathouse/barn add practical parking and storage for family needs or hobbies.
The plot is a major asset: approximately 45' x 135' (max) with mature planting, privacy and a true village feel within easy walking distance of the primary school, local shops, pubs and open countryside. Vacant possession and no onward chain make this move-ready for buyers who want to settle quickly or owners seeking a roomy family home in a prosperous rural neighbourhood.
Buyers should be aware of a number of practical points. The property has an EPC rating of E and oil-fired central heating, cavity walls without added insulation (assumed) and double glazing fitted before 2002 — all factors that may mean higher running costs and future improvement work. The interior and some fixtures are dated and would benefit from updating to improve efficiency and to suit modern tastes. Council Tax sits in Band F and should be factored into ongoing costs.
This house will suit families seeking space, a large private garden and village living who are prepared to carry out energy-efficiency upgrades and cosmetic modernisation. For purchasers prioritising location and plot size over a turnkey finish, the home offers immediate occupation and clear potential to add value with targeted improvements.
4 bedroom detached house for sale in Boxes Lane, Horsted Keynes, RH17 — £875,000 • 4 bed • 2 bath • 1915 ft²
5 bedroom detached house for sale in Lucas, Horsted Keynes, RH17 — £900,000 • 5 bed • 3 bath • 1972 ft²
4 bedroom detached house for sale in Paynesfield, Bolney, RH17 — £900,000 • 4 bed • 2 bath • 2391 ft²
4 bedroom detached house for sale in Nursery Lane, Wivelsfield Green, RH17 — £975,000 • 4 bed • 2 bath • 2120 ft²
4 bedroom detached house for sale in Ruthven Close, Cuckfield, RH17 — £600,000 • 4 bed • 1 bath • 1521 ft²
3 bedroom semi-detached house for sale in Lewes Road, Horsted Keynes, RH17 — £595,000 • 3 bed • 1 bath • 1428 ft²






















































































