**Standout Features:**
- Spacious 4-bedroom detached family home
- First time on the market in nearly 60 years
- Bright and airy living spaces, including a large living room and separate dining room with conservatory access
- Driveway parking for multiple vehicles and integral garage
- Large private garden
- Potential for modernization or extension (STPP)
- Located in desirable Church Crookham with excellent transport links
**Summary:**
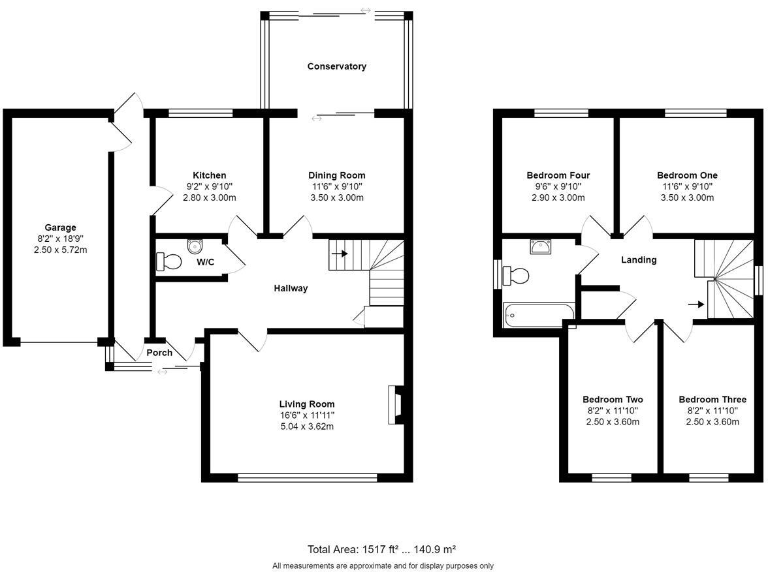
Welcome to this charming 4-bedroom detached family home in the sought-after community of Church Crookham. This property has been cherished by the same family for nearly 60 years and is now available chain-free. Spanning 1,517 square feet on a generous plot, the home offers an inviting layout featuring a spacious living room, a separate dining room leading to a bright conservatory, and four comfortable double bedrooms—perfect for growing families.
With off-street parking and an integral garage, convenience is at your fingertips. The large private garden creates a delightful outdoor space for relaxation or play. This home presents a unique opportunity to modernize and tailor it to your family's needs, with potential for extension (subject to planning permission).
Nestled in an affluent area known for its family-friendly atmosphere, you'll benefit from excellent local amenities, highly-rated schools, and seamless transport links, including Fleet station just minutes away, providing direct access to London. Don't miss your chance to secure this property with remarkable potential to create a forever home in a vibrant setting!
4 bedroom detached house for sale in The Verne, Church Crookham, GU52 — £700,000 • 4 bed • 2 bath • 1458 ft²
5 bedroom detached house for sale in Aldershot Road, Church Crookham, Fleet, Hampshire, GU52 — £985,000 • 5 bed • 3 bath • 3000 ft²
4 bedroom detached house for sale in Aldershot Road, Fleet, GU51 — £750,000 • 4 bed • 2 bath • 1906 ft²
4 bedroom detached house for sale in Rushmoor Close, Fleet, Hampshire, GU52 — £700,000 • 4 bed • 2 bath • 1773 ft²
5 bedroom detached house for sale in Aldershot Road, Church Crookham, GU52 — £1,150,000 • 5 bed • 2 bath • 2773 ft²
4 bedroom detached house for sale in Carthona Drive, Fleet, Hampshire, GU52 — £700,000 • 4 bed • 2 bath • 1502 ft²










































































































