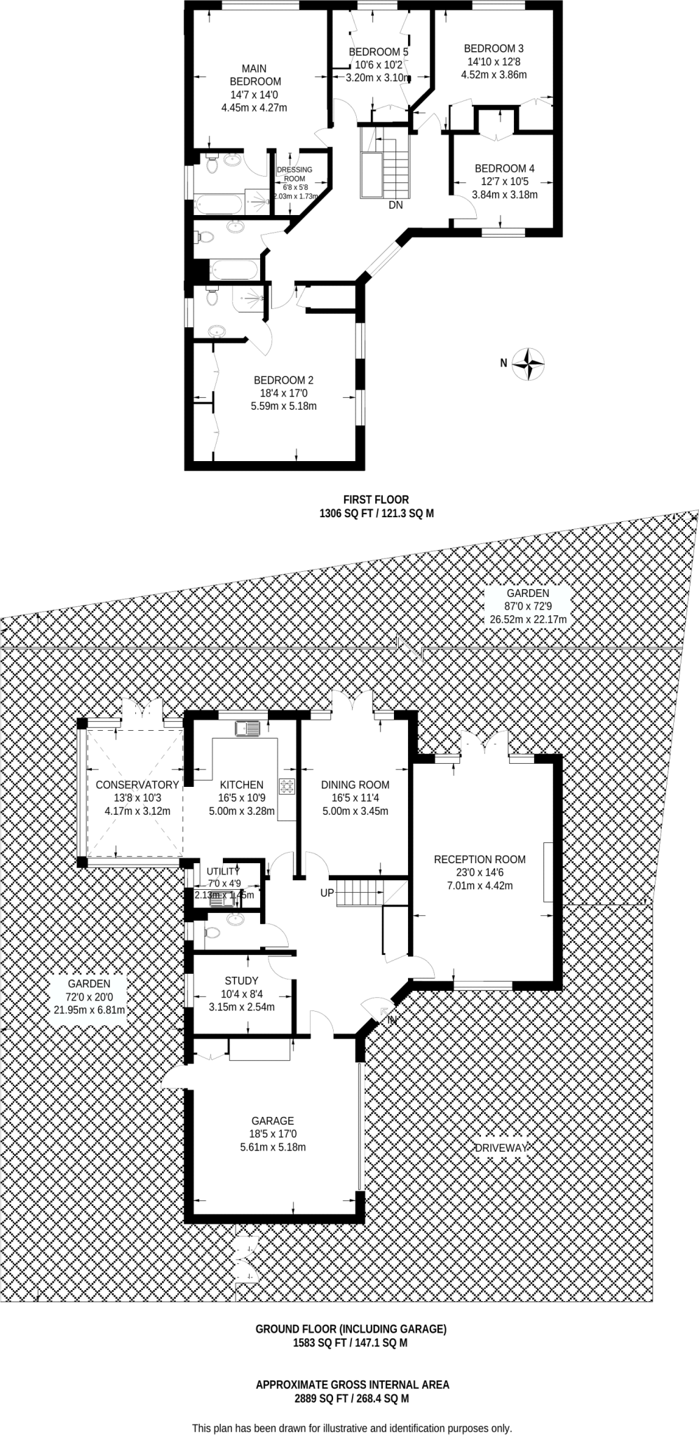
Spacious five-bedroom with wrap-around garden and double garage near East Croydon station.
Five bedrooms plus two en-suites and stylish family bathroom
Set on a generous plot in Lloyd Park, this five-bedroom detached house blends Tudor Revival character with modern living. Two elegant reception rooms, a fully integrated kitchen and a bright conservatory create flexible ground-floor living suitable for family life and entertaining. The wrap-around garden and double garage with gated driveway deliver secure outdoor space and practical parking for several vehicles.
The principal bedroom and a second bedroom both have en-suite facilities, and a stylish family bathroom serves the remaining rooms. The property was built around the turn of the century and benefits from double glazing and mains gas central heating via boiler and radiators. East Croydon station is a short journey away, and several highly rated primary and secondary schools lie close by, making this a strong choice for school-age families and professionals commuting to central London.
Buyers should note broadband speeds are reported as slow, which may affect home working without an improved service. The house presents as well-maintained but, given its size and age, will require routine updating in places to match modern luxury standards. Freehold tenure and low local crime add practical reassurance for long-term ownership.
 4 bedroom detached house for sale in Selborne Road, Croydon, CR0 — £900,000 • 4 bed • 2 bath • 2326 ft²
 4 bedroom detached house for sale in Selborne Road, Croydon, CR0 — £900,000 • 4 bed • 2 bath • 2326 ft² 5 bedroom detached house for sale in Selborne Road, Croydon, CR0 — £1,150,000 • 5 bed • 3 bath • 2793 ft²
 5 bedroom detached house for sale in Selborne Road, Croydon, CR0 — £1,150,000 • 5 bed • 3 bath • 2793 ft² 5 bedroom detached house for sale in Stanhope Road, Croydon, CR0 — £1,250,000 • 5 bed • 4 bath • 2236 ft²
 5 bedroom detached house for sale in Stanhope Road, Croydon, CR0 — £1,250,000 • 5 bed • 4 bath • 2236 ft² 4 bedroom semi-detached house for sale in Rutland Gardens, East Croydon, Croydon, CR0 — £685,000 • 4 bed • 1 bath • 1803 ft²
 4 bedroom semi-detached house for sale in Rutland Gardens, East Croydon, Croydon, CR0 — £685,000 • 4 bed • 1 bath • 1803 ft² 4 bedroom detached house for sale in Whitgift Avenue, South Croydon, CR2 — £999,000 • 4 bed • 4 bath • 2044 ft²
 4 bedroom detached house for sale in Whitgift Avenue, South Croydon, CR2 — £999,000 • 4 bed • 4 bath • 2044 ft² 4 bedroom detached house for sale in Beechwood Road, South Croydon, CR2 — £1,000,000 • 4 bed • 3 bath • 2000 ft²
 4 bedroom detached house for sale in Beechwood Road, South Croydon, CR2 — £1,000,000 • 4 bed • 3 bath • 2000 ft²


































































































































