Generous west-facing garden backing onto open fields, close to coast and village amenities.
Planning consent granted for 4-bedroom family home (ref 24/02001/F)
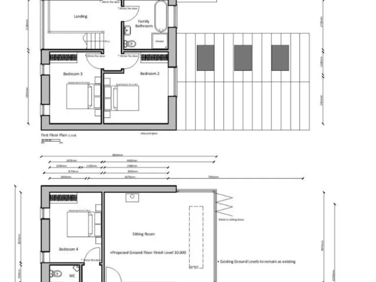
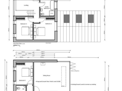
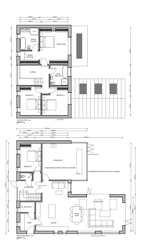
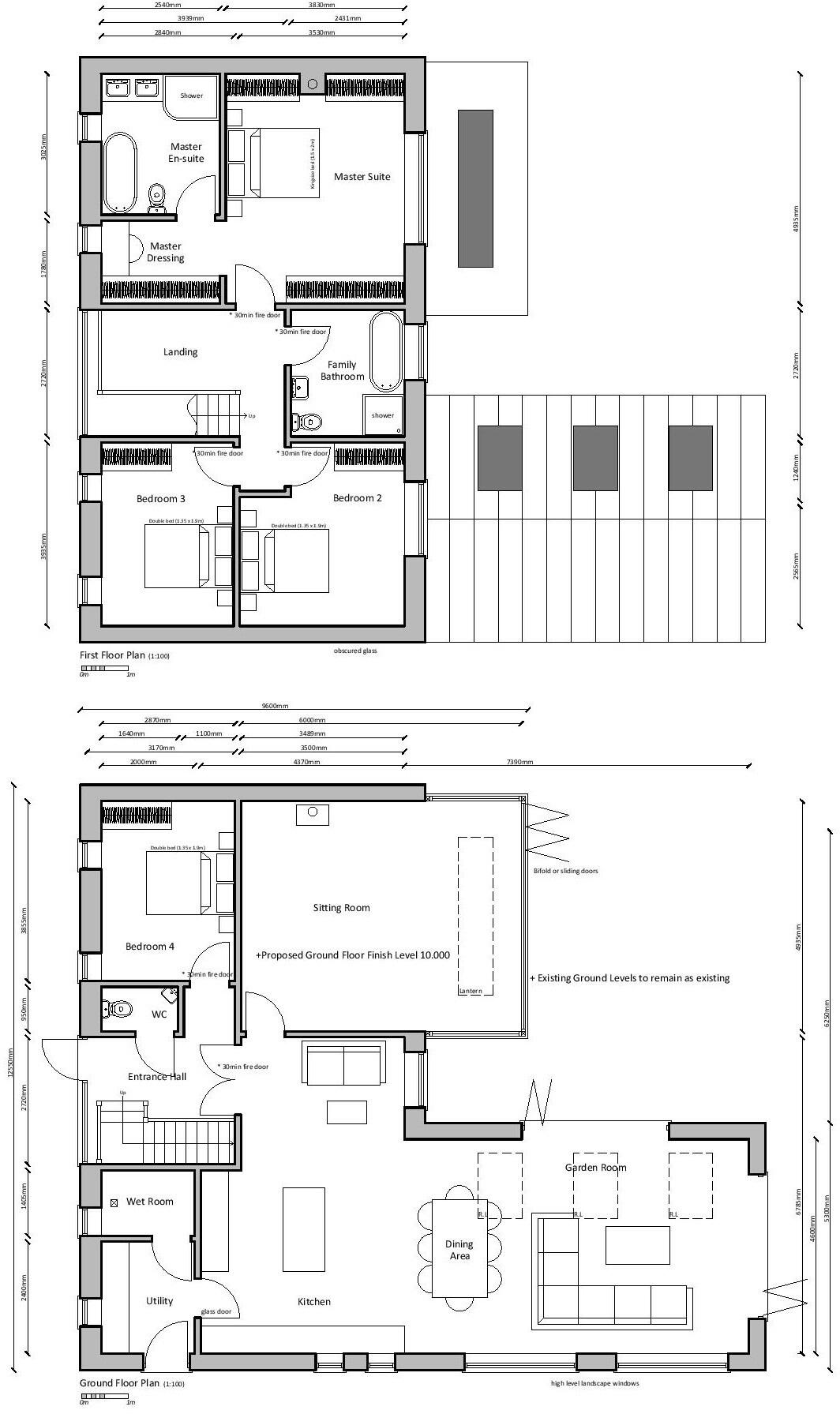
This individual freehold building plot comes with planning consent for an impressive 4-bedroom family home (ref: 24/02001/F). The approved design offers about 1,608 sq ft across two storeys, a ground-floor bedroom and wet room, open-plan living with bi-fold doors, and an upstairs master suite with dressing room and en-suite. The house sits to the south of an existing dwelling and benefits from a generous, west-facing garden that backs onto open fields — ideal for evening sun and privacy.
The site is well placed for family life in Docking: the village shop, pub and primary school are a short walk away, and the North Norfolk coast is within a five-mile drive. Parking provision is included in the layout with private turning, a garage/cart-shed and dedicated parking, while mobile signal is excellent and the location has a low crime rate.
Buyers should note a few material points before proceeding. The project is subject to a Community Infrastructure Levy (CIL) payment, and broadband speeds are reported as slow. The new house will share the existing access from Station Road, and the plot currently sits within the grounds of another dwelling. Prospective purchasers are advised to confirm mains service connections, CIL costs and to commission their own surveys and technical reports before exchange.
Overall, this is a rare opportunity to build a thoughtfully designed family home in a popular village setting with countryside views and planning already in place. It will suit buyers wanting a ready-permitted project near good schools and the coast, who are comfortable managing the remaining technical and financial steps to completion.
Plot for sale in Stanhoe Road, Docking, King's Lynn, PE31 — £300,000 • 3 bed • 1 bath
Land for sale in Stanhoe Road, Docking, King's Lynn, Norfolk, PE31 8NJ, PE31 — £300,000 • 1 bed • 1 bath
3 bedroom end of terrace house for sale in Stanhoe Road, Docking, PE31 — £325,000 • 3 bed • 1 bath • 1104 ft²
4 bedroom detached house for sale in "Blenheim Place" - Bakers Way, Docking, PE31 — £550,000 • 4 bed • 2 bath • 1448 ft²
2 bedroom end of terrace house for sale in Station Road, Docking, PE31 — £260,000 • 2 bed • 1 bath • 993 ft²
5 bedroom detached house for sale in "Blenheim Place" - Bakers Way, Docking, PE31 — £875,000 • 5 bed • 3 bath • 2277 ft²


























