Turn‑key four-bedroom home with panoramic Loch Tay views, beach access and rental potential..
- Panoramic Loch Tay and Kenmore views from main living areas and balcony
- Recently refurbished with 2020 extension, triple glazing and insulation
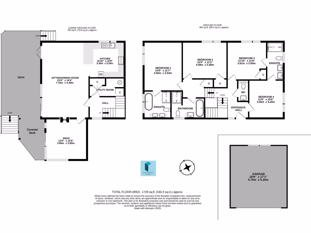
- Spacious 4 bedrooms, 3 bathrooms, en suite and underfloor heating in main bath
- Large plot (~0.73 acres) with terraced garden and direct beach access
- Double garage, ample parking; large garden/log stores beneath balcony
- Short Term Letting Licence in place (valid until 2027) — rental potential
- Slow broadband and average mobile signal may hinder remote working
- Shared private road; joint maintenance responsibility and council tax band F
Tatha View is a striking, recently refurbished four-bedroom detached house perched above Loch Tay, offered in turn-key condition. A contemporary 2020 extension, triple glazing and internal insulation create a bright, energy-conscious interior that makes the most of uninterrupted loch and hillside views. The open-plan living and dining area with sliding doors opens onto a rebuilt balcony — an ideal spot for alfresco dining or quiet mornings watching the water.
The house works well as a permanent home, second residence or holiday rental; it currently holds a Short Term Letting Licence valid until 2027. The flexible three-level layout includes an en suite main bedroom with underfloor heating, a double-sided wood-burning stove linking reception rooms, useful storage and a double garage with parking. The property sits in about 0.73 acres of terraced garden with direct stepped access down to Kenmore beach via a path through the garden.
Buyers should note some practical limitations: broadband speeds are slow and mobile signal is average, which may affect home working or streaming. Council tax is band F and running costs may be higher given the property’s size and rural location. Access is via a shared private road with joint responsibility for maintenance. The EPC rating is D.
4 bedroom detached house for sale in Schoolhouse, Kenmore, Aberfeldy, PH15 — £650,000 • 4 bed • 5 bath • 1338 ft²
3 bedroom detached house for sale in Portghlas, Kenmore, Aberfeldy, Perthshire, PH15 — £495,000 • 3 bed • 3 bath • 2045 ft²
4 bedroom detached house for sale in Comraich House, Rannoch, Pitlochry, Perthshire, PH17 — £615,000 • 4 bed • 4 bath • 2595 ft²
4 bedroom detached house for sale in New Dwelling House, Fearnan, PH152FE, PH15 — £645,000 • 4 bed • 3 bath
1 bedroom apartment for sale in 11 Lochview, Taymouth Marina, Kenmore, Perthshire, PH15 — £260,000 • 1 bed • 1 bath • 614 ft²
2 bedroom lodge for sale in Two Bed Luxury Lodge, Loch Tay Highland Lodges, Milton Morenish Estate, Killin, Perth and Kinross, FK21 8TY, FK21 — £274,995 • 2 bed • 2 bath


















































































































