Ready-to-move-in two-bedroom flat near shops, park and sports facilities.
Freehold two-bedroom apartment, circa 838 sq ft
Preferred first-floor position with peaceful playing-field views
Newly renovated (refurbishment c.2015), ready to occupy
PVCu double glazing and Worcester Bosch combi boiler
High factored service charge c.£3,150 (average)
Council Tax Band E (above-average cost)
Fast broadband and excellent mobile signal
Security entry agreed by residents, installation pending
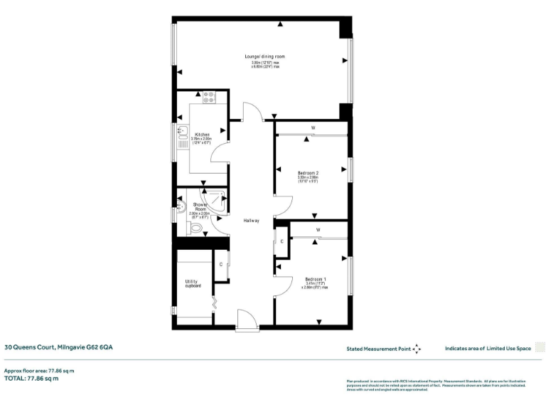
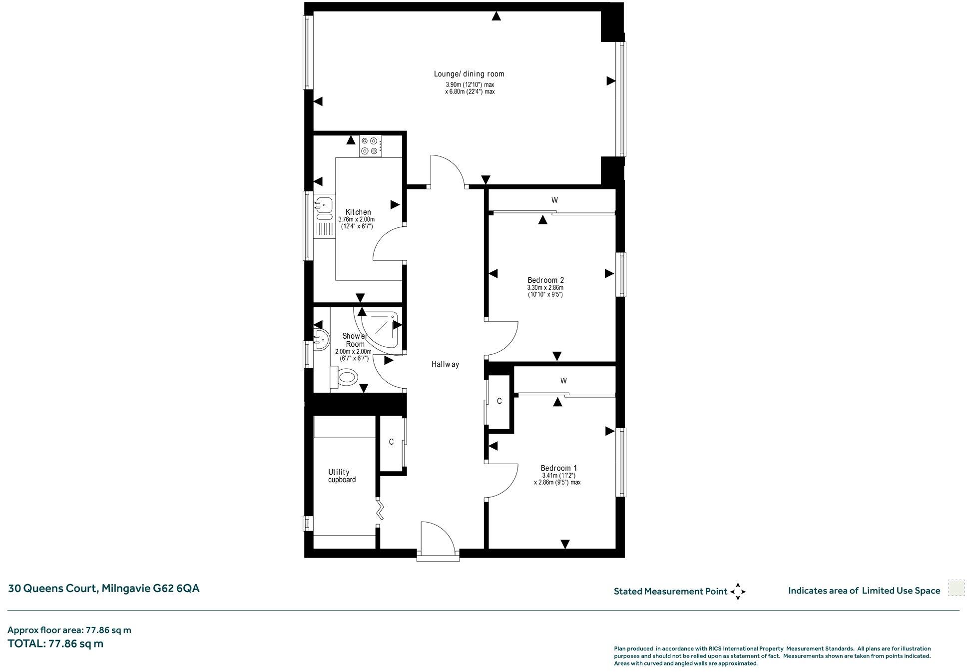
This well-presented two-bedroom apartment occupies a preferred first-floor position in a small, mid-20th-century block. The flat was comprehensively refurbished around 2015 and is offered in move-in condition, with contemporary fixtures, double glazing and a modern Worcester Bosch combi boiler for gas central heating.
Accommodation includes a generous lounge/diner, modern fitted kitchen, walk‑in shower room, two double bedrooms, utility room and useful hall storage. The apartment faces communal gardens and benefits from peaceful outlooks over nearby playing fields, fast broadband and excellent mobile signal — practical for working from home or staying connected.
Practicalities to note: the building is factored (McPhee) with an average service charge of c.£3,150, and residents have agreed to install a security entry system (works to be scheduled). Council tax is Band E (above average). The immediate neighbourhood has strong local amenities and green space, although wider area statistics indicate pockets of deprivation.
2 bedroom apartment for sale in Iddesleigh Avenue, Milngavie, G62 — £165,000 • 2 bed • 1 bath • 812 ft²
2 bedroom flat for sale in Fairview Court, Main Street, Milngavie, G62 — £185,000 • 2 bed • 1 bath • 667 ft²
2 bedroom flat for sale in Lennox Avenue, Milngavie, Glasgow, East Dunbartonshire, G62 — £135,000 • 2 bed • 1 bath • 685 ft²
1 bedroom flat for sale in Iddesleigh Avenue, Milngavie, G62 — £125,000 • 1 bed • 1 bath • 560 ft²
1 bedroom flat for sale in Main Street, Milngavie, Glasgow, East Dunbartonshire, G62 — £150,000 • 1 bed • 1 bath • 537 ft²
2 bedroom flat for sale in Station Road, Milngavie, Glasgow, East Dunbartonshire, G62 — £265,000 • 2 bed • 1 bath






































































































