Spacious Victorian character with renovation potential near station and schools.
Chain-free Victorian period home with high ceilings and bay windows
Recently fitted new roof reduces immediate major expenditure
Walking distance to Redhill station, High Street and good schools
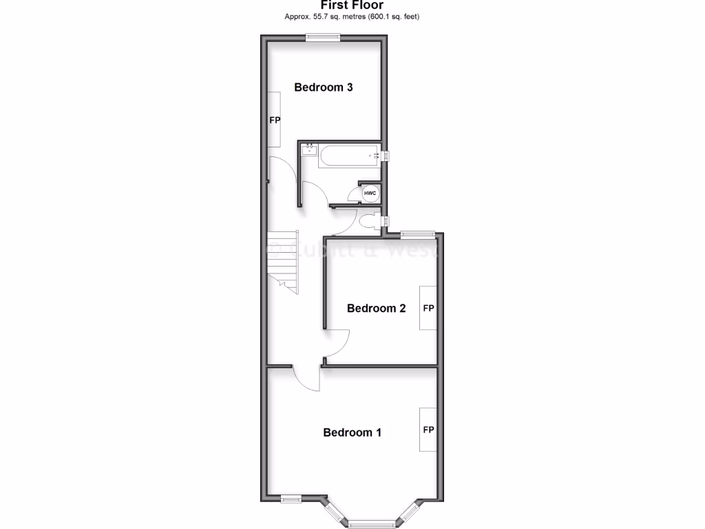
Three bedrooms; family-sized rooms but only one full bathroom
Requires substantial renovation throughout and modernisation needed
Double glazing installed pre-2002; consider window upgrades
Cavity walls assumed uninsulated; energy efficiency improvements likely
Small plot and rear garden; limited scope for extension outdoors
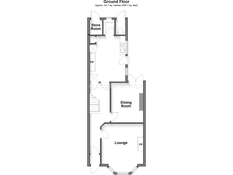
This substantial period home offers a rare, chain-free chance to create a spacious family residence in central Redhill. High ceilings, large bay windows to the lounge and master bedroom, and original decorative details give immediate character and a feeling of space. A recently fitted new roof addresses a major cost, while the bright dining area opens via patio doors onto the rear garden.
The property is a practical canvas for buyers prepared to renovate: the layout provides family-sized rooms (three bedrooms and a sizeable kitchen) and off-street parking. It sits within easy walking distance of Redhill station, the High Street and several well-rated schools, making school runs and commutes straightforward.
Buyers should plan for substantial updating throughout. The house needs renovation, has only one full bathroom plus a separate toilet, older double glazing installed before 2002, and cavity walls without insulation (assumed). The plot is small, so any garden expansion potential is limited.
For a family or buyer wanting to add value, this property combines desirable period proportions and location with clear scope to modernise and personalise. The chain-free status and new roof reduce some immediate barriers to starting renovation works.
3 bedroom semi-detached house for sale in Osborne Road, Redhill, RH1 — £450,000 • 3 bed • 1 bath • 843 ft²
3 bedroom semi-detached house for sale in Osborne Road, Redhill, Surrey, RH1 — £500,000 • 3 bed • 2 bath • 1148 ft²
4 bedroom semi-detached house for sale in London Road, Redhill, RH1 — £700,000 • 4 bed • 2 bath • 1740 ft²
3 bedroom terraced house for sale in Garlands Road, Redhill, RH1 — £450,000 • 3 bed • 1 bath • 603 ft²
3 bedroom semi-detached house for sale in Grovehill Road, Redhill, RH1 — £650,000 • 3 bed • 2 bath • 1236 ft²
5 bedroom detached house for sale in Croydon Road, Reigate, RH2 — £925,000 • 5 bed • 2 bath • 1245 ft²










































































