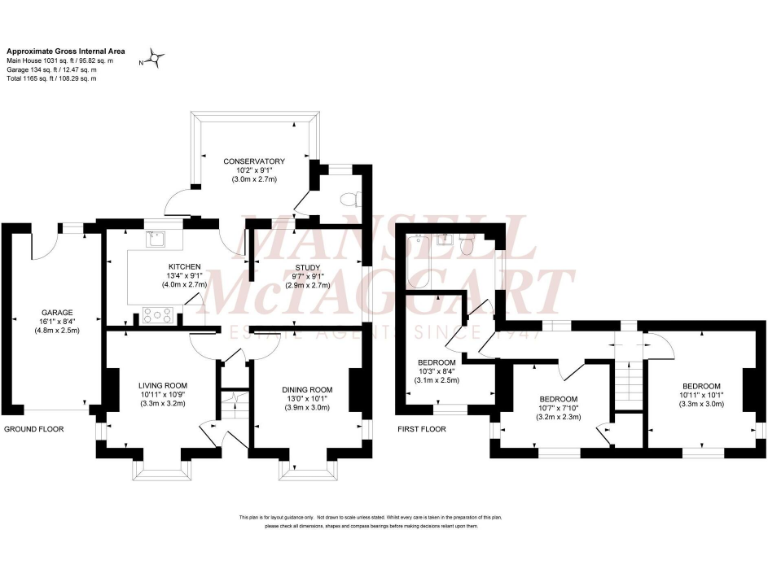
Character-filled 3-bed cottage with large garden opposite recreation ground, needs modernisation..
Vacant possession; built circa 1860 with period character
Large east-facing rear garden approximately 100' x 40'
Private driveway and garage with power, light and plumbing
Bay-fronted living and dining rooms; study and conservatory
Conservatory in need of complete repair; significant refurbishment required
Living-room fireplace currently blocked; two bedrooms have loft access
Gas central heating (Potterton boiler located in kitchen); double glazing
EPC Rating E; opportunity to extend or reconfigure subject to consent
Built circa 1860 and set directly opposite Janes Lane Recreation Ground, this three-bedroom detached cottage offers substantial scope for a family looking to personalise a period home. The property is offered with vacant possession and a large, private east-facing rear garden of approximately 100' x 40', mostly lawned and screened by mature trees including three apple trees.
The interior retains period features such as bay-fronted reception rooms and fireplaces, but requires modernisation throughout. Accommodation comprises entrance hall, bay-fronted living room (fireplace currently blocked), adjacent bay-fronted dining room with log burner, study, kitchen with Potterton boiler, conservatory (requires complete repair) and cloakroom/wc on the ground floor. Upstairs are three bedrooms (two with loft hatches) and a family bathroom.
Practical benefits include a private driveway, garage with power, light and plumbing, gas central heating and uPVC double glazing. Material issues to note are the need for comprehensive refurbishment, a badly deteriorated conservatory, a blocked living-room fireplace, and an EPC rating of E. This home suits a buyer prepared to invest in renovation to unlock period character and extend or reconfigure living space.
Convenient for local schools (including highly regarded independent options and good state secondaries), Wivelsfield Station and local shops, the property sits in a very affluent, low-crime suburb with fast broadband and average mobile signal. For families seeking space, garden privacy and proximity to green open space, this house presents a strong long-term opportunity once modernised.
3 bedroom end of terrace house for sale in Charlwood Gardens, Burgess Hill, RH15 — £325,000 • 3 bed • 1 bath • 795 ft²
3 bedroom semi-detached house for sale in St. Andrews Road, Burgess Hill, RH15 — £450,000 • 3 bed • 1 bath • 1018 ft²
4 bedroom detached house for sale in Welbeck Drive, Burgess Hill, RH15 — £550,000 • 4 bed • 1 bath • 1387 ft²
3 bedroom link detached house for sale in Hawthorn Close, Burgess Hill, RH15 — £415,000 • 3 bed • 1 bath • 882 ft²
3 bedroom end of terrace house for sale in Cants Lane, Burgess Hill, RH15 — £325,000 • 3 bed • 1 bath • 940 ft²
4 bedroom detached house for sale in Romaine Close, Burgess Hill, RH15 — £650,000 • 4 bed • 3 bath • 2122 ft²






























































































