HD8 8LZ - 5 bedroom detached house for sale in Lot One at Hardingley…

View on Property Piper

5 bedroom detached house for sale in Lot One at Hardingley Farm, Copley Lane, Shelley, HD8

Summary - Hardingley Farm House, Copley Lane, Shelley HD8 8LZ

5 bed 3 bath Detached

**Standout Features:**
- Unique combination of a stone farmhouse and attached cottage
- 8.9 acres of picturesque farmland with stables and additional stone structures
- Expansive layout of approximately 5,000 sq. ft., perfect for families or as an investment
- Historic property with characterful features, including original stone fireplaces and age-old beams
- Flexibility for renovations, with multiple barns and structures ripe for conversion
- Low crime area and excellent mobile and broadband connectivity

**Summary:**
Nestled in the serene and affluent countryside between Cumberworth and Shepley, Hardingley Farm offers a rare opportunity to own a beautiful 5-bedroom stone farmhouse with an attached cottage, set against a backdrop of nearly 9 acres of lush farmland. This charming property, steeped in history and family tradition, features an abundance of character with high beamed ceilings, inviting stone fireplaces, and sumptuous gardens, including a secret garden with a summer house.

The versatile layout accommodates both family living and investment potential, allowing for additional accommodation through conversion of the attached barn or cottages. Extensive outbuildings, including six stables and modern barns, provide ample utility for agricultural use or creative projects. With a tranquil hamlet setting just minutes from major transport links and renowned schools like Cumberworth Church of England Voluntary Aided First School, this ultimate country retreat seamlessly combines convenience and pastoral charm. Capture this unique opportunity today—properties like this don’t come along often!

Property Details

Image Descriptions

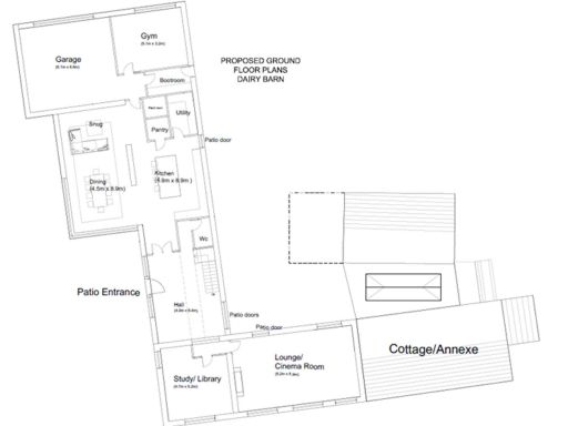
Floorplan Description

Rooms

Textual Property Features

Detected Visual Features

EPC Details

Nearby Schools

Nearest Bars And Restaurants

,,,,}

Nearest General Shops

,,}

Nearest Grocery shops

,,}

Nearest Supermarkets

,,}

Nearest Religious buildings

,,}

Nearest Medical buildings

,,,}

Nearest Leisure Facilities

,,,,}

Nearest Tourist attractions

,,}

Nearest Train stations

,,,,}

Nearest Bus stations and stops

,,,,}

Nearest Hotels

,,}

Tags

Local Market Stats

Similar Properties

Meta

High Res Images

Compatible Images

Low res Images

Thumbnails

Raw Images

High Res Floorplan Images

Compatible Floorplan Images

Low res Floorplan Images

FloorplanImages Thumbnail

Raw Floorplan Images