Compact chain-free flat with parking and excellent commuter links for first-time buyers.
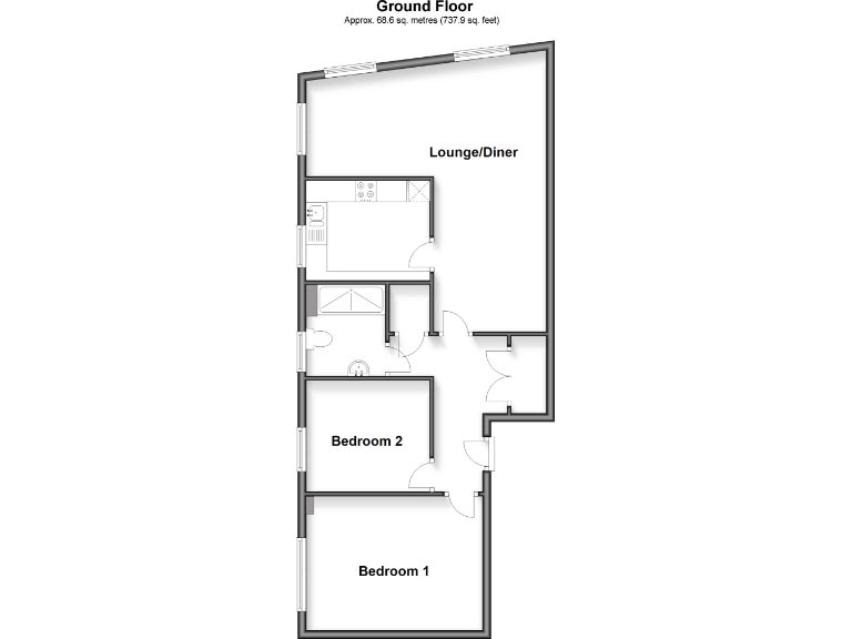
- Chain-free two-bedroom ground-floor flat, 463 sq ft
- Allocated off-street parking within gated complex
- Long lease remaining: approximately 134 years
- Service charge about £1,600 per year; ground rent £200
- Electric room heaters only — potentially higher running costs
- Close to Maidstone East station, town centre and M20
- Local area records very high crime levels — check data
- Small overall size; suited to first-time buyer or investor
A compact, chain-free two-bedroom ground-floor apartment in Bambridge Court, offered with an allocated parking space within a gated development. At around 463 sq ft this property suits a first-time buyer looking for a low-maintenance starter home or an investor seeking a city-centre let close to Maidstone East station.
The apartment benefits from a modern block constructed in the mid-2000s, double glazing and convenient commuter links — the M20 and town centre are nearby. The long lease (approx. 134 years) provides tenure security, and communal grounds plus visitor permits add practical value for residents and tenants.
Buyers should be aware of ongoing costs and some functional limitations. The property uses electric room heaters rather than a central heating system, which can increase running costs. Annual service charges (around £1,600) and a small ground rent (£200) apply. The wider area records very high crime levels, so prospective buyers should check local crime data and consider security measures.
Overall this flat presents an affordable entry point into Maidstone with clear rental and commuter appeal, but it requires buyers to factor in service charges, heating costs and local safety considerations before committing.
2 bedroom flat for sale in Stoneacre Court, Enterprise Road, Maidstone, Kent, ME15 — £175,000 • 2 bed • 1 bath • 648 ft²
2 bedroom ground floor flat for sale in Bambridge Court, Maidstone, Kent, ME14 — £139,000 • 2 bed • 1 bath • 463 ft²
2 bedroom apartment for sale in Flat , Lee Heights, Bambridge Court, Maidstone, ME14 — £200,000 • 2 bed • 2 bath • 938 ft²
2 bedroom apartment for sale in Clifford Way, Maidstone, Kent, ME16 — £185,000 • 2 bed • 2 bath • 536 ft²
2 bedroom apartment for sale in Flat , Lee Heights, Bambridge Court, Maidstone, ME14 — £200,000 • 2 bed • 2 bath • 800 ft²
2 bedroom apartment for sale in Flat , Lee Heights, Maidstone, ME14 — £190,000 • 2 bed • 2 bath • 795 ft²






























































