Lifetime Lease example reduces upfront cost for qualifying purchasers aged 60 plus.
Chain-free ground-floor apartment in gated complex with allocated parking
Suitable for over-60s buying via Homewise Lifetime Lease option
Illustrative Lifetime Lease price £139,000 (guide saving ~33%)
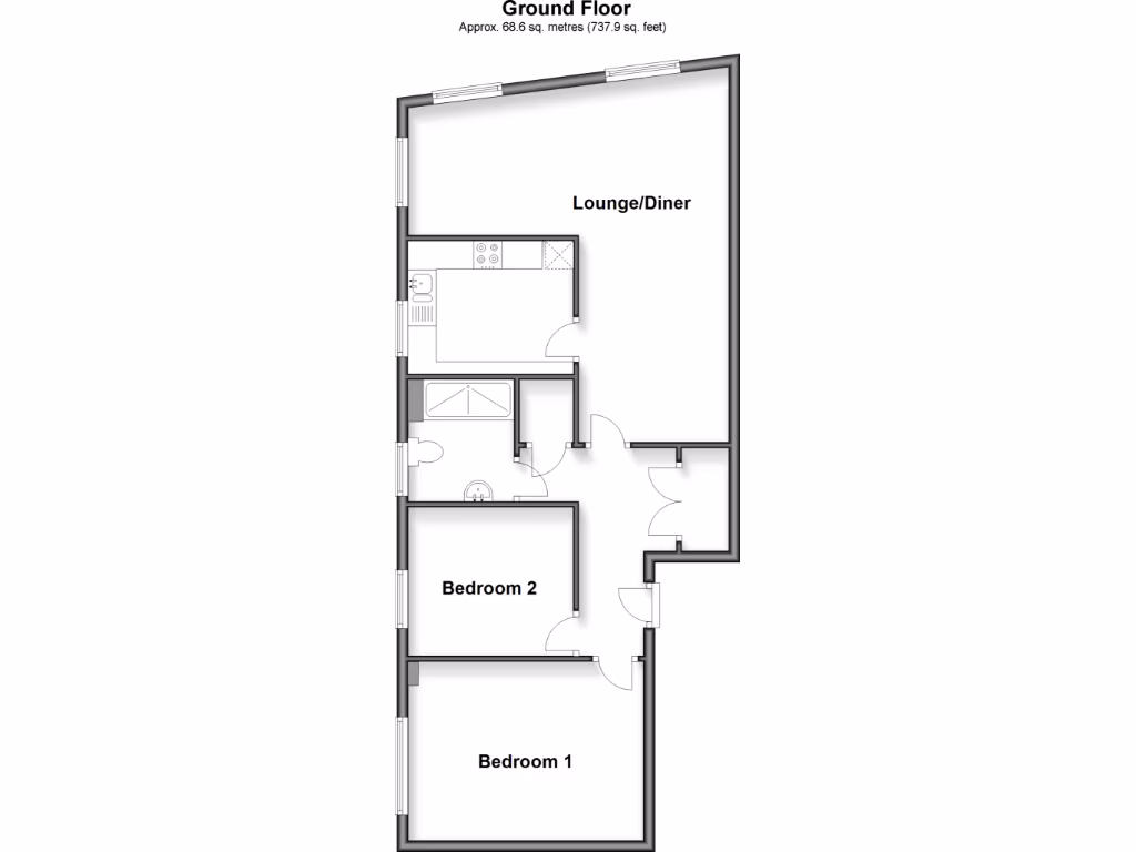
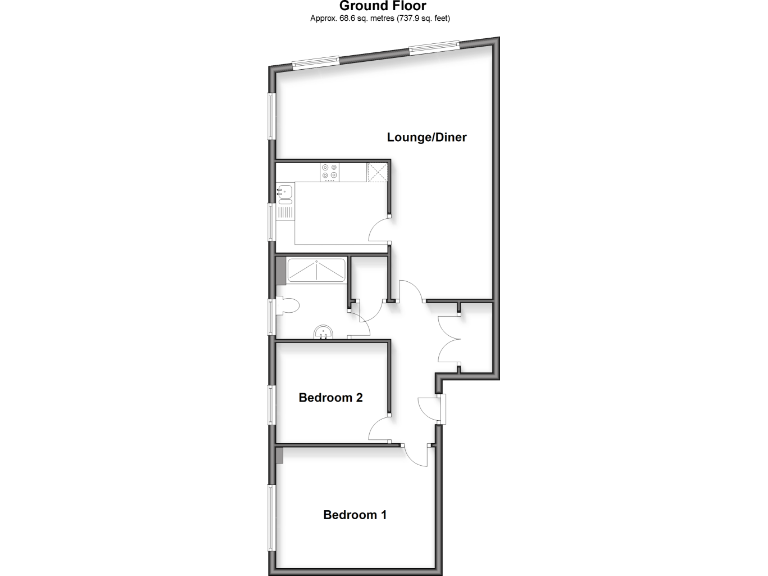
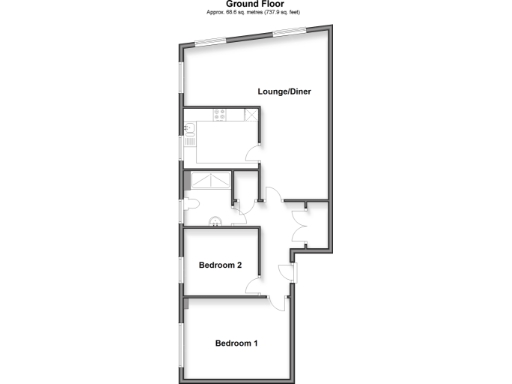
Small overall size ~463 sq ft; compact rooms and layout
Leasehold with c.134 years remaining; annual service charge ~£1,600
Ground rent circa £200; tenure and fees to be solicitor-verified
Electric room heaters only; no central gas heating present
Local area records very high crime — verify safety and security
This chain-free ground-floor apartment in a gated complex offers a low-maintenance retirement base close to Maidstone town centre and transport links. The property is small (about 463 sq ft) but practical, with an L-shaped lounge/diner, two bedrooms and a compact modern kitchen. An allocated off-street parking space and visitor permits are included.
The property is offered with a Leasehold tenure (approx. 134 years remaining) and is marketed with a Home for Life Lifetime Lease example for over-60s: an illustrative Lifetime Lease price of £139,000 (guide saving ~33% on full market value £210,000) depending on age and circumstances. The plan allows purchase of up to a 50% share of value to safeguard equity; personalised quotes vary.
Important practical points: heating is by electric room heaters and mains electricity; double glazing is in place. Annual service charge averages around £1,600 and ground rent is approximately £200. The apartment is compact and will suit someone seeking a manageable retirement property rather than a large family home.
Location benefits include proximity to Maidstone East station, the M20 and several well-rated schools and local amenities. Note the local area records a very high crime statistic — purchasers should consider this when viewing and check local safety measures. Broadband speeds are average and mobile signal is excellent.
2 bedroom ground floor flat for sale in Cornhill Place, Maidstone, Kent, ME15 — £138,500 • 2 bed • 2 bath • 559 ft²
2 bedroom apartment for sale in Clifford Way, Maidstone, Kent, ME16 — £112,000 • 2 bed • 2 bath • 536 ft²
2 bedroom ground floor flat for sale in King Street, Maidstone, Kent, ME14 — £224,000 • 2 bed • 1 bath • 566 ft²
2 bedroom ground floor flat for sale in Hastings Road, Maidstone, Kent, ME15 — £139,000 • 2 bed • 1 bath • 603 ft²
2 bedroom apartment for sale in Queensgate, Maidstone, Kent, ME16 — £185,500 • 2 bed • 2 bath • 614 ft²
2 bedroom flat for sale in Rosalind Drive, Maidstone, Kent, ME14 — £172,000 • 2 bed • 1 bath • 782 ft²






























































