High-spec five-bedroom barn with vaulted entrance and huge private plot.
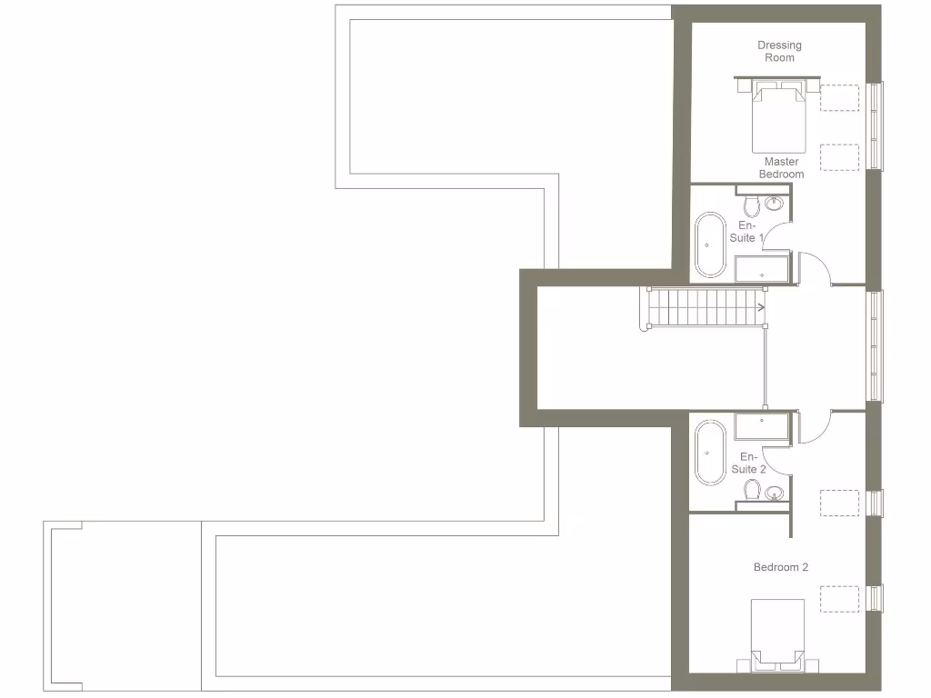
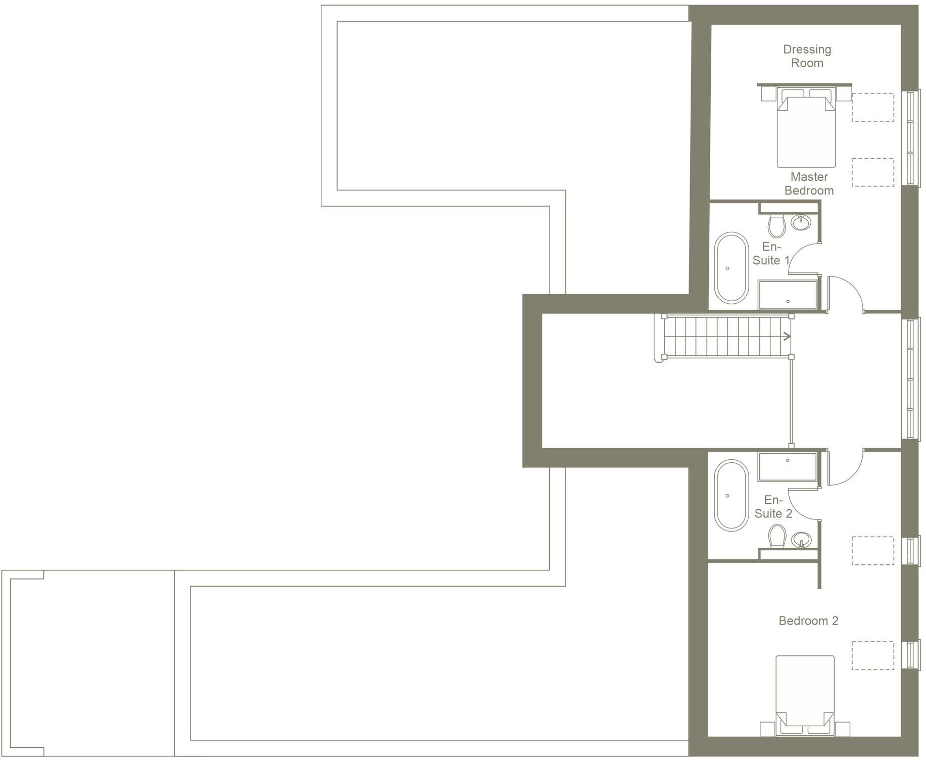
Five bedrooms, four bathrooms with principal ensuite and dressing area
The Oak Barn is a high-spec five-bedroom barn conversion set within a gated development of just three homes in Stock. Built 2025, the property balances rustic character — exposed oak beams and vaulted ceilings — with contemporary comforts including an air-source heat pump, underfloor heating and EV charging.
Internally the L-shaped layout centres on a dramatic double-height entrance, open-plan family/kitchen and a vaulted sitting room, ideal for sociable family life and quieter retreats. The principal and second bedrooms both include dressing areas and four-piece ensuites; bedrooms three to five are well served by an additional ensuite and Jack-and-Jill bathroom.
Outside, a huge plot provides extensive landscaped gardens, a large patio and open field views beyond. Practical benefits include a double cart lodge, generous gravel parking and gated driveway. Broadband is fast and local road and rail links give straightforward commutes to Chelmsford, Billericay and beyond.
Buyers should note a few material points: the development is due for completion October/November 2025, some images are illustrative or taken from neighbouring homes, and there is an annual service charge of approximately £300. Overall this is a spacious, modern country home designed for comfortable family living with strong commuter appeal.
5 bedroom detached house for sale in The Oak Barn Stock Road, Stock, CM4 — £1,950,000 • 5 bed • 4 bath • 3000 ft²
3 bedroom detached bungalow for sale in The Stables, Stock Road, CM4 — £895,000 • 3 bed • 3 bath • 1600 ft²
3 bedroom bungalow for sale in The Stables, Stock Road, Stock, CM4 — £895,000 • 3 bed • 3 bath • 1600 ft²
4 bedroom detached house for sale in The Coach House Stock Road, Stock, CM4 — £1,195,000 • 4 bed • 4 bath • 1900 ft²
4 bedroom detached house for sale in The Coach House, Stock Road, CM4 — £1,195,000 • 4 bed • 4 bath • 1900 ft²
3 bedroom detached house for sale in Whites Hill, Stock, Billericay, CM4 9QB, CM4 — £2,000,000 • 3 bed • 4 bath • 1742 ft²


















































































































































































































































